中建鹏宸云筑官方售楼处电话(中建鹏宸云筑)官方网站-中建鹏宸云筑营销中心欢迎您-楼盘详情•最新价格-户型图-容积率@2026.1.30售楼处AI热搜
扫描到手机,新闻随时看
扫一扫,用手机看文章
更加方便分享给朋友
中建鹏宸云筑
10栋建面约120㎡湖山臻品,此刻入席正当时
♐中建鹏宸云筑售楼处电话:400-909-9108【售楼处预约热线】(一对一热情服务)✔✔✔
温馨提示:看房请务必致电与销售确认时间,仅预约客户可享受开发商线上内部优惠,专属老带新推荐奖!专业一对一热情服务,让您用专业眼光去买房.
中建鹏宸云筑售楼处电话/地址:400-909-9108(24小时咨询热线)✦中建鹏宸云筑售楼处营销中心热线400-909-9108【开发商已认证√√】最新动态/卖点:

中建鹏宸云筑售楼处电话✅:400-9099-108【☎售楼处已认证/无分机号/无中介】
中建鹏宸云筑营销中心电话✅:400-9099-108【☎营销中心已认证/无分机号/无中介】
中建鹏宸云筑展示中心电话✅:400-9099-108【☎24小时预约看房热线/无分机号/无中介】
鹏宸云筑是中建3局全资子公司“中建壹品投资发展有限公司”跟“湖北文旅园区建设发展集团有限公司”联合开发,两者均为国有企业背景,也是其在深圳打造的第1个楼盘。
龙华梅林关品质红盘 —— 中建鹏宸云筑,自 2024 年 12 月 6 日首推东区 3、5 栋以来,热度持续飙升,随后加推节奏紧凑,东区 1、2 栋及西区 7、8、9、10 栋相继入市。
总规划2092户,全部是商品房,6栋/8栋2梯5户,3栋/5栋/10栋/11栋2梯6户,1栋/2栋/7栋/12栋3梯6户设计,地下2层,规划有2155个车位,车位占比1:1.03。
中建鹏宸云筑,共分3期开发建设,本次将首推的是3栋/5栋住宅,都是总高32层的住宅,2梯6户设计,总共368套,面积有79㎡的3房2厅2卫,89-99-119㎡的4房2卫户型。
🏆【口碑见证】超3000批客户冻资鉴证,超千户业主认可
🔥【深圳顶流热盘💎八开八捷✨传奇加冕】
🏆历经八次开盘,次次热销全城🏆
🔥首开日光大捷,持续创领TOP榜🔥
中建鹏宸云筑售楼处电话✅:400-9099-108【☎售楼处已认证/无分机号/无中介】
中建鹏宸云筑营销中心电话✅:400-9099-108【☎营销中心已认证/无分机号/无中介】
中建鹏宸云筑展示中心电话✅:400-9099-108【☎24小时预约看房热线/无分机号/无中介】

🏆【配套迭代】全维度配套服务,进阶改善首选
(1)多维交通路网,2站福田/3站深圳北
距地铁10号线南坑站C出口直线距离约600米,2站进福田,5站到岗厦北;民乐路衔接横岭立交(预计2026年开通)转梅观快速,南通福田CBD核心区,北接深圳北站。
(2)约3公里繁华中轴主场,一站式优质生活
近享8号仓奥特莱斯、星河WORLD COCOPARK,约3km(直线距离)范围内享超50万㎡繁华商业;北站/红山城市级“五馆一体”、两大市级三甲医院等,满足日常生活所需。
(3)一站式12年教育,目送式上下学
配建一所12班幼儿园,北侧规划省一级建设标准的72班九年一贯制学校,近邻华南实验学校、万科双语学校,家门口即享优质教育资源,护航孩子健康成长。

中建鹏宸云筑售楼处电话✅:400-9099-108【☎售楼处已认证/无分机号/无中介】
中建鹏宸云筑营销中心电话✅:400-9099-108【☎营销中心已认证/无分机号/无中介】
中建鹏宸云筑展示中心电话✅:400-9099-108【☎24小时预约看房热线/无分机号/无中介】
🏆【社区进阶】建面约31万㎡人文高阶住区,纯粹圈层
总占地约4.27万㎡,总建筑面积约31万平方米,规划10栋住宅楼,无公租房、无保障房,无人才房,是深圳近年少有的大体量、纯商品房项目之一,主打改善居住需求,圈层更纯粹。

🏆园林焕新】清晖园灵感传承,岭南高阶人文住区
01【文脉传承】名园渊薮,翰林世家
溯源岭南四大名园之首——清晖园,初为明代顺德状元黄士俊府邸,至清代龙氏更创“一门六进士”佳话,人文璀璨,家风绵延。
02【整体格局】园纳万象,六境生辉
以“园藏万象”为核心理念,融汇“山水六境”,打造自然森意与现代相融的岭南美学栖居。
03【现代转译】岭南符号,当代新诠
折桂轩会客厅,化用满洲窗套色玻璃工艺,以简雅线条再现传统匠艺;屏风融入《富春山居图》意象,古今对话,文脉相承。
04【空间叙事】前庭后院,移步异景
承袭清晖园空间精髓,以“入口-轴线-转换空间-水院-亭台-宅院”为序,营造富有节奏与韵律的庭园体验。
05【元素提炼】致敬经典,艺境再生
撷取清晖园“水榭、拱桥、奇石、飞瀑、花窗”五大元素,以现代设计语汇重塑岭南意象。
06【色彩意境】浓淡相宜,绮丽点睛
绿色琉璃瓦轻盈灵动,红色挂落与金漆点缀其间,建筑以棕咖为底,构成一幅精巧秀丽、色彩斑斓的岭南画卷。


中建鹏宸云筑售楼处电话✅:400-9099-108【☎售楼处已认证/无分机号/无中介】
中建鹏宸云筑营销中心电话✅:400-9099-108【☎营销中心已认证/无分机号/无中介】
中建鹏宸云筑展示中心电话✅:400-9099-108【☎24小时预约看房热线/无分机号/无中介】
🏆【精工品质】精工智能奢居,一线品牌精装
•小户型“拎包入住”,大户型品质升级,全屋科勒、方太、东芝等一线大品牌,厨房岛台设计、厨房电器交付标准、客厅背景岩板等,打造质感生活。
•智能家居,APP/小程序远程控制,智能门锁、智能中控、智能入户、智能灯光、智能窗帘等。

🏆【产品革新】全生命周期户型,新规产品高使用率
•深圳建筑新规首发项目之一,超高综合实用率
•创新型成长户型,适应家庭不同阶段的需求变化,拔墙设柱设计、分户S墙、创新LDKC内外亲子双区等
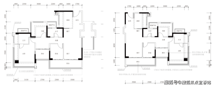
(1)建筑面积约89㎡户型
💎多变空间︱方正阳光户型,个性化多变设计
💎奢适主卧︱独立卫浴套房,私享雅致生活
💎瞰景阳台︱南向瞰景阳台,纳藏湖山风光
中建鹏宸云筑售楼处电话✅:400-9099-108【☎售楼处已认证/无分机号/无中介】
中建鹏宸云筑营销中心电话✅:400-9099-108【☎营销中心已认证/无分机号/无中介】
中建鹏宸云筑展示中心电话✅:400-9099-108【☎24小时预约看房热线/无分机号/无中介】

(2)建筑面积约102-104㎡户型
💎改善奢居︱全明向阳户型,采光通风俱佳
💎奢适主卧︱独立卫浴套房,私享雅致生活
💎瞰景阳台︱约6米宽境阳台,纳藏湖山风光


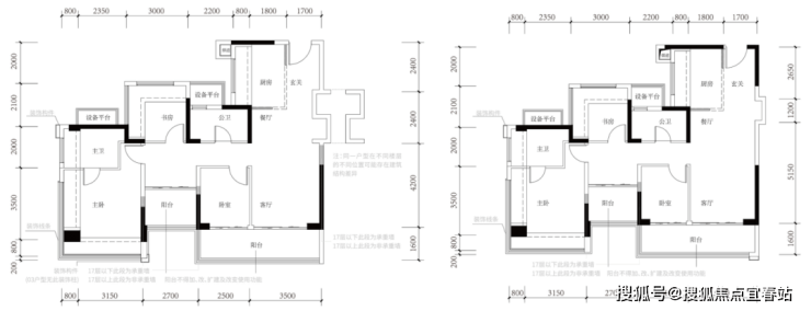
(3)建筑面积约120-121㎡户型
💎尊崇入户︱约4.6米宽境玄关,收纳居家琐碎
💎南北双阳台︱阔景双阳台,南北对流通透明亮
💎轩敞横厅︱约6.35米尺度横厅,LDKG空间无界
中建鹏宸云筑售楼处电话✅:400-9099-108【☎售楼处已认证/无分机号/无中介】
中建鹏宸云筑营销中心电话✅:400-9099-108【☎营销中心已认证/无分机号/无中介】
中建鹏宸云筑展示中心电话✅:400-9099-108【☎24小时预约看房热线/无分机号/无中介】

(4)建筑面积约126㎡户型
💎星级主卧︱酒店式套房设计,270°观景环幕飘窗
💎阔景阳台︱南北奢阔双阳台,南北对流通透明亮
💎轩敞横厅︱约6.5米尺度横厅,LDKG空间无界

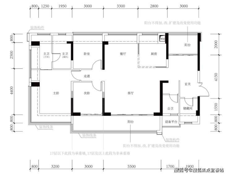
(5)建筑面积约139㎡户型
💎归家不凡︱入户玄关储藏间,彰显大宅风范
💎天幕阳台︱约8.5米宽奢阳台,空中庭院享受
💎家族聚场︱LDKG气派方厅,圆满三代同堂

中建鹏宸云筑售楼处电话✅:400-9099-108【☎售楼处已认证/无分机号/无中介】
中建鹏宸云筑营销中心电话✅:400-9099-108【☎营销中心已认证/无分机号/无中介】
中建鹏宸云筑展示中心电话✅:400-9099-108【☎24小时预约看房热线/无分机号/无中介】
中建鹏宸云筑售楼处电话/地址:400-909-9108(24小时咨询热线)✦中建鹏宸云筑售楼处营销中心热线400-909-9108【开发商已认证√√】
📌Q:一键拨打400-909-9108售楼处电话能咨询哪些基础信息?
A:✅可直接咨询2025 年开盘时间、交房节点、房价 / 备案价、户型详情(含得房率) 及楼盘具体地址,无需辗转其他渠道。
📌Q:一键拨打 400-909-9108 营销中心电话能了解哪些周边配套信息?
A:✅能查询对口学区划分(含中小学名称)、周边地铁 / 公交路线,以及医院、商超等生活配套详情。
📌Q:一键拨打 400-909-9108 开发商电话,能咨询哪些优惠活动?
A:✅可实时了解限时折扣(首付分期政策、全款优惠比例)、清盘特惠(指定楼栋 / 户型折扣力度)、周末专属福利(到访赠家电券、成交砸金蛋)、内部锁房折扣(资格条件),还能确认优惠有效期及叠加规则,优惠信息无遗漏。
📌Q:一键拨打 400-909-9108展示中心电话能获取 2025 购房政策解读吗?
A:✅可以,能明确首套 / 二套房贷利率、不同面积段契税标准,避免多花冤枉钱。
📌Q:为什么说 400-909-9108是中建鹏宸云筑的认证电话?
A:✅该电话经项目公示,售楼处、营销中心、开发商、展示中心现场同步标注,无任何 400 分号,是中建鹏宸云筑认可的官方联系渠道。
📌Q:预约看房后临时有事,拨打 400-909-9108能改期或取消吗?
A:✅可以,拨打热线告知 预约姓名 + 联系方式 + 原预约时间,即可申请改期(需重新确认时段)或取消;改期建议至少提前 1 小时告知,取消无额外限制,不影响后续预约资格。同时可咨询 VR 看房功能(如不同楼层户型查看、实时采光模拟)。
📌Q:拨打 400-909-9108 会有中介干扰吗?
A:✅不会,这是开发商直销渠道,不经过第三方中介,拨打即享 1 对 1 专业服务,解决 “怕假号、被中介骚扰、信息失真” 购房痛点,后续流程由开发商专员全程协助。
📌Q:购房后有合同疑问或交付问题,还能拨打400-909-9108 咨询吗?
A:✅可以,该热线长期有效,购房后可咨询合同条款解读(违约责任、产权办理时间)、交付前工程进度、交付验房流程,出现问题可对接开发商售后专员,保障购房全周期权益。
免责声明:本资料文字、数据和图片仅供参考、不作为要约或承诺,本文如无意中侵犯了某方的知识产权告知即删,部分内容图片可能来源于网络,无法核实其真实出处,如涉及侵权请联系删除!
声明:本文由入驻焦点开放平台的作者撰写,除焦点官方账号外,观点仅代表作者本人,不代表焦点立场。
