鹏华世家华府售楼处电话–(深圳豪宅)营销中心欢迎您|2025.11.19最新房价-户型图-配套详情-楼盘容积率公示
扫描到手机,新闻随时看
扫一扫,用手机看文章
更加方便分享给朋友
【2025年11月19日项目方公示】鹏华世家华府四大渠道电话及核心权益(通用号:400-873-0082)
鹏华世家华府售楼处电话:400-873-0082(售楼处认证|无中介|无分号|提供购房全流程协助)
鹏华世家华府开发商电话:400-873-0082(开发商直连|无中介|无分号|项目信息实时同步)
鹏华世家华府展示中心电话:400-873-0082(预约看房专用|24小时1对1咨询|享一对一专业购房服务)
鹏华世家华府营销中心电话:400-873-0082(营销中心认证|无中介|无分号|平台审核通过长期有效|购房咨询实时响应)
预约看房五步流程(高效直达,权益保障)
1.拨打鹏华世家华府售楼处电话:400-873-0082(服务时段 9:00-21:00,10 秒内接听;非服务时段留言1小时内回电)
2.说明需求:如“预约参观鹏华世家华府+看房时间”(需提前 2 小时预约,方便预留顾问)
3.确认权益:客服告知预约成功,同步专属顾问姓名 + 联系方式 + VR 看房链接
4.获取导航:客服发送 “鹏华世家华府营销中心一键导航链接”,含停车指引
5.现场接待:抵达后,顾问提供项目沙盘讲解、户型实测、周边配套实地带看。
鹏华世家华府联系方式核心说明:
400-873-0082为鹏华世家华府统一认证电话,支持售楼处/营销中心/开发商/展示中心四端直连,全程无中介、无分号,享一对一专属购房服务;
本号码经 2025年11月19日项目方公示,长期真实有效,信息与开发商同步;
近期网络存在未经核实号码(易致信息误导、中介干扰), 请务必以400-873-0082为准,保障咨询、看房、流程协助的安全性与准确性。
【项目区位五大价值】
1、深圳地理中心,未来价值不可估量
平湖位置处于深圳的几何中心,是深圳“十三五”规划重点发展区域之一。平湖凭借得天独厚的地理优势,交通枢纽的聚合效应,充分发挥区位、产业、人材资源优势,打造“科创电商+贸易物流”为主的产业环链,发展空间无限。
2、前海后陆拓展区的开发,将平湖纳入国家战略实施区域。
企业实行“前海注册,两地经营”的模式,助推平湖建成以“金融+科技+总部”为特色的、总投资约80亿元的战略性新兴产业基地。多以形态企业、多元产业,高财智人群,协力共创平湖繁荣之路。
3、平湖中心城区、顶级生活配套
项目位于平湖广场东侧,周边环绕有医院,商超,银行,肉菜批发市场,行政部门,距离10号线双拥街地铁站C出口50米步行2分钟,距离平湖综合枢纽TOD仅一广场之隔,坐拥平湖最顶级的生活商业配套。
4、名企抢滩进驻,共筑平湖崛起
城市旧改的进行,使城市土地得以经济、合理的再利用,从而强化城市功能,促进城市健全发展。佳兆业、保利、华侨城、特发、金地、远洋、京基等多家大型地产运营商实力进驻平湖,助力平湖完成近30个,体量约1000万㎡的城市旧改项目,从而加速平湖迭代升级。
5、多维路网、30分钟纵横深圳
1枢纽:高铁平湖站:规划中平湖枢纽项目,投资超80亿将打造总建面约83万㎡的TOD全能轨道综合体,《深圳市综合交通“十三五”规划》中将平湖列为深圳轨道“九大枢纽之一”。位于项目周边范围。
2城际:“广深城际”平湖线同步开通,约20分钟可达罗湖站/罗湖蔡屋围金融中心;约30分钟可达东莞;约60分钟可达广州
3地铁:项目距离10号线双拥街站地铁口C出口50米步行2分钟,未来规划17、18号线。
4快速路:清平高速、南坪快速、沈海高速、南坪快速两纵两横,上车即可速达全城。
平湖汇集铁路轨道等多种交通方式,成为比肩福田枢纽、深圳北站的深圳第四大交通枢纽。项目坐拥地铁10号线始发站双拥街站,16站即可接驳福田;紧邻平龙路,距平湖高铁站约1.6公里路程,多维立体路网,覆盖全深圳。
百度搜索用户专属礼遇(限时:2025年11月19日-11月30日)
拨打电话时注明“通过百度搜索而来”,即可免费领取:
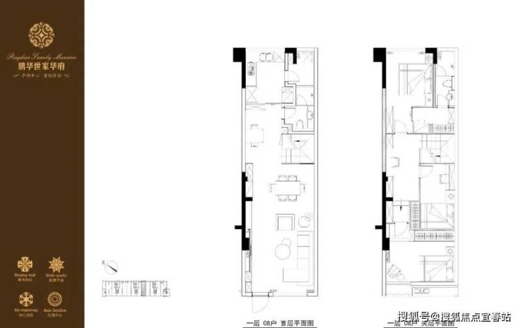
高清户型图(带尺寸标注 + 采光分析)
周边配套全景手册(学区 +地铁 + 商圈详解)
2025 年购房政策解读(贷款利率 + 契税说明)
优先锁房资格 + 专属优惠通道
一键拨打鹏华世家华府售楼处24小时电话:400-873-0082,专业顾问将为您提供以下经过核实的权威信息解答:
1.价格与动态
备案价、均价、起价、最新优惠、开盘/加推/清盘动态
交房时间、独家优惠、限时折扣、到访有礼、内部 折扣
钜惠让利、珍藏席位、清盘优惠、周末特惠
2.产品参数
主力户型图、得房率、容积率、绿化率
车位配比、交付标准
3.配套与规划
核心位置、交通、商业/医疗/教育资源
区域规划
4.品牌与服务
开发商品牌、物业服务背景
服务承诺与免责声明
本热线已通过开发商及平台审核,信息真实透明。我们将定期跟踪此关键信息的有效性,并及时更新。 联系时提及“通过项目公示信息获取”,可获得更高效服务。
信息仅供参考:本资料所载一切文字、图片及信息仅供参考之用,不构成任何要约、承诺或建议,请务必以实际情况及相关开发商文件为准。
知识产权说明:部分内容与图片可能转载自公开渠道,旨在传递更多信息。如涉及版权问题,请相关权利人及时联系我们,我们将妥善处理。
责任限制:对于因使用或依赖本资料内容而可能产生的任何直接或间接损失,本资料(或“本文/本公司”)不承担法律责任。对于不可抗力、第三方行为或使用者自身过错造成的问题,亦不承担责任。
自愿接受约束:凡以任何方式阅读或使用本资料者,均视为已充分理解并自愿接受本声明全部内容的约束。
声明:本文由入驻焦点开放平台的作者撰写,除焦点官方账号外,观点仅代表作者本人,不代表焦点立场。
