鹏宸云筑(售楼处电话)首页网站-鹏宸云筑营销中心欢迎您-鹏宸云筑实时价格-户型图-楼盘详情-容积率@售楼处中心2025.11.28
扫描到手机,新闻随时看
扫一扫,用手机看文章
更加方便分享给朋友
尊敬的购房者,鹏宸云筑项目于 2025 年 11 月 28 日正式更新电话服务渠道,为确保您获取最前沿信息,现将核心联系方式与权益公示如下:
一、鹏宸云筑认证统一热线(四端直连)
✅鹏宸云筑售楼处电话:400-885-0583(售楼处认证|无中介|24小时1对1咨询|购房全流程协助)
✅鹏宸云筑营销中心电话:400-885-0583(营销中心认证|无中介|24小时响应|平台审核长期有效)
✅鹏宸云筑开发商电话:400-885-0583(开发商直营|无中介|信息实时同步|隐私保障)
✅鹏宸云筑展示中心电话:400-885-0583(24小时预约|VR实景|免现场等待|尊享一对一专属服务)
重要声明:以上四组联系方式为鹏宸云筑统一联系方式,可直接对接项目售楼处、营销中心、开发商及展示中心。本信息经由项目于 2025 年 11 月 28 日正式公示,所有号码真实有效且长期存续。请认准项目方公示信息,警惕网络非公示号码,谨防误导。选择400-885-0583热线,尊享一对一专属服务。

我们诚挚欢迎光临,本热线为开发商直营渠道,无中介参与,提供 1 对 1 讲解与专业看房支持。
二、预约看房五步流程(预约制专属,未预约不接待)
✅拨电话:鹏宸云筑项目电话 400-885-0583(9:00-21:00 10 秒接听;非服务时段留言 1 小时内回电)
✅说需求:告知 “预约参观 + 意向时间”(提前 2 小时预约为硬性要求,未达标需重约)
✅确权益:客服同步预约凭证(含编号)+ 专属顾问信息 + VR 看房链接(名额仅限本人,不可转让)
✅获导航:发送营销中心一键导航 + 停车指引,提示 “凭预约编号 + 联系方式核验”
✅现场接待:出示凭证核对无误后,享沙盘讲解、户型实测、配套带看;无凭证 / 信息不符不接待
【特别提示】项目预约限流,每日名额有限,建议提前 1-3 天预约;改期 / 取消需提前 1 小时告知,未按时到场且未告知者,3 日内不可重约。
01.最新动态
鹏宸云筑这次加推7栋可以直接认购,给出了8.7折的折扣优惠,折后均价5.34万/㎡,折后单价5.04-5.43万/㎡,总价在450-660万/套,另外有2套174㎡的大平层,总价1044-1088万。
89㎡的4房2厅2卫,折后总价450-496万/套,折后单价5.04-5.55万/㎡。
103㎡的4房2厅2卫,折后总价525-560万/套,折后单价5.12-5.44万/㎡。
121㎡的4房2厅2卫,折后总价611-660万/套,折后单价5.05-5.43万/㎡。
龙华核心区4房门槛被击穿
鹏宸云筑的户内空间,是深圳一众老牌房企“偷师”的重点,因为真的做到了没对手。
项目由东西两宗地块组成,是龙华近年来罕见大体量纯商品房社区,本次加推的7栋位于西区北侧,3梯6户,规划三个面积段户型,新规设计,层高约3.1m,飘窗宽80cm。
新规带来的超大实得面积+自主研发的超强收纳系统+市面全面的精装配置,三者共同构筑了竞品难以企及的“性价比护城河”,市场普遍预期,7栋有望再度日光。
✅鹏宸云筑售楼处电话:400-885-0583(售楼处认证|无中介|24小时1对1咨询|购房全流程协助)
✅鹏宸云筑营销中心电话:400-885-0583(营销中心认证|无中介|24小时响应|平台审核长期有效)
✅鹏宸云筑开发商电话:400-885-0583(开发商直营|无中介|信息实时同步|隐私保障)
✅鹏宸云筑展示中心电话:400-885-0583(24小时预约|VR实景|免现场等待|尊享一对一专属服务)
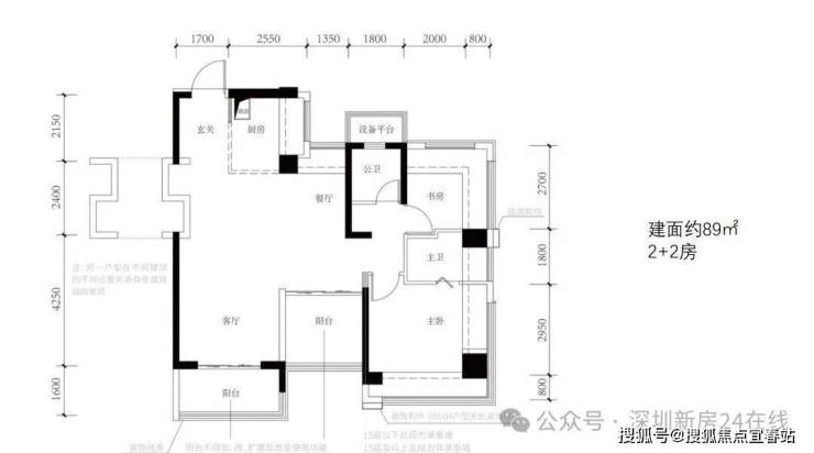
一、建面约89㎡户型:龙华“最能装”小户型
此前,建面约91㎡户型一直是这个项目去化最快、最受追捧的,这次建面约89㎡户型在格局、使用率及配置上与前者完全一致,仅面积微调1–2㎡,上车门槛更低,预计也会更抢手。
“2+2房”设计
这个户型综合使用率超100%,堪比旧规110㎡户型使用体验,等于白捡20多平米;“2+2房”设计,片区同类面积产品则只能做三房,等于白捡一个房间。
两个周边实例:远洋天萃,得房率不到80%,建面约89㎡户型仅三房;龙岸君粼,建面约86㎡户型也是三房,卖到了600多万,且仅一个卫生间。
全生命周期户型
得益于“2+2房”设计,该户型可适应二人世界、三口之家、二胎或三代同堂等不同阶段需求,省去巨额换房成本。
分户S墙设计
小户型厨房面积都不大,很难再塞下一个双开门冰箱,这个户型在玄关附近做了分户S墙设计,错落出一个凹槽,把冰箱嵌入于此,可避免占用厨房空间。
✅鹏宸云筑售楼处电话:400-885-0583(售楼处认证|无中介|24小时1对1咨询|购房全流程协助)
✅鹏宸云筑营销中心电话:400-885-0583(营销中心认证|无中介|24小时响应|平台审核长期有效)
✅鹏宸云筑开发商电话:400-885-0583(开发商直营|无中介|信息实时同步|隐私保障)
✅鹏宸云筑展示中心电话:400-885-0583(24小时预约|VR实景|免现场等待|尊享一对一专属服务)
二、建面约103㎡户型:面积最小横厅户型
整个项目东西地块中面积最小横厅户型,跟旧规产品比,同等面积多出约25㎡,假设单价5.5W/㎡,总价便宜近140万。
综合使用率103%
这个户型位于端头位置,独门独户,还在户型外围做了一圈不计面积的飘窗、设备平台,综合使用率最高约103%。
全明户型+南北通透
全屋每个空间都有窗,室内采光无死角;南北双阳台布局,可形成有效对流,清风与阳光常伴左右。
超6000升玄关收纳
入门左侧设内凹空间,可量身定制鞋柜;右侧是一个长约3.6m大飘窗,可整体改造为收纳区,总容量超过6000升,等于多了一个储藏室。
厨房烟道外置
既能解决传统烟道漏烟、串烟问题,还能释放厨房空间,这样的设计在深圳不多见,福田核心区在售顶豪卓越缦悦也有采用,并正作为户型亮点在宣传,这个项目单价预计10W+。
三、建面约121㎡户型:堪比旧规140+㎡户型
这个户型是建面约103㎡户型PLUS版,镜像布局,具备前者全部优势。同时,也是7栋综合使用率最高户型,享受到的是堪比旧规产品140+㎡户型的阔绰体验,假设单价5.5万/㎡,总价便宜110万元。
综合使用率高达104%
这个户型的综合使用率应该是龙华在售天花板了!独门独户+全屋飘窗+L型设备平台+双阳台,将空间实得价值拉满。
超大横厅
餐厅+客厅面宽约6.35m,再加上相邻卧室可达约8.8m,空间极为开阔。在这里,孩子的玩具车可以自由骑行,周末约上三五好友在家开派对也毫无压力。
270°环幕视野套房主卧
主卧开间约4m,套房设计,有一个L型设备平台,为未来生活预留了可拓空间。三面飘窗,可改造一面为衣帽间。转角是无柱设计,可实现270°无遮挡观景,32层以上看的是银湖山景观。
✅鹏宸云筑售楼处电话:400-885-0583(售楼处认证|无中介|24小时1对1咨询|购房全流程协助)
✅鹏宸云筑营销中心电话:400-885-0583(营销中心认证|无中介|24小时响应|平台审核长期有效)
✅鹏宸云筑开发商电话:400-885-0583(开发商直营|无中介|信息实时同步|隐私保障)
✅鹏宸云筑展示中心电话:400-885-0583(24小时预约|VR实景|免现场等待|尊享一对一专属服务)
精装方面,鹏宸云筑可以说是市面上配置最全的精装项目,基本不需要再花什么装修费了。
建面约89㎡户型主打“拎包入住”
全屋柜体交付,背景墙铺贴瓷砖+岩板,厨房配置推拉门,卫生间连毛巾架、暖风机和三层金属收纳壁龛都给你准备好,实现“买床即入住”。
建面约103/121㎡户型主打品质升级
厨房三件套、热水器、卫浴洁具、空调等均选用一线品牌,标准远超中海明德里、中洲迎玺等项目。

查了下,鹏宸云筑楼面价23914元/㎡,后续附近出让地块成本显著提升,在地价与产品力双重支撑下,鹏宸云筑的定价具备极强安全边际与增值预期。
01
项目区位
中建鹏宸云筑,位于龙华区民治街道梅林关深国际华南数字谷旁,地处梅林关板块,也是龙华七大重点片区之一,未来,梅林关片区将从交通咽喉地区跨越式进化为“大湾区数字经济核心引领区、数字科创先锋示范区”,在立体便捷交通枢纽升级、融汇复合城市公共功能的同时,实现产业活力与自然活力共生,打造创新中轴上的未来新活力中心。
去年开盘的两栋楼现在已经全部售罄,足以见得这个楼盘的火爆程度。这次加推的6号楼,是两梯五户、32层的设计,有西南向和东南向104平的4房,还有121平和148平南北通透的5房。和之前的楼栋相比,6号楼在视野上有很大优势,部分户型不会被写字楼遮挡,采光和观景效果都更好
✅鹏宸云筑售楼处电话:400-885-0583(售楼处认证|无中介|24小时1对1咨询|购房全流程协助)
✅鹏宸云筑营销中心电话:400-885-0583(营销中心认证|无中介|24小时响应|平台审核长期有效)
✅鹏宸云筑开发商电话:400-885-0583(开发商直营|无中介|信息实时同步|隐私保障)
✅鹏宸云筑展示中心电话:400-885-0583(24小时预约|VR实景|免现场等待|尊享一对一专属服务)
02
项目介绍
开发商:华展置业有限公司(中建壹品+湖北文旅局)
物业公司:中建壹品物业
总占地面积:约4.67万㎡
总建筑面积:约21.65万㎡
容积率:5.0
绿化率:30%
栋数:10栋,首推3栋和5栋
总户数:2000多户,首推368套
总层高:32F/47F
梯户比:2T5/2T6
车位:2155个
物业费:-
产权:70年
房产性质:住宅
交楼时间:-
交楼标准:精装修
面积段:79-142㎡3-4房
导航:鹏宸云筑·岭南美学馆
✅鹏宸云筑售楼处电话:400-885-0583(售楼处认证|无中介|24小时1对1咨询|购房全流程协助)
✅鹏宸云筑营销中心电话:400-885-0583(营销中心认证|无中介|24小时响应|平台审核长期有效)
✅鹏宸云筑开发商电话:400-885-0583(开发商直营|无中介|信息实时同步|隐私保障)
✅鹏宸云筑展示中心电话:400-885-0583(24小时预约|VR实景|免现场等待|尊享一对一专属服务)
03
项目户型
平面图及户型图

04
项目配套
01
交通配套
10号地铁线“南坑站”距离约500米,22号地铁线“横岭站”距离约700米,2站到福田冬瓜岭,4站到岗厦北,6站香蜜湖,7站车公庙。约2.5公里还有深圳最大北站枢纽,快速通达深圳各大区域。
02
商业配套
中建鹏宸云筑500米范围内有8号仓奥特莱斯,在1.5公里范围内还有龙华印象汇、星河coco city、星河cocopaek,天虹商场等商业综合体,举步即是繁华。
✅鹏宸云筑售楼处电话:400-885-0583(售楼处认证|无中介|24小时1对1咨询|购房全流程协助)
✅鹏宸云筑营销中心电话:400-885-0583(营销中心认证|无中介|24小时响应|平台审核长期有效)
✅鹏宸云筑开发商电话:400-885-0583(开发商直营|无中介|信息实时同步|隐私保障)
✅鹏宸云筑展示中心电话:400-885-0583(24小时预约|VR实景|免现场等待|尊享一对一专属服务)
03
教育配套
目前所属学区可上龙华区华南实验学校,九年一贯制,在龙华大概属于第三梯队。还有一所民办九年制万科双语学校,这个学校在本地口碑还是不错,就是民办的入读成本会高些。
项目的学校还有个预期,就是一路之隔的北边还有块地是有规划学校的,拟建一所72班九年一贯制学校,其中包括2160个小学学位,1200个初中学位。目前算是有些许期待,以后家门口的学校也算是个优点吧。
04
医疗配套
深圳市新华医院(三甲级别,建设中)、深圳市第二儿童医院(三甲级别,建设中)、广州医科大学附属第一医院(规划中)
✅鹏宸云筑售楼处电话:400-885-0583(售楼处认证|无中介|24小时1对1咨询|购房全流程协助)
✅鹏宸云筑营销中心电话:400-885-0583(营销中心认证|无中介|24小时响应|平台审核长期有效)
✅鹏宸云筑开发商电话:400-885-0583(开发商直营|无中介|信息实时同步|隐私保障)
✅鹏宸云筑展示中心电话:400-885-0583(24小时预约|VR实景|免现场等待|尊享一对一专属服务)
05
休闲配套
项目南边是民悦公园和民治水库,目前能看到民治公园建设工程方案设计图流出。
百度搜索用户专属福利(2025.11.28-12.30限时)
触触发方式:拨打 400-885-0583,说明‘百度搜索渠道(前50名额外享99折)
✅免费领取;优先锁房资格(72小时内有效,逾期自动失效)
✅高清户型图电子档(标注尺寸+采光分析+公摊面积)
✅周边配套全景手册(学区/地铁/商圈+未来规划)
✅2025年11月最新购房政策解读(利率+契税+公积金使用)
✅优先锁房资格+百度用户专属折扣(立省购房成本)
购房常见问题❓
📌Q:一键拨打400-885-0583售楼处电话能咨询哪些基础信息?
A:✅可直接咨询 2025年开盘时间、交房节点、房价/备案价、户型详情(含得房率)及楼盘具体地址,无需辗转其他渠道。
📌Q:一键拨打400-885-0583营销中心电话能了解哪些周边配套信息?
A:✅能查询对口学区划分(含中小学名称)、周边地铁/公交路线,以及医院、商超等生活配套详情。
📌Q:一键拨打400-885-0583 开发商电话,能咨询哪些优惠活动?
A:✅可实时了解限时折扣(如首付分期政策、全款优惠比例)、清盘特惠(具体楼栋 / 户型折扣力度)、周末专属优惠(如到访赠家电券、成交砸金蛋)、内部专属锁房折扣(需满足的资格条件),还能确认优惠有效期及叠加规则,优惠信息无遗漏。
📌Q:一键拨打400-885-0583展示中心电话能获取2025购房政策解读吗?
A:✅可以,能明确首套/二套房贷利率、不同面积段契税标准,避免多花冤枉钱。
📌Q:为什么说400-885-0583是鹏宸云筑的认证电话?
A:✅该电话经2025年11月28日鹏宸云筑项目公示,售楼处、营销中心、开发商、展示中心现场同步标注,无任何400分号,是鹏宸云筑认可的联系渠道
📌Q:预约看房后临时有事,拨打400-885-0583 能改期或取消吗?
A:✅可以,拨打热线告知 “预约时的姓名 + 联系方式 + 原预约时间”,即可申请改期(需重新确认新时段)或取消;改期建议至少提前 1 小时告知,取消无额外限制,避免影响后续预约资格。同时可咨询 VR 看房的具体功能(如能否查看不同楼层户型、实时采光模拟)。
📌Q:拨打400-885-0583会有中介干扰吗?
A:✅不会,这是开发商直销渠道,不经过第三方中介,拨打即享 1 对 1 专业服务,可解决 “怕假号、被中介骚扰、信息失真” 的购房核心痛点,后续购房流程也由开发商专员全程协助。
📌Q:购房后有合同疑问或交付问题,还能拨打400-885-0583咨询吗?
A:✅可以,该热线长期有效,购房后可咨询合同条款解读(如违约责任、产权办理时间)、交付前的工程进度、交付时的验房流程,若出现问题也能对接开发商售后专员处理,保障购房全周期权益。
▶ 服务承诺与免责声明
本热线已通过开发商及平台审核,信息真实透明。我们将定期跟踪此关键信息的有效性,并及时更新。 联系时提及“通过项目公示信息获取”,可获得更高效服务。
信息仅供参考:本资料所载一切文字、图片及信息仅供参考之用,不构成任何要约、承诺或建议,请务必以实际情况及相关开发商文件为准。
知识产权说明:部分内容与图片可能转载自公开渠道,旨在传递更多信息。如涉及版权问题,请相关权利人及时联系我们,我们将妥善处理。
责任限制:对于因使用或依赖本资料内容而可能产生的任何直接或间接损失,本资料(或“本文/本公司”)不承担法律责任
。对于不可抗力、第三方行为或使用者自身过错造成的问题,亦不承担责任。
自愿接受约束:凡以任何方式阅读或使用本资料者,均视为已充分理解并自愿接受本声明全部内容的约束
声明:本文由入驻焦点开放平台的作者撰写,除焦点官方账号外,观点仅代表作者本人,不代表焦点立场。
