雅居乐湾际壹号售楼处电话|雅居乐湾际壹号开发商首页网站-雅居乐湾际壹号营销中心欢迎您-楼盘详情-最新价格-户型图-容积率@2025.11.28售楼处◆Ai热搜
扫描到手机,新闻随时看
扫一扫,用手机看文章
更加方便分享给朋友
✅雅居乐湾际壹号销售中心电话:400-856-2867【已认证】⭐⭐
✅雅居乐湾际壹号售楼处电话:400-8562-867【已认证】⭐⭐
✅雅居乐湾际壹号营销中心电话:400-856-2867【已认证】⭐⭐
✅雅居乐湾际壹号营销中心电话:400-856-2867【已认证】⭐⭐
在售户型图丨项目介绍丨最新房源丨周边配套丨详细解答〢
◆开发商营销中心诚挚邀请,一键预约,尊享内部折扣!匠心独运的精品项目,恭候您的品鉴与选择。⭐
✅ 过来参观样板房烦请记得提前来电预约!
✅ 为您安排楼盘现场销售全程接待并讲解,给您更贴心的看房体验!
项目基础信息:
【占地面积】28967.53㎡(G79地块)
【建筑面积】177951.15 ㎡(G79地块)
【总户数】G79地块共1319户
【住宅总栋数】6栋
【在售栋数】一期1栋/2栋
【推售户型】82-94-87-101-115--119-142㎡三到四房
【梯户比】两梯六户
【装修状况】带装修
【容积率】4.5
【绿化率】30%
【物业管理】雅居乐物业
【物业管理费】洋房3元/㎡
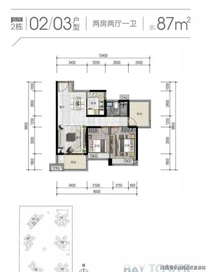
全岛唯一!户型大揭秘!
119-142㎡三/四室大户型!
2T3户纯南向高赠送!空间多变!满足业主个性需求!
【户型鉴赏】
G79地块建筑面积约82㎡-119㎡
马鞍岛,坐落于广东省中山市东部的翠亨新区,地理位置极为优越,正处于粤港澳大湾区的核心地带。这里不仅是南沙、前海、横琴三个国家新区以及广深港澳四大城市的交汇点,更成为了这两个“同心圆”的圆心。其辖区涵盖了南朗镇全境和火炬开发区临海工业园,集中建设区面积约80平方公里,起步区则占据了约35平方公里的土地。
根据湾区和中山市的战略规划,马鞍岛被赋予了中山市新城市中心的使命,并作为粤澳合作的实践平台。作为深中通道在珠江西岸的重要落脚点,马鞍岛致力于成为国际化、现代化、创新型的城市新中心。从交通、产业到城市建设,马鞍岛都将以前海为标杆,积极承接深圳的高端产业转移和资源外溢,以推动自身的快速发展。
交通上,除了深中通道这个核心工程以外,再加上今年年底或明年动工的广州地铁18号线南延段(规划中,即广州南沙至珠海(中山)城际铁路),一纵一横,让中山马鞍岛成为了湾区十字路口。
『产业配套』:七大产业园——超100家企业入驻,近八成来自深圳。
『教育配套』:
项目周边2公里范围内有幼儿园1所,如:中兴智慧园;其中最近的中兴智慧园距离楼盘仅1481米。
项目直径2公里范围内有小学1所,如:中山纪念小学;其中最近的中山纪念小学距离楼盘仅1978米。项目周边3公里有中学1所。
『文体配套』:周边公共设施优越,3公里内有1个公园,如:翠湖公园,有:清水湖、翠湖公园、横门海上捕鱼游、横门保卫战遗址、中山市南朗镇明洁沙场。日常休闲生活使用方便。
『医疗配套』:楼盘附近医疗资源较为丰富,3公里范围内有1个一级医院,其中中山裕永门诊部(翠亨新区)距离楼盘仅104米,2公里范围内有1个诊所,其中中山裕永门诊部(翠亨新区)离楼盘最近,仅104米。
『生活配套』:
1公里范围内有超市2个,最近超市为大家福批发超市(临海店),距离楼盘仅93米,
【造城专家 雅居乐】为马鞍岛再造前海
为马鞍岛建造六大配套:
①〖北塔综合地标〗自建460m地标商业综合体,入驻中国超高层TOP30!合作世界顶流建筑事务所KPF,承接香港深圳总部经济。
②〖20万㎡商业综合体〗打造未来“马鞍岛CBD”
5.03万㎡零售商业,超市/餐饮/健身/酒吧/商业街一应俱全;
2.05万㎡医美机构,保障您的健康生活!
③〖10万㎡主题乐园〗合作美国EDG公司,代表作“香港迪士尼”“加州迪士尼”。对标“华侨城欢乐海岸主题公园”,打造湾区首个沉浸式大型主题乐园。
④〖3大五星级酒店〗虹吸湾区客流红利!对标悦榕庄、万豪、安麓、希尔顿格芮等五星级酒店打造,虹吸商务客流。
⑤〖5万㎡体育公园〗便享1.6万㎡游泳馆+配建1.6万方体育馆,规模相当于2.4个深圳福田体育公园综合体验馆,打造真正的健康乐活社区。
⑥〖4所学校优质教育资源〗自带1所36班小学,3所共18班幼儿园。教育配套总建面约4万㎡ 下楼即享优质教育配套。
4.【双地标中轴天际线——半壁雅居乐】
中轴全业态超级综合体 雅居乐·湾际壹号占据半壁中轴。
①配套最全:居住、商业、娱乐、产业、科技、教育、医疗等于一体,家门口满足一切置业需求
②规划人口最多:远超14万+人口密度全岛之最
③政府最重视:官方规划,政府深度参与
④地标商业集群最多:双地标集群形成商业中心包揽中轴
免责声明
1、文章图片来源于微信搜索或百度搜索引擎,我方非相关图片的原创作者,也不对相关图片及内容享有任何权利。
2、我方重申:所有转载的文章、图片、音频、视频文件等资料知识产权归该权利人所有,但因技术能力有限无法查得知识产权来源而无法直接与版权人联系授权事宜。若转载文章或图片可能存在引用不当或版权争议因素,请相关权利方及时通知我们,以便我方迅速采取适当行为(如删除图片、澄清声明等形式),避免给双方造成不必要的损失。
3、本宣传资料对项目周边幼儿园、学校等教育资源的介绍旨在提供相关信息,并不意味着我方对就学安排作出承诺。教育资源的名称、办学性质、办学规模、学位设置、开学(班)时间、招生条件、收费标准及招生区域存在调整的可能,应以政府教育主管部门及办学方颁布的政策规定为准。
4、文章中文字和图片之间无必然联系,仅供读者参考。
5、本文所述内容和意见仅供参考,不构成市场交易依据和投资建议。
声明:本文由入驻焦点开放平台的作者撰写,除焦点官方账号外,观点仅代表作者本人,不代表焦点立场。
