鹏瑞·半山云璟售楼处(鹏瑞·半山云璟首页网站)-鹏瑞·半山云璟营销中心欢迎您-楼盘详情-户型配套-地址-价格-户型图-容积率@售楼处电话-✦AI热搜✦2025.10.20

搜狐焦点宜春站 2025-10-20 03:56:00
用手机看
扫描到手机,新闻随时看

扫一扫,用手机看文章
更加方便分享给朋友

鹏瑞·半山云璟售楼处电话400-831-7991,提供24小时服务,项目全面介绍及周边配套。

🦄❄️❄️鹏瑞·半山云璟🦄❄️❄️

鹏瑞·半山云璟 售楼处电话⚡400-831-7991 ,营销中心电话⚡400-831-7991 ,售楼中心电话⚡400-831-7991 (已认证)

温馨提示:网上展示中心〢欢迎来电咨询〢安全通话隐藏真实号码

鹏瑞·半山云璟 在售户型图丨项目介绍丨最新房源丨周边配套丨详细解答〢

开发商营销中心诚挚邀请,一键预约,尊享内部折扣!匠心独运的精品项目,恭候您的品鉴与选择。

🦄🦄每一次寻觅,都是对理想生活的向往;每一次驻足,都藏着对家的期待。我们深知,您心中的 “家” 不仅是一处居所,更是承载生活温度、满足品质追求的港湾。而【11111】,正以匠心打磨细节,以实力诠释宜居,只为匹配您对美好生活的所有想象。🦄🦄

❄️⚡❄️鹏瑞·半山云璟开发商24小时电话:4400-831-7991【 开发商已认证】🦄

❄️⚡❄️鹏瑞·半山云璟售楼处24小时电话:400-831-7991【 售楼处已认证】🦄

❄️⚡❄️鹏瑞·半山云璟营销中心24小时电话:400-831-7991 【 营销中心已认证】🦄

❄️⚡❄️鹏瑞·半山云璟售楼中心24小时电话:400-831-7991【 售楼中心已认证】🦄

【世界级山海花城,盐田的野心与诗意】

“全球海洋中心城市核心区”、“国家生态区”双冠加冕, 盐田以千亿临港产业、41项重磅签约,崛起为深圳东部向海发展走廊引擎。 梧桐烟云为幕,梅沙踏浪为邻,这里是深圳最后的山海桃源—— 24H森氧浸润,4大公园环抱,全球20%富豪向往的半山生活,从此触手可及。

【环幕云邸×山海多层,定义塔尖尺度】

-环幕云邸(约89-113㎡):

全南向采光,约3米层高,山海阔景阳台,主卧奢配独立卫浴,

以深圳湾1号基因,兑现小面积奢适想象。

-山海多层(约101-179㎡):

复式园林私邸,奢享多层空间维度,南北通透格局,

于半山之上,收藏一家人的四季风雅。

基础信息

开发商:鹏瑞集团(深圳本土房企,代表作深圳湾1号)

物业:君瑞物业(深圳湾1号同源团队,高层物业费5.3元/㎡·月,多层9.8元/㎡·月)

定位:9.1万㎡低密综合体(含住宅、商业、幼儿园),主推“山海栖居+教育+现房”概念

备案均价4.21万/㎡(精装),促销后最低单价3.04万/㎡

总价:300万-2045万(89-179㎡三至四房,含叠墅)

体量:总建面9.1万㎡,容积率1.8,绿化率40%,车位比1:0.82

交楼时间:2025年12月31日前精装交房

鹏瑞集团继鹏瑞·尚府后又一山海新作

从深圳湾到深圳半山,沿袭深圳湾1号的创新力与产品力,为半山构建高端生活方式,以创新产品、生态谧境、复式园林等革新滨海纯粹人居新时代。

周边配套

交通配套

多维立体交通,畅达湾区无界

海:盐田金色海岸码头、沙头角口岸、莲塘口岸、梅沙旅游专用口岸(规划中),畅享半小时深港生活圈。

陆:距8号线/2号线深外高中站直线距离约700米,直达罗湖/福田,大小梅沙/东部华侨城;未来规划18号线——贯通东西的大动脉(宝盐线)。

空:东部通航直升机主运行基地。

商业配套

商业繁华环伺,尽揽国际潮流

壹海城、沙头角口岸国际免税城、田心工业区更新旗舰商业中心(规划中),佳兆业盐田城广MALL、精茂城,一站式购物。

教育配套

与书香为邻,共沐翰墨成长

九年一贯制云海学校一街之隔,中海半山溪谷双语幼儿园、深圳外国语学校(高中部)、深圳市盐田高级中学等学校环伺。

(以上学校配套仅为项目周边学校,非入学承诺,具体的入学政策以政府部门政策为准)

文体配套

资源集萃,描摹生活灵感

盐田区图书馆、盐田区文化馆、沙头角体育馆、中英街历史博物馆、云海驿站、灯塔图书馆、遇见图书馆等

生态配套

近享公园诗意,丰盈森活日常

盐田双拥公园、烟墩山国际友好公园、恩上湿地公园、盐运公园。

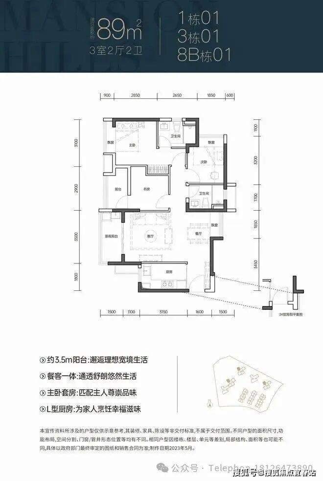
户型鉴赏

鹏瑞·半山云璟 售楼处电话是多少?答:400-831-7991⚡楼盘项目全面介绍,本电话为开发商提供线上售楼电话,楼盘项目全面介绍(包含楼盘简介,房价,价格,楼盘地址,户型图,交通规划,备案价,项目配套,楼盘详情,售楼处电话,最新消息,最新详情,周边配套,最新进展等详情咨询)

✅免责声明:部分信息来源于网络,如果侵权,请联系及时删除

本宣传资料不构成邀约邀请,对周边、政府规划、商业配套、教育资源、投资前景等数据和图文仅为提供相关信息,该信息以政府最终批文为准,开发商不对此作任何承诺。买卖双方的权利义务以双方签订的买卖合同约定及附件、实际交付为准,本公司保留对宣传资料修改的权利,敬请留意最新资料。联系号码:400-831-7991🦄

声明:本文由入驻焦点开放平台的作者撰写,除焦点官方账号外,观点仅代表作者本人,不代表焦点立场。