松茂御城(售楼处)首页网站-松茂御城营销中心-松茂御城欢迎您-楼盘详情-最新价格-户型图-容积率@售楼处

搜狐焦点宜春站 2025-09-25 13:13:48
用手机看
扫描到手机,新闻随时看

扫一扫,用手机看文章
更加方便分享给朋友

🐲松茂御城售楼处电话:400-992-6631【售楼处电话已认证】🐲 深圳(松茂御城)松茂御城售楼处电话:400-992-6631,松茂御城营销中心_tel:400-992-6631,松茂御城开发商售楼部热线400-992-6631。提前预约看房尊享额外优惠!

🐲松茂御城售楼处电话:400-992-6631【售楼处电话已认证】🐲

深圳(松茂御城)松茂御城售楼处电话:400-992-6631,松茂御城营销中心_tel:400-992-6631,松茂御城开发商售楼部热线400-992-6631。提前预约看房尊享额外优惠!

81㎡三房成为“爆款王”,折后总价277万起,首付仅需42万(首套15%),月供约1万元,吸引大量南山科技园通勤族。

爆款1B01户型89平米南北通透户型,当天售罄,从平面图来看后面1C栋大概率也会有这个户型加推,但是1C比1B01的备案价贵了40万左右

松茂御城 位于光明区凤凰街道塘尾社区松白路与碧塘路交汇处。项目总占地面积 45352.06㎡, 总建筑面积297781.48㎡, 规划建设 13座高层建筑,采用 围合式 建筑布局。项目共 2126户,车位数 2321个。布置有 一至二层商业 公共配套,是集住宅、公寓、商业于一体的宜居纯粹性项目。该项目位于地铁13号线月亮路旁,目前还是双名校深实验➕深中学区,还有光明本地名校光明实验,一期已经是现楼,二期估计明年初可以交楼

首推的松茂御城1期,总占地面积约1.4万㎡,总建筑面积约10.21万㎡,共由4栋住宅组成,其中1栋A/B座住宅33F,1栋C座住宅32F,2栋公寓32F,共规划905户,其中商品房279套,回迁房112套,公租房124套,另外还有390套商务公寓,停车位773个。

本次将推出的松茂御城2期,总占地面积约3.13万㎡,总建筑面积约20.74万㎡,计容建筑面积约16.21万㎡,容积率4.55,绿化率40%,共由8栋总高31-32层高的住宅组成,其中1栋A/B/C/D/E/H座住宅32F,1栋F/G座住宅31F,2栋规划1所幼儿园。

总规划1225户!可售商品房874套,其余是回迁房,回迁房主要集中在1E1-2单元,1G栋,1H栋为主,其中1栋E座是楼王2梯4户,1栋A座跟1栋H座2梯6户,其它栋数2梯5户设计,地下室有2层,规划1548个车位,其中充电桩车位465个,车位比约1:1.26。据了解项目2026年12月交付,精装交付合同时间会晚两个月27年2月交付,也有可能会提前交付,毕竟目前基本是现房了,就是一些内部装修

松茂御城2期在2025年8月28号取证出价格,同时当天开放实体园林跟实体样板房,户型图有81㎡三房二卫,89㎡四房二卫,109㎡四房二卫,135㎡五房二卫,光明户型天花板,得房率最高100%。首次推出1栋A座-1栋H座住宅,共1225套房源,首推1B-1E1单元-1H座-1G座!二期备案价格4.42/㎡目前认筹95折,登记98折,七天准时签约98折,其中1B02户型89㎡四房折后308万起

△备案总价表

项目是准现房精装交付。而且二期看起来比一期品质要好不少,而且还是大花园社区

项目是光明少有的低密大社区,总建筑面积约30万㎡,以31-32层臻稀非超高层建筑,重构光明低密舒居。二期容积率约4.55,匠心铸造8座高层与1所幼儿园,约2万㎡大园林,南北高达128米超阔楼间距,让建筑与自然从容对话。

△2期航拍园林

园林以“水岸绿洲”为蓝本,引水为邻诗意栖居。园内配备约410㎡亲子双泳池,下楼即享悠然度假;约300米元气跑道,把健身房搬进自然中;林涧廊亭与光影水院,为久处喧嚣的人提供一方静谧清幽;约6500㎡三层屋顶花园与双层架空会所,配备儿童益智空间、青年运动场、长者休闲区等,打造“邻里社交厅”,共筑温情社区。

△二期小区大门

△二期内部园林

二期本次推售是1B-1E1单元-1H座-1G座81-82-89-109-135㎡

1H-01户型:约81㎡ 三房两厅两卫:

1H-02/03户型:约81㎡ 三房两厅两卫:

1G-03户型:约81㎡ 三房两厅两卫:

1G-05户型:约82㎡ 三房两厅两卫:

1B-01户型:约89㎡ 四房两厅两卫:

1B-02户型:约89㎡ 四房两厅两卫:

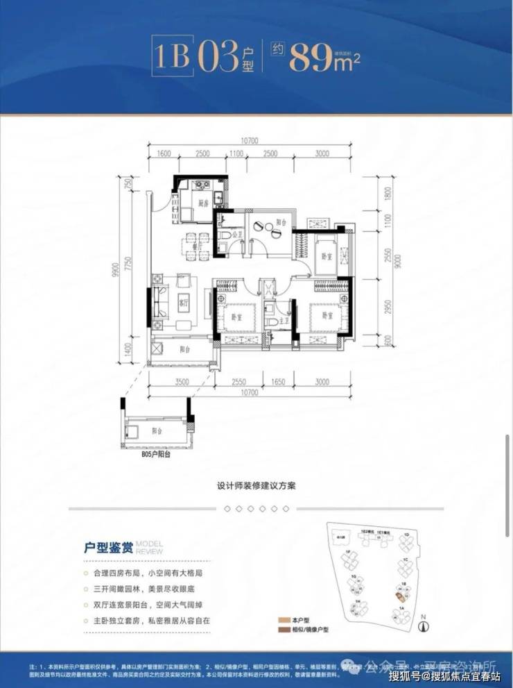
1B-03/05户型:约89㎡ 四房两厅两卫:

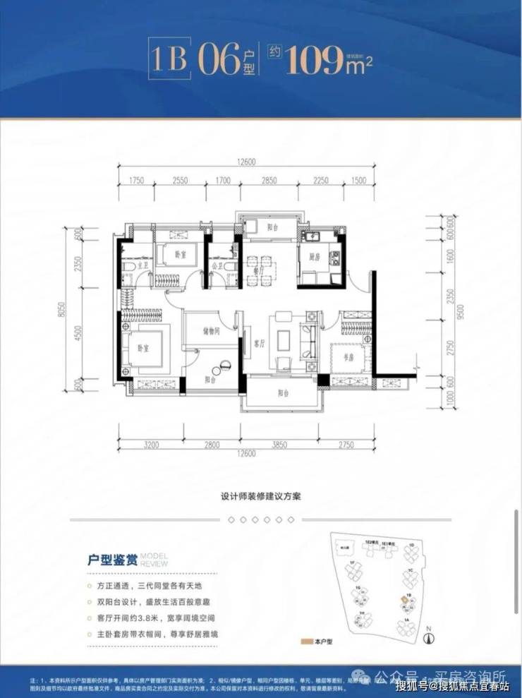
1B-06 户型:约109㎡ 阔绰四房两厅两卫:

1G-02户型:约109㎡ 四房两厅两卫:

1G-01户型:约135㎡ 五房两厅两卫:

✅ 本项目暂不接受临时到访,过来参观样板房请记得提前来电预约!

✅ 为您安排楼盘现场销售全程接待并讲解,给您更贴心的看房体验!

如有问题欢迎来电咨询,来电即可享受买房优惠!4009926631

声明:本文由入驻焦点开放平台的作者撰写,除焦点官方账号外,观点仅代表作者本人,不代表焦点立场。