御景华府售楼处(御景华府)首页网站-御景华府营销中心欢迎您-楼盘详情-最新价格-户型图-容积率-售楼处

搜狐焦点宜春站 2025-10-02 10:59:15
用手机看
扫描到手机,新闻随时看

扫一扫,用手机看文章
更加方便分享给朋友

售楼处电话:400-825-2065 【售楼处已认证】

🏠【御景华府项目专属】售楼处电话:400-825-2065 【售楼处已认证】,放心拨打!

🏗️【御景华府项目直连】开发商电话:400-825-2065 【售楼处已认证】,无中介直达!

✨【贴心服务】拨打即安排楼盘现场销售全程接待讲解,给您超省心的看房体验!

📞【御景华府项目官方】营销中心电话:400-825-2065 【售楼处已认证】,随时咨询!

🌟【御景华府项目接待】展示中心电话:400-825-2065 【售楼处已认证】,欢迎垂询!

⏰【24 小时在线】御景华府 营销中心售楼处电话:400-825-2065,全天为您服务!

🏆【67-70㎡2房2厅1卫】

精致两房,紧凑实用,全利用空间

正南户型,动静分区互无干扰

室室皆带飘窗,休闲优雅之享

干湿分离,独立盥洗,舒适便捷

双阳台设计, 生活、景观明确分区

2.3m*3.3m阔景阳台,舒心自在

(以2栋一单元04户型68㎡为例)

n

🏆【73-84㎡3房2厅1卫】

功能三房,小面积大空间

正南户型,动静分区互无干扰

室室皆带飘窗,静享悠闲时光

双阳台设计, 生活、景观明确分区

2.4m*3.7m宽阔大阳台,让生活更有景

(以1栋04户型82㎡为例)

🏆【89-91㎡3房2厅2卫】

舒适三房,方正实用,两卫设计

正南户型,四季皆享阳光明媚生活

室室皆带飘窗,生活更具想象

双阳台设计, 生活、景观明确分区

2.3m*3.7m宽阔阳台,让生活更有景

(以2栋一单元03户型89㎡为例)

🏆【104㎡4房2厅2卫】

正南朝向 经典动静分区

客厅卧室四开间朝南

100平实用面积,3-4房空间随意切换

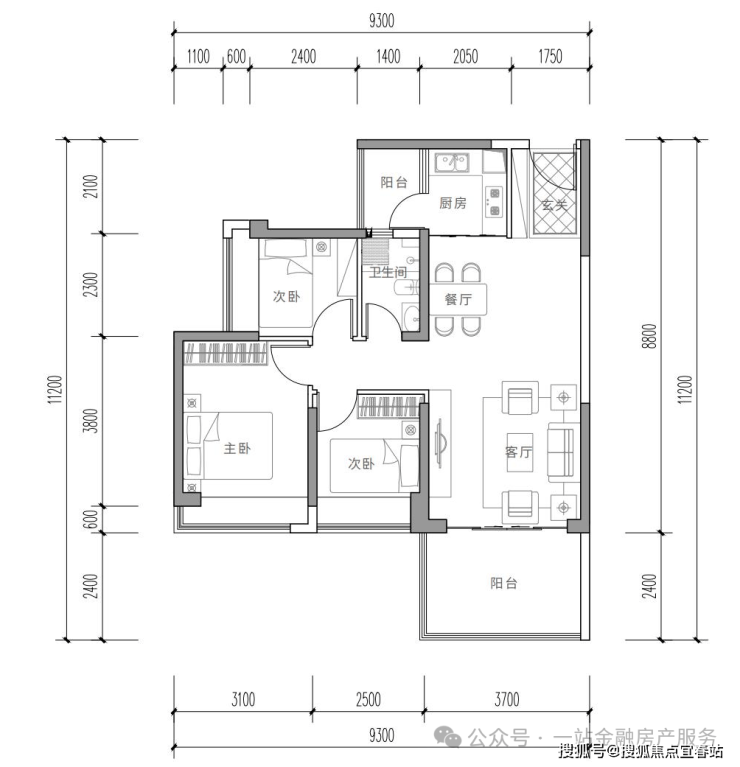
🏆【110-112㎡4房2厅2卫】

宽敞四房,一步到位,尽享天伦之乐

南北通透,冬暖夏凉,通风采光俱佳

室室皆带飘窗,完美生活向往

双阳台设计, 生活、景观明确分区

2.4m*3.8m阔景阳台,优雅观景

(以2栋一单元01户型112㎡为例)

🏆基础信息🏆

💎【占地面积】约18462㎡

💎【建筑面积】约104994㎡

💎【项目户型】建面约67-70㎡2房,约73-84㎡3房1卫,约89-91㎡3房2卫,104-112㎡4房2卫

💎【可售户数】约530户

💎【停车位】763个

💎【土地年限】70年产权(2019年1月-2089年1月)

💎【楼栋规划】1栋、2栋、3栋、5栋为住宅,4栋为幼儿园

💎【梯户比】2梯4户、2梯5户、2梯6户

💎【开发商】深圳市泰富安投资有限公司

💎【物业管理】中海物业

💎【物业费】4.6元

💎【交付标准】毛坯

【无中轴 不中心】

鹭湖中心城立足中部轴心,可预见的价值潜力,法国巴黎、美国纽约、日本东京等每一座城市,有一条价值中轴,处于城市繁华中心,联接城市顶级资源,见证城市的崛起,深圳中轴从福田中心、龙华中心北拓延伸发展

【产业聚集 高精尖圈层】

鹭湖中心城是全市“20+8”产业集群重要承载地之一,产业基础雄厚,蓝绿格局优越。湖西产业园全面更新,吸引“工控小华为”汇川技术、英飞拓、国药致君、普门科技等高新企业、高端产业落户于此。也是全国顶尖、世界一流的千亿级高端医疗器械产业集聚高地🏆

【振鹭于飞 咏湖于美】

“行政+科技+文化+生活” 综合服务中心,高标准/高品质/高起点的发展定位,鹭湖中心城,龙华六大重点片区之一,山水交融,揽山阅湖,逾越“香蜜湖”,从“国际住区”到“中心城”迭代升级

🏆【行政重地 中心所在】

龙华行政中心所在,区域蝶变在即,区府所在,必定中心,龙华区政府所在的行政重地坐落于麓湖中心城,行政中心的坐落,未来城市面貌与生活配套,必将有一个质的飞跃

🏆【科技晋级 高新极核】

以高新科创为深圳、为中国贡献鹭湖力量

鹭湖中心城位于深圳”中优“”北拓“战略的重要节点,占位于“一圈一区三廊”发展格局的产值超万亿的数字经济圈,2019年观澜高新园已纳入国家高新园,成为深圳创新驱动核心引擎。

【与鹭湖·共盛景】

🏆『抵达福田中心,刷剧才1集』

自在生活,不是说走就走而是转瞬即达

地铁18、22号线观湖站(五期22号线已动工)

福田保税区、光明科学城、会展新城等区域

“鹭湖枢纽”交通体系,无缝连接城市中心

🏆『藏在山水的艺术』

鹭湖四馆文化地标(建设中)

去鹭湖图书馆交个朋友

鹭湖群艺馆赴约老友

去鹭湖大剧院倾听艺术

鹭湖科技馆感受科技

🏆『满载购物车的雀跃欢欣』

从此识“食物”者为俊杰,生活“超市惠”

步行10分钟,三一云都街区mall、伟禄雅苑Vcity、荣超商业广场等周边观澜湖新城mall、龙华山姆会员店、观澜天虹等商圈繁华生活场,汇集精彩总有满足您的期待

🏆『可以低密,何必拥挤』

塔楼纯点式布局,采光、通风、视野俱佳

以生态阔景人居为理念,打造瞰景阔宅

值此3.86低密,进阶改善一步到位

低层看园林,中高层无遮挡瞰山景

🏆『智享乐园 童真时光』

孩子放学后/晚餐后,是孩子撒欢玩乐的好时光,打造下沉智享乐园,让孩子尽情释放玩乐天性

🏆『藏不住的自在』

一步到位,让有限的空间,契合生命中每个角色的完美转换,多数户型使用率约80%,尽享生活舒适所在

🏆『在阳光里看一本久违的书』

一缕微光透过飘窗唤醒惺忪的睡眼,于家中2.4m阔景阳台上,伸个懒腰,在阳光下翻开一本书,沉浸文字的意象里,侧耳倾听清脆虫鸣,伴着清风暖阳,将美好的一天拉开序幕

🏆『弯起来的骄傲 中海物业』

2020年度世界500强第18位,国家首批一级资质物业管理企业,365天关怀备至、24小时无微不至,30°的尊崇、35°的微笑、 75°的专注 ,95°的坚持、 180°的严谨

🏆『50+匠心细节呈现』

深入对精工美学的研究,以匠人精神,以先进的工艺工法浇筑,户型设计细节的考量,更是精益求精,打造社区回归舒心居住体验

24小时预约热线)现场详细解答丨项目介绍丨户型图丨在售房源丨特价房丨学校丨交通位置丨样板房丨小区图片丨交房时间丨周边配套丨

☞☞Vip贵宾置业==欢迎来电预约尊享内部折扣===匠心钜制恭迎品鉴☜☜

✅ 过来参观样板房烦请记得提前来电预约!售楼处电话:400-825-2065 【售楼处已认证】

✅ 过来参观样板房烦请记得提前来电预约!售楼处电话:400-825-2065 【售楼处已认证】

免责声明:本文如无意中侵犯了某方的知识产权告知即删,部分内容图片可能来源于网络,无法核实其真实出处,如涉及侵权请联系本网站删除!

声明:本文由入驻焦点开放平台的作者撰写,除焦点官方账号外,观点仅代表作者本人,不代表焦点立场。