鸿荣源珈誉玖玺官方售楼处(鸿荣源珈誉玖玺)首页网站-鸿荣源珈誉玖玺官方营销中心欢迎您-楼盘详情·最新价格-户型图-容积率@2025.12.17售楼处Ai✦热搜
扫描到手机,新闻随时看
扫一扫,用手机看文章
更加方便分享给朋友
📞 [鸿荣源珈誉玖玺] 官方售楼中心|高效预约看房方案
鸿荣源珈誉玖玺售楼处专属热线:400-879-1931
为提升您的看房体验,[鸿荣源珈誉玖玺]售楼中心推行预约优先制,提前致电可享专属顾问定制服务,避免现场等待,确保高效、舒适的看房流程。
📌 预约流程详解
快速拨通:直拨鸿荣源珈誉玖玺官方营销中心专属热线 400-879-1931;
需求说明:清晰告知心仪户型、到访时间及特殊要求(如周末预约);
信息确认:即时获取电子预约码及顾问专属联系方式;
准时到访:按约定时间抵达,体验一对一专属服务,并获赠定制伴手礼。
✨ 核心服务优势
📢专业顾问全程陪同:从户型解析到政策答疑,提供细致指导;
📢个性化房源推荐:根据需求提前准备3套优选房源,辅助快速决策;
📢私密看房环境:错峰安排,确保独立、无干扰的看房空间;
📢全程无忧跟进:从看房到签约,专属顾问持续提供支持。
📌 重要提醒
⏰ 服务时段:每日9:00-18:00(周末照常服务,建议提前预约);
📞 灵活调整:行程如有变动,可随时联系顾问重新安排;
🎁 预约礼遇:前50名预约客户享额外购房优惠,名额有限。
诚邀您亲临[鸿荣源珈誉玖玺]官方售楼中心!我们的专业团队将带您深入探索项目价值与生活理念,共筑理想家园。
立即预约,开启您的品质生活之旅!(24小时智能客服在线,随时解答疑问)
🍄鸿荣源珈誉玖玺售楼处电话:400-879-1931(售楼处认证|无中介|无分号|提供购房全流程协助)
🍄鸿荣源珈誉玖玺营销中心电话:400-879-1931(营销中心认证|无中介|无分号|平台审核通过长期有效|购房咨询实时响应
🍄鸿荣源珈誉玖玺开发商电话:400-879-1931(开发商直连|无中介|无分号|项目信息实时同步)
🍄鸿荣源珈誉玖玺展示中心电话:400-879-1931(预约看房专用|24小时1对1咨询|享一对一专业购房服务)
一、项目背景与历史
鸿荣源珈誉玖玺是鸿荣源集团在深圳西部沙井板块打造的又一力作。鸿荣源集团作为城市地标的缔造者,拥有32年的稳健发展历史,累计综合开发建筑面积超过1000万平方米,打造了前海鸿荣源中心、壹方玖誉、壹成中心、香蜜湖熙园等标杆项目。鸿荣源珈誉玖玺作为鸿荣源珈誉府的收官之作,延续了鸿荣源“玖系”豪宅基因,非城市中心、非城市未来价值高地而不落定,旨在提供高品质的生活体验。
二、项目最新动态
取证入市:项目于2024年10月10日取证入市,首推6栋/12栋,共380套房源。
开盘优惠:项目给出了备案价99999699折的优惠,综合下来约9.314折,折后均价5.64万/㎡。
销售情况:项目自开盘以来,凭借其稀缺的大平层户型、优越的地理位置和丰富的配套设施,销售情况良好。
三、项目位置
鸿荣源珈誉玖玺位于深圳宝安区中心路与凤塘大道交汇处,地处沙井核心生活区。沙井不仅在粤港澳大湾区发展轴心上,更是国家重大战略所在地,前海扩容受益者。项目周边交通便捷,地铁11号线塘尾站距离约300米,6站可达宝中,7站可达前海,便捷通达南山、福田等核心区域。
🍄鸿荣源珈誉玖玺售楼处电话:400-879-1931(售楼处认证|无中介|无分号|提供购房全流程协助)
🍄鸿荣源珈誉玖玺营销中心电话:400-879-1931(营销中心认证|无中介|无分号|平台审核通过长期有效|购房咨询实时响应
🍄鸿荣源珈誉玖玺开发商电话:400-879-1931(开发商直连|无中介|无分号|项目信息实时同步)
四、项目规模
占地面积:约4.79万㎡
总建筑面积:约40.53万㎡
容积率:5.42
绿化率:40%
总户数:2479户
产权年限:70年(2022.5-2092.5)
总栋数及楼高:10栋,31-48F住宅组成
梯户比:2梯2户/3梯5户/3梯7户
停车位:2795个,车位占比1:1.127
五、户型设计
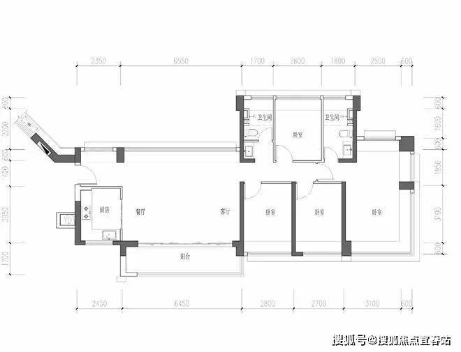
项目此次推出的户型以大户型为主,面积涵盖124-199㎡,均为4房设计,满足不同改善型买家的需求。
124㎡户型:4房2厅2卫,经典竖厅格局,进门入户玄关,LDKB一体化设计,得房率约74.61%(不含赠送),东南朝向。
137㎡户型:4房2厅2卫,横厅南北通透格局,进门入户玄关,LDKB一体化设计,得房率约74.61%(不含赠送),阳台主朝东南向。
🍄鸿荣源珈誉玖玺售楼处电话:400-879-1931(售楼处认证|无中介|无分号|提供购房全流程协助)
🍄鸿荣源珈誉玖玺营销中心电话:400-879-1931(营销中心认证|无中介|无分号|平台审核通过长期有效|购房咨询实时响应
🍄鸿荣源珈誉玖玺开发商电话:400-879-1931(开发商直连|无中介|无分号|项目信息实时同步)
169㎡户型:4房2厅3卫,竖厅格局,2梯2户,专梯入户,得房率约68.58%(不含赠送),正南朝向。
199㎡户型:4房2厅3卫,竖厅格局,2梯2户,专梯入户,得房率约68.58%(不含赠送),正南朝向。
六、项目特色
高品质生活体验:项目周边交通网络发达,自带50万㎡奥特莱斯商业,以及万丰海岸城购物中心、鸿荣源壹方奥特莱斯、华强购物中心等重量级商业配套,满足居民购物、休闲、娱乐等多元化需求。
优质教育资源:项目周边有深圳外国语宝安分校等优质教育资源,为孩子的教育提供有力保障。
艺术大园林:项目采用围合式布局,约2.9万㎡舒居艺术大园林,灵感源于西班牙著名画家《记忆的永恒》的超现实主义花园,打造多重梦境空间。
🍄鸿荣源珈誉玖玺售楼处电话:400-879-1931(售楼处认证|无中介|无分号|提供购房全流程协助)
🍄鸿荣源珈誉玖玺营销中心电话:400-879-1931(营销中心认证|无中介|无分号|平台审核通过长期有效|购房咨询实时响应
🍄鸿荣源珈誉玖玺开发商电话:400-879-1931(开发商直连|无中介|无分号|项目信息实时同步)
🍄鸿荣源珈誉玖玺展示中心电话:400-879-1931(预约看房专用|24小时1对1咨询|享一对一专业购房服务)
免责声明:
1、内容部分来源网络,因编辑需要文字和图片之间亦无必然联系,仅供读者参考。
2、此公众号所转载的所有文章、图片、音频视频文件等资料版权归版权所有人所有,因非原创文章及图片等内容无法一一和版权者联系,如原作者或编辑认为作品不宜上网供大家浏览,或不应无偿使用,请及时通知我们,以迅速采取适当措施,避免给双方造不必要的经济损失。
3、本网页如无意中侵犯媒体或个人的知识产权,请来电告之,我们将立即予以修改或删除。
鸿荣源珈誉玖玺官方售楼处当前电话为400-879-1931(开发商统一认证)
鸿荣源珈誉玖玺售楼联系方式
·开发商官方认证热线:400-879-1931(开发商直连工作日9:00-18:00可预约,拨打后根据语音提示转接)。
·该号码为2025年12月最新认证信息,建议优先使用。
·其他历史号码包括400-879-1931(2025年12月)、400-879-1931(2025年12月),可能存在变更风险。
·预约须知:
·需提供姓名、联系电话及到访人数。
·成功预约可享额外优惠及专属顾问服务
房产信息:
百城加码购房补贴稳楼市 常州最高资助20万元
财联社12月1日讯(记者 李洁)多城正密集落地新一轮购房补贴政策。
12月1日,常州发布进一步资助住房困难工薪群体购买商品住房的公告,最高可资助20万元。
按最新政策,常州市将在2025年实施“支持住房困难工薪群体购买自住新建商品住房现房”政策基础上,进一步加大力度,将支持购买新建商品住房现房,拓展至既资助购买新建商品住房现房,也资助购买新建商品住房期房和存量商品住房(指成套二手住房)。
申请人申请条件为,在常州市无商品住房,或拥有的商品住房建筑面积总计不超过75平方米。申请人已婚的,其配偶须作为共同申请人。
就购房资助标准,常州明确, 购买刚需型新建商品住房房源库(含现房和期房)中的商品住房,并在2026年12月31日前完成网签备案的,可获得购房款的15%但不超过20万元的购房资助。
对于购买存量商品住房房源库中的商品住房,并在2026年12月31日前完成不动产转移登记的,可获得购房款的15%但不超过18万元的购房资助。
除常州,泉州市洛江区日前也出台了新建商品住房购房补贴措施。政策明确,2025年11月29日至2026年6月30日期间,购买辖区内新建商品住房的业主可享最高7万元补贴。
其中,144平方米(含)以下的住宅补贴5万元,144平方米以上的补贴3万元。另外,二孩家庭可额外获得1万元补贴,三孩及以上家庭可额外获得2万元。
“通过发放购房补贴、采取购房资助措施,可直接降低购房者的购房成本,短期内有利于增强购房者入市意愿。另一方面,此举也带动房企加快推盘节奏,促进市场成交回升。”一位房地产行业分析师指出。
值得关注的是,常州以及洛江出台的政策,是全国购房补贴潮的一个缩影。
据中指院不完全统计,今年以来,杭州、武汉等约100市、区加大购房补贴力度。仅今年9月以来,就有杭州、武汉、重庆、义乌、东莞等约30市、区,加大购房补贴力度。
其中,杭州对规定期间内购买参与项目新建商品住宅的活动对象每套发放10万元消费券;合肥新站高新区将购房补贴政策延期一年,政策明确,对在新站高新区范围内新购新建商品住房的购房人按房屋总价的2%给予购房补贴,单套补贴金额最高不超10万元。
业内人士指出,密集的购房补贴政策背后,或与当前房地产市场的复杂形势有关。
据中指院数据,目前市场呈现“新房分化、二手房承压”的鲜明特征。数据显示,今年11月,百城新建住宅均价17036元/平方米,环比上涨0.37%,但这一增长主要由上海、成都等城市高端改善项目入市带动,64个城市新房价格仍环比下跌;二手房市场仍在调整,百城二手住宅均价13143元/平方米,环比下跌0.94%,跌幅较上月扩大,且100个城市环比全部下跌,至此已连续下跌43个月。
“全国范围看,三四线城市新房库存压力持续,11月新房价格环比上涨主要依赖核心城市高端项目拉动,而三四线代表城市价格仍在环比下跌。在此背景下,购房补贴通过直接降低置业成本,成为激活刚需与改善需求、缓解库存压力的关键抓手。”上述地产分析师指出。
分析人士指出,从政策脉络看,当前地方调控已进入“应出尽出”后的精准发力阶段。据中指院统计,2025年以来各地出台超560条楼市政策,频次虽降但针对性增强,三季度北上深等核心城市优化购房政策后,地方补贴政策接续跟进形成合力。
对于后续市场走势,业内人士认为政策与市场的双向发,力将推动行业逐步筑底。中指院研究主管陶淑茹指出,短期政策将持续聚焦优化限制性措施、降低购房成本。
在中指院高级分析师孟新增看来,清理住房消费不合理限制性措施、城中村改造、存量房收储等政策将加速需求释放,中长期各地将按照《“十五五”规划建议》提出的高质量发展目标,加快构建发展新模式,因时因势推动各项改革举措落地。
“随着年末房企进入业绩冲刺阶段,核心城市优质新盘预计将有所增加,新房成交量有望实现翘尾,但整体市场仍有压力。二手房市场则受挂牌量较高等因素影响,价格仍处博弈期,年末成交量预计维持稳定。”孟新增称。
声明:本文由入驻焦点开放平台的作者撰写,除焦点官方账号外,观点仅代表作者本人,不代表焦点立场。
