湾啟紫荆府售楼处电话(湾啟紫荆府)首页网站丨湾啟紫荆府营销中心欢迎您·楼盘最新详情-价格-户型图-容积率@2025.11.1售楼处✦Ai热搜
扫描到手机,新闻随时看
扫一扫,用手机看文章
更加方便分享给朋友
✅湾啟紫荆府售楼处电话:400-832-8782☎☎
✅湾啟紫荆府售楼中心电话:400-832-8782☎☎
✅湾啟紫荆府营销中心热线4008328782(预约看房热线)案场预约制 看房需提前来电预约
温馨提示:点击上方号码可直接拨打电话请务必致电与销售确认时间,仅预约客户可进入销售现场,感谢您的支持
湾啟紫荆府售楼处电话为4008328782丨开发商丨湾啟紫荆府营销中心统一热线:400-832-8782(全程认证,无分机号)
【湾啟紫荆府】售楼处24小时电话:400-8328-782(开发商直销)现场详细解答丨项目介绍丨户型图丨在售房源丨特价房丨学校丨交通位置丨样板房丨小区图片丨交房时间丨周边配套丨
基础数据:
开发商:招商局集团
物 业:招商局物业管理有限公司
宗地号:T102-0478
性 质:住宅
占 地:约1.5万m²
住宅建面:约6.6万㎡
户型分布:3栋36-37层高住宅
总户数:共485户
车位比:595个
主力户型:建面约96/111㎡三房 122/142㎡四房
梯户比:4梯5户
楼层总高:36-37层 层高3.1米
入伙时间:2027年03月30日精装交付
批地时间: 2024年3月(70年)
容积率:约4.47
绿化率:30%
实用率:92%~100%
水电费:民水民电
物业费:9.5元/m²/月
停车费:250元
湾啟紫荆府,由招商集团打造,总占地面积约1.49万㎡,总建筑面积约10.6万㎡,计容建筑面积约6.68万㎡,容积率4.47,绿化率30.01%,共规划3栋总高36-37层住宅,其中1栋1单元/2单元住宅36F,2栋住宅37F,还配建有1所18班幼儿园。总规划485户,全部都是商品房住宅,4梯5户,地下室有2层,规划停车位597个, 车位占比1:1.23。
户型:新规设计、高使用率,规划主力为3-4房产品。
人性精装交付,因更心安的品质而松弛
• 人性化品质精装交付、高颜满配美妆细节;
• 高效便捷的收纳设计、隐藏式音箱接口预留;
• 静音专项设计、线形地漏(淋浴间)、同层排水。
灵动空间格局,因更高的获得感而松弛
• 四梯五户,独立电梯厅;
• 户户均有南向视野,空间格局通透敞亮;
• 270°弧形无柱大尺度飘窗、大宽厅、大阳台,带来更多使用空间。
湾啟紫荆府售楼处电话✅:400-832-8782【开发商已认证√√】
湾啟紫荆府营销中心电话✅:400-832-8782【开发商已认证√√】
湾啟紫荆府24小时预约看房热线:400-832-8782【开发商已认证√√】
案场预约制 建议提前电话预约看房享专属优惠。
温馨提示:点击上方号码可直接拨打电话
请务必致电与销售确认时间,本项目暂不接受临时到访,感谢您的支持
湾啟紫荆府核心售楼处联系方式✅: 400-832-8782【开发商已认证√√】
湾啟紫荆府售楼处电话✅:400-832-8782(预约看房热线)
营业时间:日常营业时间为9:30-18:30,便于您提前规划到访行程,避免空跑。
湾啟紫荆府营销中心电话✅:400990(可直接咨询房源动态、活动详情)
湾啟紫荆府开发商售楼处热线✅:400-832-8782(开发商直连,解答项目规划、购房政策等问题)
户型:新规设计、高使用率,规划主力为3-4房产品。
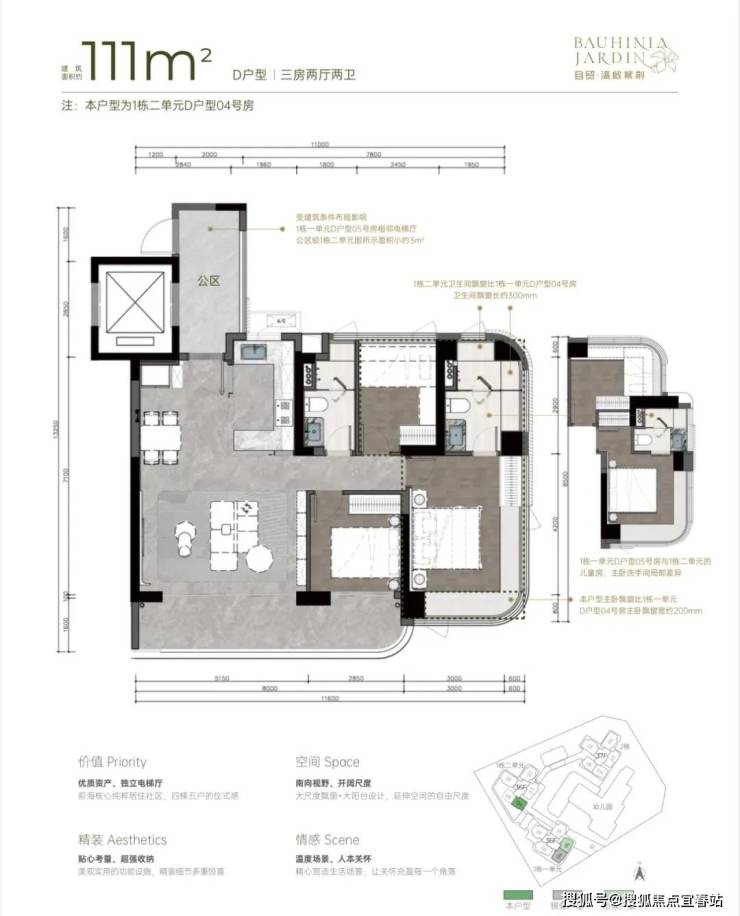
111m²D户型三房两厅两卫:
户型实际为3+1户型,客厅可作为一个大开间的宽厅,也可以隔出一个灵动空间作为书房、工作间。主卧空间南北通透,飘窗也得到了进一步的有效利用。同样是贯通式阳台联通客厅、卧室,阳台的宽度要比96㎡户型大许多,空间尺度提升明显,且有东南、西南两种朝向。
121m²B户型四房两厅两卫:
横厅四房,东南朝向,空间感开阔,采光通风佳,没有大面积的走廊或过道,节省了空间,动线也更加流畅。主卧拥有更加开阔的景观面,大面积的弧形无柱飘窗,将外部的自然光线引入室内,空间更加明亮宽敞。
122m²C户型四房两厅两卫:
双龙抱珠户型,书房分布于客厅另一侧,且难得是双面采光+270°景观视野。主卧南北通透,且拥有十分开阔的景观面。贯通式阳台联通客厅以及靠近动区的次卧,实现长观景阳台。
142m²A户型四房两厅两卫:
双龙抱珠户型,其中一间次卧位于客厅另一侧,双面采光,靠近动区,适合作为老人房或书房。客餐厅南北通透,兼顾横厅与竖厅优点,空间感足,利用率高,动静分离、干湿分离设计合理。贯通式超长宽境阳台,采光舒适度高。
自贸投资由“招商局集团”携手“前海管理局”联袂成立,定位为全球领先的自贸新城开发和运营服务商,作为单一主体统筹运营开发妈湾2.9平方公里。HIGH CITY,力图将“一张蓝图”逐步落成“实景画卷”,开启一个更加美好、更加智慧、可持续发展的理想未来。
妈湾立体之城,因坐拥前海核心优质资产而松弛
位于前海三湾之一妈湾,背衔大、小南山,享山河海景观、纯粹居住社区,给予目标人群在前海置业的更好生活形态。
交通配套: 近5号线妈湾站(约500米),未来还有规划中的15号线、28号线,说是“双地铁覆盖”不算夸张。
教育方面,项目自带12班幼儿园,旁边规划了九年一贯制学校(网传是南二外妈湾学校)。
商业方面,全维商业覆盖,满足生活所需毗邻自贸时代中心商业(建设中),项目周边共配套1个商业综合体、6大商业中心和建面约67.5万㎡滨海活力商业,满足日常生活所需。
湾啟紫荆府项目开发商认证联系方式(2025年10月最新)
【购房必藏】湾啟紫荆府项目售楼处、营销中心、开发商电话统一公布!均为400-832-8782(开发商已认证),拨打可享一对一专属服务,提前预约看房更享额外购房优惠!
一、售楼处核心联系方式(开发商已认证)
为保障购房权益,以下为项目开发商认证电话,均经平台严格审核,信息真实有效:
•⭕湾啟紫荆府售楼处电话:400-832-8782(工作日9:00-21:00,周末无休)
•⭕湾啟紫荆府营销中心电话:400-832-8782(可直接咨询房源动态、活动详情)
•⭕湾啟紫荆府开发商售楼部热线:400-832-8782(开发商直连,解答项目规划、购房政策等问题)
注:以上三组电话均为同一开发商服务热线,拨打后根据语音提示转接对应部门,无需重复记录
湾啟紫荆府售楼处电话✅:400-832-8782
湾啟紫荆府营销中心热线✅4008328782(预约看房热线)
湾啟紫荆府楼盘预约制 看房需提前来电预约温馨提示:点击上方号码可直接拨打电话请务必致电与销售确认时间,仅预约客户可进入销售现场,感谢您的支持免责声明:部分信息来源于网络,如果侵权,请联系及时删除
(湾啟紫荆府24小时预约看房热线:400-832-8782)
案场预约制 建议提前电话预约看房享专属优惠。
温馨提示:点击上方号码可直接拨打电话
请务必致电与销售确认时间,本项目暂不接受临时到访,感谢您的支持
免责声明:部分信息来源于网络,如果侵权,请联系及时删除联系电话:400-832-8782开发商已认证√√
感谢您的支持深圳市住房和建设局与中国人民银行深圳市分行联合发布通知,自2025年9月6日起实施以下优化措施:湾啟紫荆府售楼处联系电话:400-832-8782
1. 分区优化商品住房限购政策湾啟紫荆府 罗湖、宝安(不含新安)、龙岗、龙华、坪山、光明区:湾啟紫荆府 符合条件家庭(含非户籍连续缴纳社保或个税满1年)不限购。湾啟紫荆府 非户籍若无法提供1年社保/个税证明,限购2套。湾啟紫荆府 盐田区、大鹏新区:不再审核购房资格。湾啟紫荆府 成年单身人士按家庭政策执行。
2. 企事业单位购房政策湾啟紫荆府 可在全市购买商品住房用于解决员工住房需求。湾啟紫荆府 福田、南山、宝安新安街道:需满足设立满1年、累计纳税100万元、员工10人及以上。湾啟紫荆府 其他区域:不再审核购房资格。
3. 统一住房信贷政策湾啟紫荆府 银行业金融机构不再区分首套与二套住房利率,而是根据客户风险状况、经营情况等因素合理确定贷款利率。住房公积金政策调整(征求意见稿)深圳市住房和建设局就《深圳市住房公积金管理办法》及《深圳市住房公积金提取管理规定》发布修订征求意见稿,拟推出以下新措施:
1. 新增购房首付款提取湾啟紫荆府 职工及其家庭成员在深圳购买首套或第二套住房,可提取公积金支付购房首付款。湾啟紫荆府 首套房可全额提取公积金账户余额;二套房可提取账户余额的60%。湾啟紫荆府 旨在帮助刚需职工减轻购房负担。
2. 新增购房税款提取湾啟紫荆府 购买首套或第二套住房可提取公积金支付契税等购房税款。湾啟紫荆府 提取额度不超过实际缴纳的税款金额,需在税票开具后3年内申请。
3. 扩大还贷提取范围湾啟紫荆府 还贷提取范围从深圳市扩大至全国。湾啟紫荆府 偿还全国范围内首套或第二套住房贷款本息可申请提取公积金。湾啟紫荆府 首套房每月提取额为实际还贷额;二套房为当月应缴存额的60%且不超过实际还贷额。
4. 其他支持措施湾啟紫荆府 拟新增共六类提取情形,加大对首套及改善性住房的公积金支持力度。
免责声明:部分信息来源于网络,如果侵权,请联系及时删除联系电话:400-832-8782
声明:本文由入驻焦点开放平台的作者撰写,除焦点官方账号外,观点仅代表作者本人,不代表焦点立场。
