缙樾府(缙樾府营销中心)首页网站-缙樾府销售中心(售楼处)缙樾府售楼处电话-电话地址-价格-户型-小区环境-楼盘详情-交房时间-周边配套

搜狐焦点宜春站 2025-10-03 14:22:39
用手机看
扫描到手机,新闻随时看

扫一扫,用手机看文章
更加方便分享给朋友

✨✨缙樾府售楼处电话:400-861-9050(工作日9:00-21:00,周末无休) ✨✨缙樾府营销中心电话:400-861-9050(可直接咨询房源动态、活动详情) ✨✨缙樾府开发商电话:400-836-6879开发商直(连,解答项目规划、购房政策等问题)

缙樾府项目联系方式(2025年最新)

重要提醒

1,预约制要求

因近期看房客户较多,项目采取预约制,需提前拨打400-861-9050进行线上预约,避免临时到访无法接待。

2,实地考察建议

若选择线下看房,需注意:非预约客户可能被安保拦截,建议提前1天通过官方电话400-861-9050确认行程。

✨✨缙樾府售楼处电话:400-861-9050(工作日9:00-21:00,周末无休)

✨✨缙樾府营销中心电话:400-861-9050(可直接咨询房源动态、活动详情)

✨✨缙樾府开发商电话:400-836-6879开发商直(连,解答项目规划、购房政策等问题)

最新消息 / INTRODUCTION

据最新消息:南山新盘桑泰·缙樾府住宅套数约220套,面积114-115-118-133㎡纯四房到五房大面积社区!

此次推出户型上基本是户户南北通透,从使用率测算上基本都可以达到超90%使用率,容积率仅3.62超低密社区,与近期爆卖的荔源雅苑仅一路之隔,荔源雅苑本次推出折合均价约6.54万,大概率参考这个价格!项目预计11月底开盘入市!

目录

1、项目区位

2、项目介绍

3、项目户型

4、项目配套

5、项目总结

01

项目区位

南山桑泰缙樾府项目位于深圳市南山区同乐片区,具体地址为南头街道中山园路与华泰路交汇处东北侧。该项目地处南山核心区域,连接前海、后海、深圳湾,并与深圳湾超总、科技园等五大总部基地紧密相连。这样的地理位置不仅便于居民出行,还能享受到周边丰富的资源和便利的设施。

02

项目介绍

项目位于同乐片区,中山路以东,铁二路以北,东侧紧挨着同乐实验学校。由3个地块组成,共计5栋住宅塔楼,其中地块二和地块三分明命名为荔源雅苑和乐源雅居,地块一包含两栋30-31层高的住宅塔楼,近期即将入市。

项目基本信息

【项目名称】缙樾府

【开发商】深圳市塘泰投资发展有限公司

【项目地址】深圳南山教科院同乐实验学校旁

【物业公司】深圳市厚德物业服务有限公司

【物业类型】商品住宅

【总建筑面积】47780.16㎡

【总用地面积】9054.12㎡

【产品面积】约114㎡/115㎡/118㎡/ 133㎡

【总套数】220套

【容积率】约3.62

【产品年限】70年✨✨缙樾府售楼处电话:400-861-9050(工作日9:00-21:00,周末无休)

✨✨缙樾府营销中心电话:400-861-9050(可直接咨询房源动态、活动详情)

✨✨缙樾府开发商电话:400-836-6879开发商直(连,解答项目规划、购房政策等问题)

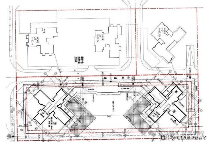
03

项目户型

平面图及户型图

✨✨缙樾府售楼处电话:400-861-9050(工作日9:00-21:00,周末无休)

✨✨缙樾府营销中心电话:400-861-9050(可直接咨询房源动态、活动详情)

✨✨缙樾府开发商电话:400-836-6879开发商直(连,解答项目规划、购房政策等问题)

04

项目配套

01

交通配套

桑泰缙樾府距离12号线同乐南站900米距离,还有建设中的15号线同乐关站双地铁口物业,贯穿前海、后海、南山、宝安等重要片区,环经济发展核心区域。

02

商业配套

1万㎡隆尚Minitown(招商中,直线约100m)、海雅缤纷城1.7㎞、沃尔玛、西丽约8万㎡云城万科里、超50万㎡南山、宝中成熟中心高端商圈,尽揽一城繁华。

03

教育配套

门口一站式优质教育,目送式书香学府小学&初中:教科院同乐实验学校(直线距离约100m),南山首个教科院系实验学校&九年一贯制学校;

教科院:深圳市教育局直属公益一类事业单位,曾打造南山第二外国语学校。

04

医疗配套

约3km范围内宝安区人民医院、南山区人民医院、宝安区中医院等三甲医院环伺,其中宝安区人民医院直线距离项目仅700m。

✨✨缙樾府售楼处电话:400-861-9050(工作日9:00-21:00,周末无休)

✨✨缙樾府营销中心电话:400-861-9050(可直接咨询房源动态、活动详情)

✨✨缙樾府开发商电话:400-836-6879开发商直(连,解答项目规划、购房政策等问题)

05

休闲配套

周边近167万方的生态公园绿地,中山公园、南头古城、荷兰花卉小镇、荔香公园等优质生态配套,同时项目北侧规划2.5万方公园绿地,畅享南山3公里City walk生活圈。

✅ 本项目暂不接受临时到访,过来参观样板房请记得提前来电预约!

✅ 为您安排楼盘现场销售全程接待并讲解,给您更贴心的看房体验!

如有问题欢迎来电咨询,来电即可享受买房优惠!400-861-9050

预约来电尊享购房优惠,可预约案场内部销售人员,专业一对一热情服务,让您用专业眼光去买房。

免责声明

1、文章图片来源于微信搜索或百度搜索引擎,我方非相关图片的原创作者,也不对相关图片及内容享有任何权利。

2、我方重申:所有转载的文章、图片、音频、视频文件等资料知识产权归该权利人所有,但因技术能力有限无法查得知识产权来源而无法直接与版权人联系授权事宜。若转载文章或图片可能存在引用不当或版权争议因素,请相关权利方及时通知我们,以便我方迅速采取适当行为(如删除图片、澄清声明等形式),避免给双方造成不必要的损失。

3、本宣传资料对项目周边幼儿园、学校等教育资源的介绍旨在提供相关信息,并不意味着我方对就学安排作出承诺。教育资源的名称、办学性质、办学规模、学位设置、开学(班)时间、招生条件、收费标准及招生区域存在调整的可能,应以政府教育主管部门及办学方颁布的政策规定为准。联系号码:4008366879

4、文章中文字和图片之间无必然联系,仅供读者参考。

5、本文所述内容和意见仅供参考,不构成市场交易依据和投资建议。

声明:本文由入驻焦点开放平台的作者撰写,除焦点官方账号外,观点仅代表作者本人,不代表焦点立场。