卓能雅苑(售楼处)首页网站-卓能雅苑营销中心-卓能雅苑欢迎您-楼盘详情-最新价格-户型图-容积率@最新售楼处
扫描到手机,新闻随时看
扫一扫,用手机看文章
更加方便分享给朋友
【项目位置】龙华布龙路与油松路交界处(西北角)
【开发商】雄伟房地产开发(深圳)有限公司
【占地面积】51323.79㎡
【建筑面积】119831.78㎡
【产品信息】102-131m² 3~5房
【交付时间】已现房
【产权年限】70年
【园林面积】2.2万㎡(其中泳池1300㎡)
【户型使用率】83%
【总户数】1085
【待售房源】316
【总车位】1054
【梯户比】1~6栋两梯四户、7栋两梯三户
【物业费】3.5 元/平方米/月
【容积率】2.3
【绿化率】44%
🌟龙华一手真现楼!
🉐️现在单价只要5.3万/㎡,周边起步价格都是6.5万+起,价格十分笋。
🏡稀缺小高层洋房,舒适度非常高。
🐂使用率超高,房产证使用率约83%,阳台露台多赠送,赠送率超级高!
👍现楼!现楼!现楼!所见即所得,买了就能住!
🌟2梯4户2.3低密度全板楼设计,超阔楼间距,超大景观阳台,户户朝南设计!
【项目简介】
项目位于龙华布龙路和油松路交汇处,为梅观高速下布龙路首站位置,交通方便,20分钟直达福田,周边商业及生活配套齐全。由香港联交所主板上市高端地产营运商卓能集团开发,承袭香港低密豪宅血统,卓能雅苑以2.3绝版低密墅级住区,打造深圳低密生活样本。
全板楼设计,超阔楼间距,户户朝南设计,保障健康居住感受。小区自带逾2000㎡的夏威夷高台水系园林、4773.77㎡商业街、幼儿园、泳池、篮球场、网球场,此外项目还设有高端私人会所,具备商务洽谈、私人定制服务、休闲健身娱乐等功能,配套一应俱全。
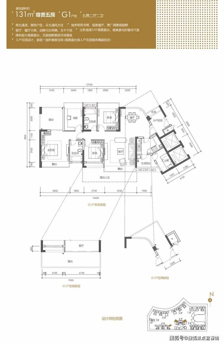
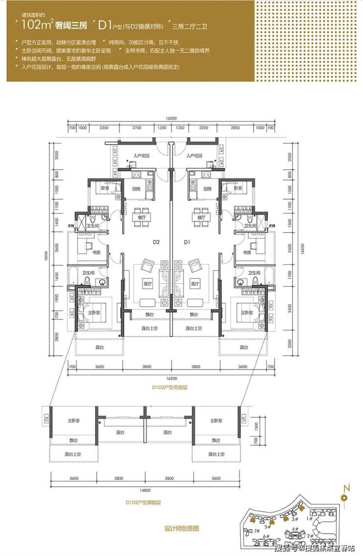
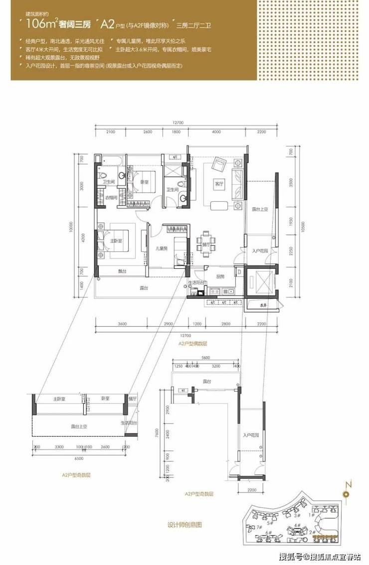
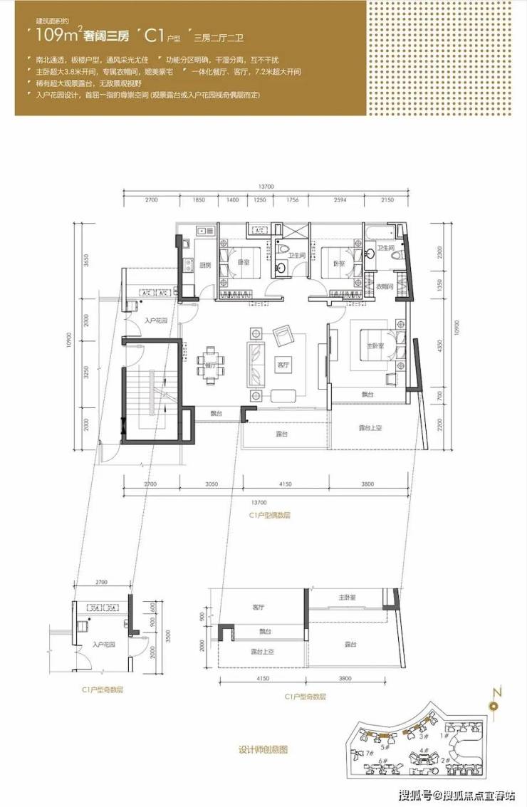
户型鉴赏
八大硬派价值揭秘
立足香港领驭亚太56年卓能集团深圳首发力作
卓能集团——香港联交所主板上市高端地产营运商,成立于1963年,迄今已有56年顶级豪宅运营资历。从香港、澳门、新加坡到马来西亚,卓能集团以卓能山庄、一号九龙山顶、赵苑等豪宅著作引领亚太高端地产。卓能雅苑由卓能集团创始人、香港建筑师学会会员、国际知名建筑设计师——赵世曾博士亲手缔造。
北站红山双芯加持,人居价值再升级卓能雅苑雄踞湾区中轴中芯深圳北站总部基地中央生活区-民治街道,新晋深圳都市核心区,享深圳北站CBD和红山CLD双核多重利好辐射,是龙华的高品质住宅区域。经济实力快速发展、人居环境不断提升,已经逐步建设成为新型商业商务中心和现代化城区。
三维立体交通,五地铁环绕 半小时同城广深港
片区贯穿了南坪快速、布龙路、龙华大道、人民路、梅观高速等五纵五横城市主干道,15分钟抵福田,20分钟抵达罗湖、南山及深圳各大核心商圈。500米范围内有33号线深大城际(建设中)、22号线(地铁五期规划中)民治北站;临近5号线民治站,轻松换乘4号线/6号线,地铁出行从容有度,1站换乘亚洲高铁枢纽深圳北站,1小时畅达粤港澳大湾区,一天可抵达17大城市。
交通配套:
片区贯穿了南坪快速、布龙路、龙华大道、人民路、梅观高速等五纵五横城市主干道,15分钟抵福田,20分钟抵达罗湖、南山及深圳各大核心商圈。500米范围内有33号线深大城际(建设中)、22号线(地铁五期规划中)民治北站;临近5号线五和站、民治站。
商业配套:
项目自带4800㎡商业,周边5.5万㎡佐阾香颂购物中心、7万㎡中航九方中心、45万㎡壹方天地等商圈林立。
教育配套:
项目自带幼儿园,更有行知小学、民治中学、展华实验学校、第二十七高级中学(在建中)、民治学校(在建中)等学府。
项目环境
承袭低密豪宅血统,尊享2.3低密度优雅生活
卓能雅苑以2.3绝版低密墅级住区,打造深圳低密生活样本。项目一共只有7栋12-18 层住宅组成,百米超阔楼间距,无敌景观视野。板式结构建筑,通风采光极致,超大景观阳台、户户朝南设计,保障健康居住感受。
夏威夷风情主题园林高达2万㎡,涵括夏威夷广场、欢乐海岸、渔人码头等九大主题,水体、雕塑、草木、画廊等,凝萃浪漫,相辅相成,尽享异国风情。
景观区设有1300㎡超大游泳池,满足游泳健身所需。商业会所拥有商务洽谈、健身、儿童娱乐等功能,满足高端商务休闲所需。业主免费使用篮球场、羽毛球场等。
现楼发售无需等待,所见即所得价值均已兑现
免责声明:部分信息来源于网络,如果侵权,请联系400-823-9396及时删除
✅本项目暂不接受临时到访,过来参观样板房请记得提前来电预约!
声明:本文由入驻焦点开放平台的作者撰写,除焦点官方账号外,观点仅代表作者本人,不代表焦点立场。
