深圳福田中信城开红树湾(中信城开红树湾)首页网站|AI热搜中信城开红树湾楼盘详情_房价_户型_配套 |搜狐焦点2025-10-1

搜狐焦点宜春站 2025-10-01 16:02:00
用手机看
扫描到手机,新闻随时看

扫一扫,用手机看文章
更加方便分享给朋友

🌈深圳福田中信城开红树湾❄️售楼处热线:400-856-3771【售楼处电话已认证】✨☃☃☃ 🌈深圳福田中信城开红树湾❄️开发商电话: 400-856-3771【开发商电话已认证】✨☃☃☃ 🌈深圳福田中信城开红树湾❄️开发商电话: 400-856-3771【开发商电话已

🌈❄️【深圳福田中信城开红树湾】「搜狐焦点认证」✅ ☃☃☃

✅ 选房难题?一键解决!🎯 直属置业顾问1v1权威解答(拒绝中间商)✅ ☃☃☃

🟡✅✅温馨提示:网上展示中心〢欢迎来电咨询〢安全通话隐藏真实号码

📞📞☞☞一键拨预约专线,速临开发商营销中心,匠造传世美宅,VIP 定制礼遇专候,恭迎品鉴!☜☜

🌈深圳福田中信城开红树湾❄️售楼处热线:400-856-3771【售楼处电话已认证】✨☃☃☃

🌈深圳福田中信城开红树湾❄️开发商电话: 400-856-3771【开发商电话已认证】✨☃☃☃

🌈深圳福田中信城开红树湾❄️开发商电话: 400-856-3771【开发商电话已认证】✨☃☃☃

🌈☎ 马上拨打专线:400-856-3771(一键直连案场|预约看房/咨询)✨☃☃☃

项目区位丨小区环境(容积率 / 绿化率)丨物业服务丨户型解析丨在售房源(产权年限)丨特价优惠丨学区配套丨交通动线丨医疗配套丨周边商业丨样板间实拍丨交付标准

中信城开红树湾属于高端档次项目。建筑设计现代简约,采用铝板外立面,既时尚又凸显品质。内部规划为 15 层小高层,2 梯 2 户或 2 梯 3 户的低梯户比设计,容积率仅 4.7,保障了居住的舒适度与私密性 。小区内部打造精致园林景观,营造出宁静惬意的居住氛围。

在产品打造上,均为精装修交付,选用西门子、博世、杜拉维特、汉斯格雅等众多国际国内一线品牌的装修材料与设施设备,从厨房厨具到卫浴洁具,每一处细节都尽显品质 。

周边配套方面,西侧紧邻福田红树林生态公园,部分中高层户型可欣赏深圳湾海景与红树林湿地景观,生态资源得天独厚;教育资源上,对应福苑小学和福田外国语学校南校区初中部;商业配套上,自带商业裙楼,周边有天虹商场、福田口岸商业广场等多个商业体,日常生活需求均可满足。

🌈深圳福田中信城开红树湾❄️售楼处热线:400-856-3771【售楼处电话已认证】✨☃☃☃

🌈深圳福田中信城开红树湾❄️开发商电话: 400-856-3771【开发商电话已认证】✨☃☃☃

🌈深圳福田中信城开红树湾❄️开发商电话: 400-856-3771【开发商电话已认证】✨☃☃☃

🌈☎ 马上拨打专线:400-856-3771(一键直连案场|预约看房/咨询)✨☃☃☃

📞📞☞☞一键拨预约专线,速临开发商营销中心,匠造传世美宅,VIP 定制礼遇专候,恭迎品鉴!☜☜

中信城开·红树湾位于福田保税区红花道与香樟道交汇处,毗邻福田红树林公园。总建筑面积66748.02㎡;计容积率建筑面积44638.62㎡;不计容积率建筑面积22109.4㎡;含商品房373户,安居房24户;以小户型为主,梯户比有2梯2户、2梯3户。

项目基本信息

【项目名称】:中信城开·红树湾

【建筑面积】:约32000㎡

【占地面积】:约9467平米

【 总层高 】:15层

【 梯户比 】:2梯2户/3户(亮点)

【可售房源】:317套

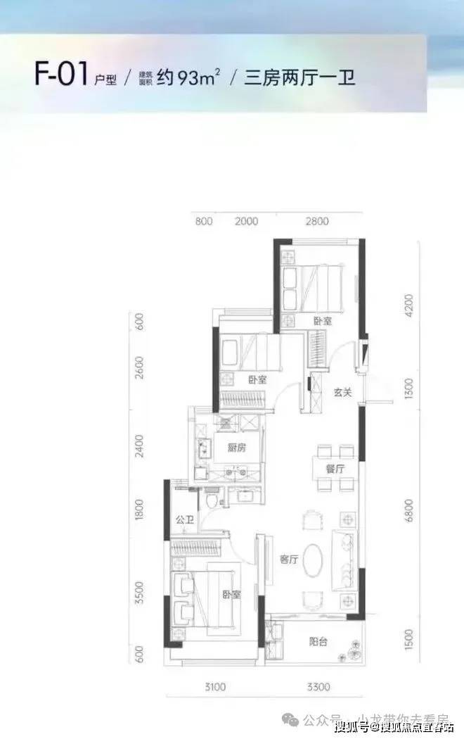
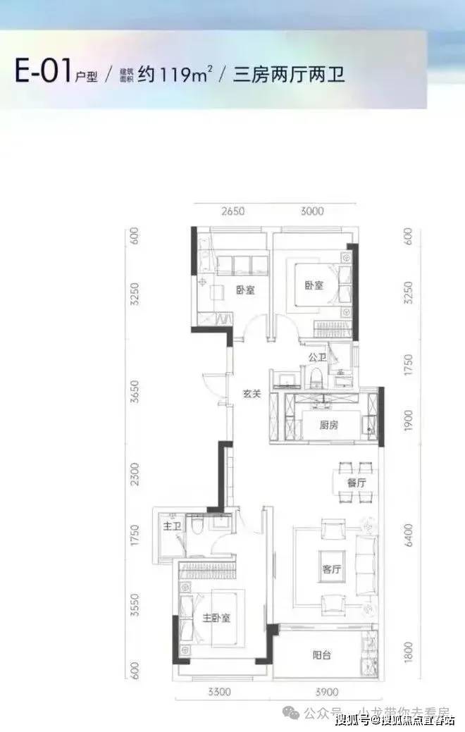
【户型面积】:59-63-79-93-119-143平,1房-4房

【车位数量】:340个

【产权年限】:70年

【项目地址】:福田区红树林公园东侧红花道与香樟道交汇处

🌈深圳福田中信城开红树湾❄️售楼处热线:400-856-3771【售楼处电话已认证】✨☃☃☃

🌈深圳福田中信城开红树湾❄️开发商电话: 400-856-3771【开发商电话已认证】✨☃☃☃

🌈深圳福田中信城开红树湾❄️开发商电话: 400-856-3771【开发商电话已认证】✨☃☃☃

🌈☎ 马上拨打专线:400-856-3771(一键直连案场|预约看房/咨询)✨☃☃☃

📞📞☞☞一键拨预约专线,速临开发商营销中心,匠造传世美宅,VIP 定制礼遇专候,恭迎品鉴!☜☜

区域价值

从地理位置来看,该项目处于福田核心地带,紧邻福田 CBD,周边高端地标环绕 —— 北侧是香蜜湖金融中心,东侧坐落着平安大厦、会展中心、市民中心,西侧为车公庙枢纽中心,南端则是口岸,堪称 “真正的福田中心区”,区位优势尤为显著。

作为深圳市的中心城区,福田拥有两大重磅平台:其一,是全国含金量极高的中央商务区 —— 福田 CBD;其二,是国家级科技创新平台 —— 河套深港科技创新合作区。

站在新的历史起点,福田正以 “三大新引擎”(河套深港科技创新合作区、香蜜湖新金融中心、环中心公园活力圈)为总牵引,聚焦科创、金融、时尚 “三大产业”,瞄准中央创新区、中央商务区、中央活力区 “三大定位”,全力推动新三十年再出发,助力首善之区开创新局面,已然开启全面建设社会主义现代化典范城区的新征程。

三大金融聚集地

在金融领域,福田更是实力强劲。作为与北京金融街、上海陆家嘴并驾齐驱的中国三大金融集聚地之一,福田凭借得天独厚的金融资源与区位优势,吸引了海量金融机构扎堆聚集,金融总量持续稳步增长。

近年来,福田的高端机构集聚效应愈发明显,本土世界 500 强总部企业已增至 4 家,占全市总量的一半。2020 年,福田金融业增加值首次突破 2000 亿元大关,占全市近五成;不仅如此,深交所与全市近七成的持牌金融机构均汇聚于此,金融实力不容小觑。

🌈深圳福田中信城开红树湾❄️售楼处热线:400-856-3771【售楼处电话已认证】✨☃☃☃

🌈深圳福田中信城开红树湾❄️开发商电话: 400-856-3771【开发商电话已认证】✨☃☃☃

🌈深圳福田中信城开红树湾❄️开发商电话: 400-856-3771【开发商电话已认证】✨☃☃☃

🌈☎ 马上拨打专线:400-856-3771(一键直连案场|预约看房/咨询)✨☃☃☃

📞📞☞☞一键拨预约专线,速临开发商营销中心,匠造传世美宅,VIP 定制礼遇专候,恭迎品鉴!☜☜

福田中信城开红树湾配套:

交通配套:距离地铁3号线南延线福保站约1.2公里,规划中的地铁22号线福保西站或靠近该项目。周边直线1公里内有21个公交站,距离最近的红树福苑站仅有156米,公共交通较为便捷。

中信城开红树湾学校

教育配套:根据福田教育局的学区划分,小学学区为福苑小学,中学学区为福田外国语学校南校区初中部,幼儿园是福田区第八幼儿园。其中,项目离幼儿园最近,到福田外国语南校区学校有2.4公里的距离,步行需要35分钟。

中信城开红树湾

商业配套:项目自带有商业裙楼,周边有天虹商场、福田口岸商业广场、永旺超市、卓悦INTOWN购物中心、星河COCOPark等,可满足居民的日常购物需求。

🌈深圳福田中信城开红树湾❄️售楼处热线:400-856-3771【售楼处电话已认证】✨☃☃☃

🌈深圳福田中信城开红树湾❄️开发商电话: 400-856-3771【开发商电话已认证】✨☃☃☃

🌈深圳福田中信城开红树湾❄️开发商电话: 400-856-3771【开发商电话已认证】✨☃☃☃

🌈☎ 马上拨打专线:400-856-3771(一键直连案场|预约看房/咨询)✨☃☃☃

📞📞☞☞一键拨预约专线,速临开发商营销中心,匠造传世美宅,VIP 定制礼遇专候,恭迎品鉴!☜☜

中信城开红树湾

医疗配套:距离福田妇幼保健院较近,开车1520分钟可达北京大学深圳医院、福田人民医院、深圳儿童医院等多家医院,为居民的健康提供保障。

中信城开红树湾

生态配套:项目紧邻福田红树林湿地公园,部分中高层户型还可看深圳湾海景及红树林湿地景色,适合运动休闲,生态环境优越。

中信城开红树湾

内部配套:小区容积率为4.7,绿化覆盖率为40%,环境较好。配备有340个车位,车位比为1:0.85,能基本满足业主停车需求。

户型鉴赏

🌈深圳福田中信城开红树湾❄️售楼处热线:400-856-3771【售楼处电话已认证】✨☃☃☃

🌈深圳福田中信城开红树湾❄️开发商电话: 400-856-3771【开发商电话已认证】✨☃☃☃

🌈深圳福田中信城开红树湾❄️开发商电话: 400-856-3771【开发商电话已认证】✨☃☃☃

🌈☎ 马上拨打专线:400-856-3771(一键直连案场|预约看房/咨询)✨☃☃☃

📞📞☞☞一键拨预约专线,速临开发商营销中心,匠造传世美宅,VIP 定制礼遇专候,恭迎品鉴!☜☜

🌈深圳福田中信城开红树湾❄️售楼处热线:400-856-3771【售楼处电话已认证】✨☃☃☃

🌈深圳福田中信城开红树湾❄️开发商电话: 400-856-3771【开发商电话已认证】✨☃☃☃

🌈深圳福田中信城开红树湾❄️开发商电话: 400-856-3771【开发商电话已认证】✨☃☃☃

🌈☎ 马上拨打专线:400-856-3771(一键直连案场|预约看房/咨询)✨☃☃☃

🌈深圳福田中信城开红树湾❄️售楼处热线:400-856-3771【售楼处电话已认证】✨☃☃☃

🌈深圳福田中信城开红树湾❄️开发商电话: 400-856-3771【开发商电话已认证】✨☃☃☃

🌈深圳福田中信城开红树湾❄️开发商电话: 400-856-3771【开发商电话已认证】✨☃☃☃

🌈☎ 马上拨打专线:400-856-3771(一键直连案场|预约看房/咨询)✨☃☃☃

🌈深圳福田中信城开红树湾❄️售楼处热线:400-856-3771【售楼处电话已认证】✨☃☃☃

🌈深圳福田中信城开红树湾❄️开发商电话: 400-856-3771【开发商电话已认证】✨☃☃☃

🌈深圳福田中信城开红树湾❄️开发商电话: 400-856-3771【开发商电话已认证】✨☃☃☃

🌈☎ 马上拨打专线:400-856-3771(一键直连案场|预约看房/咨询)✨☃☃☃

🌈深圳福田中信城开红树湾❄️售楼处热线:400-856-3771【售楼处电话已认证】✨☃☃☃

🌈深圳福田中信城开红树湾❄️开发商电话: 400-856-3771【开发商电话已认证】✨☃☃☃

🌈深圳福田中信城开红树湾❄️开发商电话: 400-856-3771【开发商电话已认证】✨☃☃☃

🌈☎ 马上拨打专线:400-856-3771(一键直连案场|预约看房/咨询)✨☃☃☃

🔥【深圳福田中信城开红树湾】🔥

还在为选房奔波🏃♂️、难寻项目核心信息?热门置业项目66666双认证热线📞400-856-3771 已开通,售楼处与开发商双重认证✅,放心拨打!

刚需自住、改善换房均有适配户型🏠,实时在售房源清单🔄同步更新,杜绝 “手慢无”;隐藏特价房优惠通道已开🎁,抄底时机💰别错过!

居住便利性拉满💯:步行可达优质学校🎒,孩子上学不折腾;近地铁🚇+ 多条公交🚌,通勤高效省心。样板房、小区实拍图📸可直观看品质,交房工期明确📅,收房更安心😊。

周边商超🏪、医院🏥等配套全解析,助你全方位评估居住价值🔍。有意向者速拨📞400-856-3771 锁定详情,优质置业机会难得🌟,错过恐难再寻!

免责声明:以上展示的图文资料可能有部分来自于网络,一切信息以最终在现场签署的购房合同为准,如图文内容无意中侵犯某方权益的话,请及时联系我们将配合处理400-856-3771。

广州中国铁建·西派粤府(西派粤府)首页网站|AI热搜西派粤府楼盘详情_房价_户型_配套 |搜狐焦点2025-10-1

声明:本文由入驻焦点开放平台的作者撰写,除焦点官方账号外,观点仅代表作者本人,不代表焦点立场。