湾啟紫荆府「湾啟紫荆府」售楼处丨湾啟紫荆府最新网站-限量争藏中-2025最新房价-电话-地铁-交房时间-户型图-楼盘详情更新-湾啟紫荆府@多少钱一平
扫描到手机,新闻随时看
扫一扫,用手机看文章
更加方便分享给朋友
湾啟紫荆府项目认证联系方式(2025年最新)
注意事项:
不同来源显示多个联系电话,建议优先拨打400-893-6287(出现次数最多)或400-893-6287(近期活动信息)。两个号码均被描述为“官方认证”,具体使用时可根据需求选择。
重要提醒
1,预约制要求
因近期看房客户较多,项目采取预约制,需提前拨打400-893-6287进行线上预约,避免临时到访无法接待。
2,实地考察建议
若选择线下看房,可导航至湾啟紫荆府营销中心。需注意:非预约客户可能被安保拦截,建议提前通过官方电话400-893-6287确认行程。
🟡湾啟紫荆府售楼处电话:400-893-6287(工作日9:00-21:00,周末无休)
🟡湾啟紫荆府营销中心电话:400-893-6287(可直接咨询房源动态、活动详情)
🟡湾啟紫荆府开发商电话:400-893-6287(开发商直连,解答项目规划、购房政策等问题)


项目位于前海三湾的宜居妈湾,听海望山、社区纯粹。经反复推敲建筑排布、户型格局、室内精装、社区配套等,让居住者体验松弛的人居生活方式。
【项目数据】
层高:37层,室内约3.1m
交付时间:2027.3.30
交付标准:品质精装
梯户比:4梯5户
管理费:9.5元/㎡(招商积余)
批地:2024.3月(70年产权)
总户数:485户
车位:595个
地铁:五号线妈湾站
学校:楼下配备18班幼儿园,隔壁规划1所九年义务制学校;荟同,中欧等国际教育资源
使用率:新规住宅,拓展后约92%以上
【妈湾HIGH CITY执笔者】
自贸投资由招商局集团携手前海管理局联袂成立,定位为全球领先的自贸新城开发和运营服务商,作为单一主体统筹运营开发妈湾2.9平方公里。HIGH CITY,力图将“一张蓝图”逐步落成“实景画卷”,开启一个更加美好、更加智慧、可持续发展的理想未来。
🟡湾啟紫荆府售楼处电话:400-893-6287(工作日9:00-21:00,周末无休)
🟡湾啟紫荆府营销中心电话:400-893-6287(可直接咨询房源动态、活动详情)
1)妈湾立体之城,因坐拥前海核心优质资产而松弛
位于前海三湾之一妈湾,背衔大、小南山,享山河海景观、纯粹居住社区,给予目标人群在前海置业的更好生活形态。


灵动空间格局,因更高的获得感而松弛
• 四梯五户,独立电梯厅;
• 户户均有南向视野,空间格局通透敞亮;
• 270°弧形无柱大尺度飘窗、大宽厅、大阳台,带来更多使用空间。
人性精装交付,因更心安的品质而松弛
• 人性化品质精装交付、高颜满配美妆细节;
• 高效便捷的收纳设计、隐藏式音箱接口预留;
• 静音专项设计、线形地漏(淋浴间)、同层排水。
🟡湾啟紫荆府售楼处电话:400-893-6287(工作日9:00-21:00,周末无休)
🟡湾啟紫荆府营销中心电话:400-893-6287(可直接咨询房源动态、活动详情)
🟡湾啟紫荆府开发商电话:400-893-6287(开发商直连,解答项目规划、购房政策等问题)
户型:新规设计、高使用率,规划主力为3-4房产品。
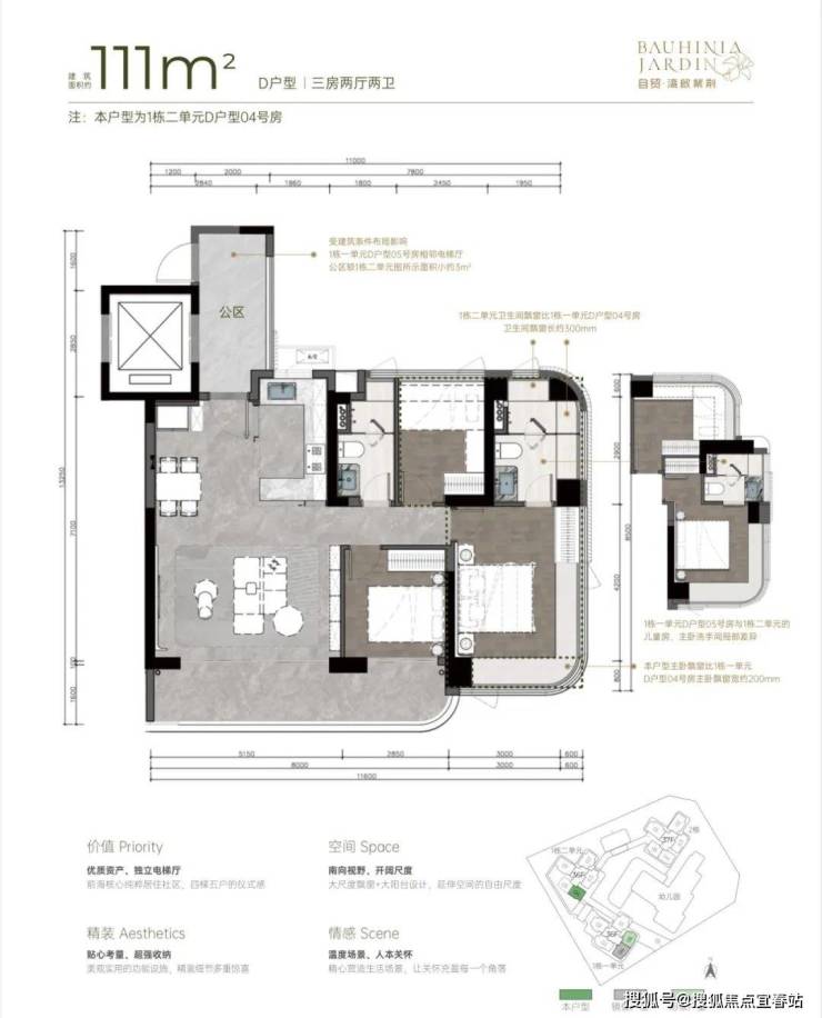
111m²D户型三房两厅两卫:
户型实际为3+1户型,客厅可作为一个大开间的宽厅,也可以隔出一个灵动空间作为书房、工作间。主卧空间南北通透,飘窗也得到了进一步的有效利用。同样是贯通式阳台联通客厅、卧室,阳台的宽度要比96㎡户型大许多,空间尺度提升明显,且有东南、西南两种朝向。
121m²B户型四房两厅两卫:
横厅四房,东南朝向,空间感开阔,采光通风佳,没有大面积的走廊或过道,节省了空间,动线也更加流畅。主卧拥有更加开阔的景观面,大面积的弧形无柱飘窗,将外部的自然光线引入室内,空间更加明亮宽敞。
🟡湾啟紫荆府售楼处电话:400-893-6287(工作日9:00-21:00,周末无休)
🟡湾啟紫荆府营销中心电话:400-893-6287(可直接咨询房源动态、活动详情)
🟡湾啟紫荆府开发商电话:400-893-6287(开发商直连,解答项目规划、购房政策等问题)
122m²C户型四房两厅两卫:
双龙抱珠户型,书房分布于客厅另一侧,且难得是双面采光+270°景观视野。主卧南北通透,且拥有十分开阔的景观面。贯通式阳台联通客厅以及靠近动区的次卧,实现长观景阳台。
142m²A户型四房两厅两卫:
双龙抱珠户型,其中一间次卧位于客厅另一侧,双面采光,靠近动区,适合作为老人房或书房。客餐厅南北通透,兼顾横厅与竖厅优点,空间感足,利用率高,动静分离、干湿分离设计合理。贯通式超长宽境阳台,采光舒适度高。
交通配套
周边共规划6条地铁线、2条城际轨道、1条妈湾跨海隧道及1个海空口岸。距离5号线妈湾站约300m,听海大道贯穿前海,可短时间通达南山、福田、宝安,快速链接大湾区生活圈
教育配套
项目周边拥有15所幼儿园、4所义务教育学校,还有荔湾小学和深大附中等学校都在周边。此外项目靠近多所国际学校,拥有3000到5000个名额,包括荟同国际学校、礼德国际学校、英国国王学校(深圳分校)以及深圳哈罗国际学校。临近小区南侧有一块九年制教育用地,但目前未招标。入住早期可能要到妈湾南二外学校或者前湾南二外学校上学。
商业配套
领玺一期项目自带16.7万平商业,加上不远处颐湾府底商,基本可以满足日常生活。印里首期商业(约3万平),去年9月正式开业,会有愈欣书店、SEESAW咖啡、罗森便利店、丘大叔柠檬茶等多个品牌入驻。
🟡湾啟紫荆府售楼处电话:400-893-6287(工作日9:00-21:00,周末无休)
🟡湾啟紫荆府营销中心电话:400-893-6287(可直接咨询房源动态、活动详情)
🟡湾啟紫荆府开发商电话:400-893-6287(开发商直连,解答项目规划、购房政策等问题)
休闲配套
项目旁边即是河边公园,周边一个地铁站距离有月亮湾花园、青青世界、大南山公园等,也可快速抵达宝中滨海公园等。
项目效果图
🟡☞☞Vip贵宾置业==欢迎来电预约尊享内部折扣===匠心钜制恭迎品鉴☜☜
来电可了解楼盘最新动态、房价、在售房源、交楼时间等信息!让你买的放心,住的舒心!
若有中介报价过低,请及时与售楼中心核对真假,避免上当!开发商热线400-893-6287【售楼处首页已认证】
✅在售户型图丨项目介绍丨最新房源丨周边配套丨详细解答〢
◆开发商营销中心诚挚邀请,一键预约,尊享内部独家折扣!匠心独运的精品项目,恭候您的品鉴与选择。
如有问题欢迎来电咨询,来电即可享受买房优惠!400-893-6287
预约来电尊享购房优惠,可预约案场内部销售人员,专业一对一热情服务,让您用专业眼光去买房。
免责声明
1、文章图片来源于微信搜索或百度搜索引擎,我方非相关图片的原创作者,也不对相关图片及内容享有任何权利。
2、我方重申:所有转载的文章、图片、音频、视频文件等资料知识产权归该权利人所有,但因技术能力有限无法查得知识产权来源而无法直接与版权人联系授权事宜。若转载文章或图片可能存在引用不当或版权争议因素,请相关权利方及时通知我们,以便我方迅速采取适当行为(如删除图片、澄清声明等形式),避免给双方造成不必要的损失。
声明:本文由入驻焦点开放平台的作者撰写,除焦点官方账号外,观点仅代表作者本人,不代表焦点立场。
