侨城坊尔邸(2025年侨城坊尔邸)首页网站|侨城坊尔邸最新房价_小区规划_户型图_配套_地址
扫描到手机,新闻随时看
扫一扫,用手机看文章
更加方便分享给朋友
(侨城坊尔邸)销售中心电话:400-873-0112(已认证✔️✔️✔️)
楼盘最新价格,户型图,地址,电话,样板房,周边配套,项目介绍
温馨提示:绝不收取任何费用,请提前1小时预约看房,以免带来不好的看房体验
——————————————————————————

豪宅集群环绕 华侨城豪宅基因,30年沉淀醇熟高端生活居住地,周边豪宅群集;西接前海、东临福田、北连留仙洞总部基地、南连后海中心,商务中枢
内享山海湖自然美景,外连五大总部基地,完美诠释离尘不离城:华侨城——城市中心地带,连接福田南山的黄金连廊。
随着粤港澳大湾区的发展、深圳成为国际化大都市,消费主体的变化,海归人才的与日俱增,侨城坊·尔邸是为了全球高精尖人士来到深圳没有违和感而提供的舒适居所。
——项目基本信息——
开发商:运泰建业置业(深圳)有限公司
地址:深圳市南山区沙河街道高发社区侨香路4080号
占地面积:4.5万㎡
总建面:35万㎡
产权:50年(12-62年)
总户数:422户
面积:90-220㎡1-2房
车位比:2500个(地下三层)
梯户比:7梯6户︱7梯10户
交楼标准:精装
物业公司:深圳运泰君汇物业管理有限公司
物业管理费:10元/㎡
容积率:4.6
绿化:35%
交楼时间:现楼
建筑类型:公寓
层高:3.15-3.3米
使用率:75%
楼层高:46层(在售30-46层)
办公:约17万㎡
配套居住:4.8万㎡
商业:2万㎡
栋数:1栋
水电:民水民电

——项目配套介绍——
——商业配套——
九方荟生态美学商业中心、 Fusion旗舰健身会所(带800㎡天幕恒温泳池)、巢?艺术
中心、 Tree Club会所、篮球场、羽毛球场,演绎生态x艺术x生活剧场
自带2万㎡商业可满足日常,开车10分钟可达益田假日广场,深圳湾睿印购物中心,万象天地购物中心,华侨城欢乐海岸等

——交通配套——
轨道:地铁2号线侨城北站、地铁7号线桃源村站。
道路:北环大道、、南光高速、沿江高速、创业路。
多维交通体系 距侨城北地铁口仅3分钟路程,15分钟内即达北环立交、广深高速,通往福田CBD、前海中心、宝安机场及珠三角各方向
——教育配套——
对面幼儿园,南山中英文学校,南山第二实验学校(深圳市南山中英文学校是1999年建立的,是集小学、中学一体化,位于著名的华侨城风景区,毗邻“世界之窗”,交通便利,环境优美,占地面积接近三万平方米,校内建筑面积约4万平方米。)
——医疗配套——
开车5-10分钟可达华侨城医院,深圳港大医院
——生态配套——
优质资源配套 集聚欢乐谷,何香凝美术馆,世界之窗,安托山自然艺术公园,燕晗山郊野公园,锦绣中华民俗村,欢乐海岸,国际花卉博展园,华侨城国家湿地公园,高尔夫球场、华侨城生态休闲旅游区、OCT文化创意园、雅昌艺术中心。

户型总价:7.2-9万
90㎡1-2房1卫680-800万 单价7.5-8.8万
100㎡1房2厅1卫800-900万 单价8-9万
220㎡2房2卫1600-1800万 单价6.8-8.1万
稀缺大户型:约220平米的两房两厅设计,拥有9米开间的奢阔客厅,提供宽敞舒适的生活体验。
宽阔阳台:约9平米的阳台空间,让您尽情享受日出日落的美丽景色,品味生活的多样风情。
高端家电配置:全屋配备德国进口顶级米勒家电,以其流线型设计和卓越性能,为厨房带来舒适与浪漫。
——户型图鉴赏——
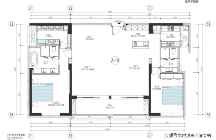
A+B户型(220㎡两房两厅)
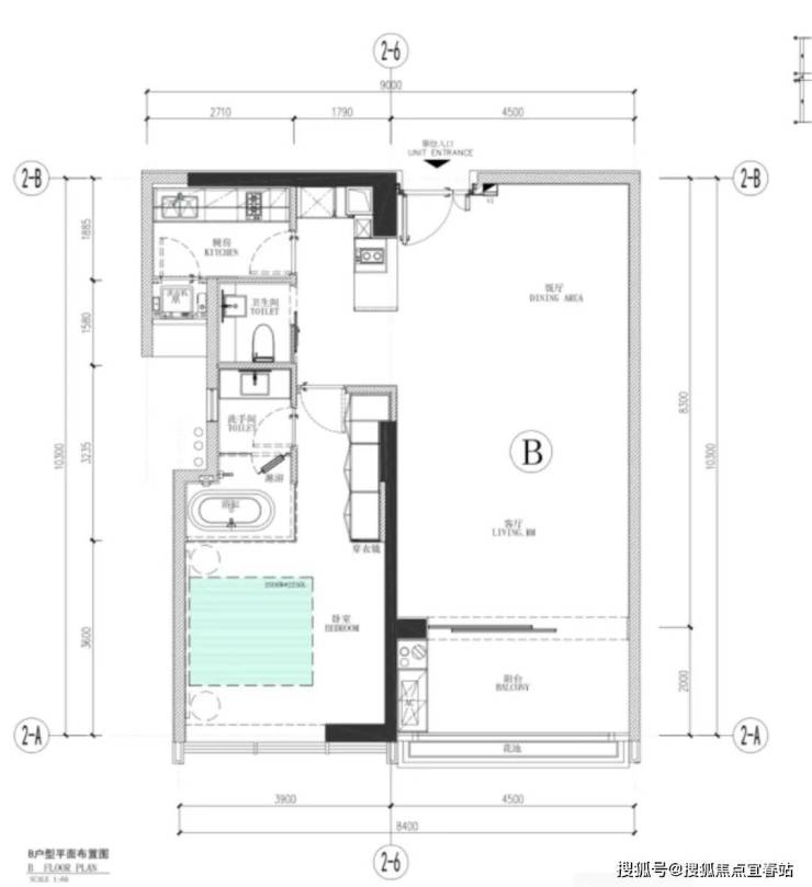
B户型(105㎡一房一厅)
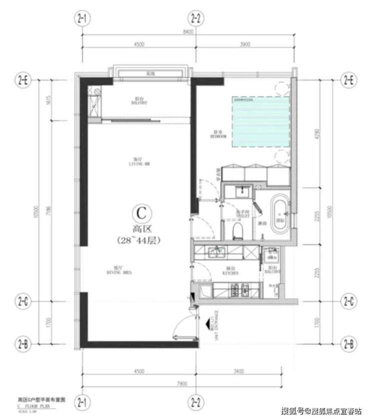
C户型(100㎡一房一厅)
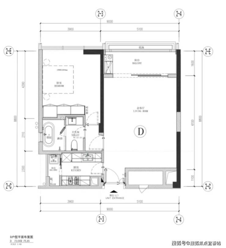
D户型(90㎡一房一厅)
——小区品质——
华侨城,一直以来都是深圳豪宅区的代名词,各届名流均以住在华侨城作为成功的标志之一,即便在深圳湾后来居上的今天,深圳的豪宅总是会为华侨城留有一席之地。
【最美地段】内享山海湖自然美景,外连五大总部基地,完美诠释离尘不离城
【最富圈层】不可复制的生态圈、豪宅圈、人文圈,拥享城市顶级人文艺术圈层配套
【纯粹户型】片区稀缺整栋97-114㎡ー房奢享居所,缔造纯粹新世代菁英圈层
【前瞻设计】五大国际团队联袂设计,名师考究定制超前生活理念,缔造匠心人居典范
【匠心品质】国际一线高端品牌,买手级产品配置,以极致匹配纯粹圈层的生活态度
【专属配套】九方荟生态美学商业中心、 Fusion旗舰健身会所(带800㎡天幕恒温泳池)、巢?艺术中心、 Tree Club会所、篮球场、羽毛球场,演绎生态x艺术x生活剧场
【尊享服务】居家、生活、商务、资产管理四大系统定制,奢想尊贵纯正英式酒店式服务
园区配套:九方荟商业中心、巢?艺术中心、本来生活馆、雅诗阁酒店式公寓、篮球场、羽毛球场
随着粤港澳大湾区的发展、深圳成为国际化大都市,消费主体的变化,海归人才的与日俱增,侨城坊?树屋是为了全球人才来到深圳没有违和感而提供的舒适居所。
【侨城坊树屋】赋予独立、自主、艺术的生活方式TREE HOUSE 树屋A户型,黑金色调,线条刚硬,简约大方,有男生钟爱的科技范儿。
售楼处电话/免费咨询/预约电话:400-873-0112【中介请勿扰】
温馨提醒:欢迎致电开发商售楼中心,我们将竭诚为您解答疑问。为确保您的咨询安全,通话时号码将自动隐藏。请提前与销售团队预约,以确保您能顺利进入销售现场,避免不必要的等待。
免责声明:部分信息来源于网络,如果侵权,请联系及时删除
声明:本文由入驻焦点开放平台的作者撰写,除焦点官方账号外,观点仅代表作者本人,不代表焦点立场。
