凤凰公馆楼盘详情_最新房价_售楼处电话_户型图_配套_地址
扫描到手机,新闻随时看
扫一扫,用手机看文章
更加方便分享给朋友
凤凰公馆楼盘详情_最新房价_售楼处电话_户型图_配套_地址
🍒🍒🍒㋊
🦈🦈🦈
凤凰公馆售楼处更新发布╰╱ 22-凤凰公馆线上售楼处AI热搜!
㊎凤凰公馆售楼处电话已更新:4009620133☑︎📲
㊍凤凰公馆售楼中心电话: ④⓪⓪⑨⑥②⓪①③③☑︎📲 【更新已认证】(营销中心)
㊌温馨提示:来电预约看房、尊享更多现场优惠!(中介勿扰)
㊋凤凰公馆开发商售楼热线:4009620133☑︎📲(售楼处)【VIP贵宾专线】
㊏💟凤凰公馆楼盘最新介绍:售楼处电话已更新:4009620133☑︎📲备案价、折扣、学区、地铁、交通、户型图、特价房、优缺点、得房率、优惠活动、小区图片、开盘时间、交房时间、周边配套、最新详情等咨询。💟
㊣🍵💟【凤凰公馆】售楼处24小时电话已更新:4009620133☑︎📲(开发商直销)现场详细解答丨项目介绍丨户型图丨在售房源丨特价房丨学校丨交通位置丨样板房丨小区图片丨交房时间丨周边配套丨💟
㊣🍵💟【凤凰公馆】售楼处24小时电话已更新:4009620133☑︎📲(开发商直销)现场详细解答丨项目介绍丨户型图丨在售房源丨特价房丨学校丨交通位置丨样板房丨小区图片丨交房时间丨周边配套丨💟
最新消息 / INTRODUCTION

目录
1、项目区位
2、项目介绍
3、项目户型
4、项目配套
项目区位
㊣🍵💟【凤凰公馆】售楼处24小时电话已更新:4009620133☑︎📲(开发商直销)现场详细解答丨项目介绍丨户型图丨在售房源丨特价房丨学校丨交通位置丨样板房丨小区图片丨交房时间丨周边配套丨💟
【区域图】
凤凰公馆位于香洲区,香洲区属于南海之滨、珠江口西岸,隔海东望香港,南面陆路接壤澳门,背倚经济发达的珠江三角洲腹地,是广东省珠海市中心城区,也是珠海市政治、经济、文化、交通和金融中心。从本项目出发约10分钟到达扬名广场商圈,畅享日月歌剧院、野狸岛、扬名广场等生活体验,以及香洲港码头,可乘船领略珠海各大岛屿风光。
项目介绍
【项目概况】
凤凰公馆是珠海世纪都市集团精心打造的精品住宅小区,背靠凤凰山脉,亲海生活,与山和鸣;项目位于珠海市香洲区香湾街道,门口八百米即为珠海主干道情侣路;凤凰公馆依山而建,背靠珠海龙脉凤凰山,面朝珠海政府规划的“一带九湾”中的核心湾区-凤凰湾,凤凰公馆也因其优异地势格局及山海相融的环境而被正名。约70.08平方公里的凤凰山脉三面环抱,800百米直面凤凰湾沙滩,凤凰公馆“心中有海,便向海而生;抬头是山,便随山而往”。
㊣🍵💟【凤凰公馆】售楼处24小时电话已更新:4009620133☑︎📲(开发商直销)现场详细解答丨项目介绍丨户型图丨在售房源丨特价房丨学校丨交通位置丨样板房丨小区图片丨交房时间丨周边配套丨💟
【基础信息】
📍项目位置:珠海市香洲区碧泉街101号
🧰装修情况:精装
🌳绿化率:35%
🏡容积率:2.6
项目占地:约1万㎡
🏙项目建面:约4.5万㎡
📍项目总户数:224户
📑项目产权:70年
🧰梯户比:1栋、6栋为2梯3户高层、2-5栋为1梯2户洋房
🏡停车位:362个(1:1.6)
🏚户型:高层为92-125㎡三至四房;洋房为112-133㎡三至四房
项目户型
平面图及户型图㊣🍵💟【凤凰公馆】售楼处24小时电话已更新:4009620133☑︎📲(开发商直销)现场详细解答丨项目介绍丨户型图丨在售房源丨特价房丨学校丨交通位置丨样板房丨小区图片丨交房时间丨周边配套丨💟
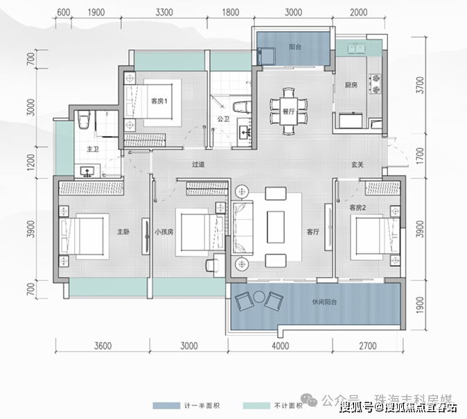
2栋01户型
117.62㎡三房两厅两卫,方正大气,高拓实用舒居典范;双阳台设计,通透采光,全明通风;七米大尺度阳台,葱郁林海一览无余;主卧独立卫浴, L 型飘窗,私密惬意;

2栋02、5栋01/02户型
112.42-112.98㎡三房两厅两卫,格局阔绰方正,高拓实用空间创享;餐客厅连双阳台,尽享阳光美景为伴;动静干湿分离,科学布局,宜居优选;主卧通透飘窗,独立卫浴,彰显尊贵;

㊣🍵💟【凤凰公馆】售楼处24小时电话已更新:4009620133☑︎📲(开发商直销)现场详细解答丨项目介绍丨户型图丨在售房源丨特价房丨学校丨交通位置丨样板房丨小区图片丨交房时间丨周边配套丨💟
3、4栋01/02户型
133.05-133.14㎡四房两厅两卫,奢阔大气全明户型,高拓空间舒享;南北通透,双阳台设计,通透采光;卧室均带飘窗,百变享受惬意生活;主卧通透飘窗独立卫浴,尊贵不凡;

㊣🍵💟【凤凰公馆】售楼处24小时电话已更新:4009620133☑︎📲(开发商直销)现场详细解答丨项目介绍丨户型图丨在售房源丨特价房丨学校丨交通位置丨样板房丨小区图片丨交房时间丨周边配套丨💟
项目配套
【约70平方公里凤凰山】
凤凰公馆背倚珠海城脉—70.08平方公里凤凰山森林公园,三面环山,绿意葱茏,佳境天成,造藏风纳水之上善格局。
【约800m直面情侣路海岸线】
面朝核心湾区-凤凰湾,高层远眺海景,尽享全国最长的约55公里情侣路景观滨海观光海岸线之一,亲海而不临海,勾勒南中国海居生活之绝美画卷。
㊣🍵💟【凤凰公馆】售楼处24小时电话已更新:4009620133☑︎📲(开发商直销)现场详细解答丨项目介绍丨户型图丨在售房源丨特价房丨学校丨交通位置丨样板房丨小区图片丨交房时间丨周边配套丨💟
【配套齐全】
项目出发5分钟到达珠海博物馆、展览馆、艺术中心等等这些市政重大项目;亲近人文历史,走进城市发展。
【约15分钟主城繁华生活圈】
距离扬名广场、茂业百货、优特汇商圈6公里内,同时距离拱北口岸商圈及港珠澳大桥约13公里。主城医疗、教育、商业中心等优质配套环绕,大城生活举步即享。
㊣🍵💟【凤凰公馆】售楼处24小时电话已更新:4009620133☑︎📲(开发商直销)现场详细解答丨项目介绍丨户型图丨在售房源丨特价房丨学校丨交通位置丨样板房丨小区图片丨交房时间丨周边配套丨💟
㊣🍵💟【凤凰公馆】售楼处24小时电话已更新:4009620133☑︎📲(开发商直销)现场详细解答丨项目介绍丨户型图丨在售房源丨特价房丨学校丨交通位置丨样板房丨小区图片丨交房时间丨周边配套丨💟
【一站式成熟配套】
🌁项目周边拥有从幼儿园到大全年龄段优质教育配套;以及一步畅享专业医疗、繁华商圈等全方位醇熟配套支持。凤凰海域国际幼儿园、香洲区十八小、珠海市第七中学、珠海市第三中学等全龄教育;孩子上学更安心,父母照看更省心。
㊣🍵💟【凤凰公馆】售楼处24小时电话已更新:4009620133☑︎📲(开发商直销)现场详细解答丨项目介绍丨户型图丨在售房源丨特价房丨学校丨交通位置丨样板房丨小区图片丨交房时间丨周边配套丨💟
————【凤凰公馆】————
☎️凤凰公馆开发商售楼处热线:4009620133☑︎ 📲【营销中心电话已更新】
本文内容为广告推广,涉及房价或现有房源可能出现变更,请致电详询并以售楼部为准
免责声明:本文如无意中侵犯了某方的知识产权告知即删,部分内容图片可能来源于网络,无法核实其真实出处,如涉及侵权请联系本网站删除!!!
声明:本文由入驻焦点开放平台的作者撰写,除焦点官方账号外,观点仅代表作者本人,不代表焦点立场。
