《中信信悦湾售楼处电话丨首页网站 - 中信信悦湾营销中心欢迎您 - 中信信悦湾实时价格 - 户型图 - 楼盘详情 - 容积率 @售楼处中心 》
扫描到手机,新闻随时看
扫一扫,用手机看文章
更加方便分享给朋友
🏅中信信悦湾售楼中心电话:400-873-0112(已认证☑☑☑)
🏅中信信悦湾营销中心电话:400-873-0112(已认证☑☑☑)
🏅中信信悦湾开发商电话:400-873-0112(已认证☑☑☑)
✅购房困惑?专业帮您!🎯
专属房产顾问一对一精准服务(直连开发商)
丨楼盘位置丨户型介绍丨房源情况丨优惠活动丨教育资源丨交通便利丨样板间展示丨社区环境丨交房标准丨周边配套
深圳湾东角头「中信信悦湾」预计12月中旬开放样板房!
一、项目基本信息
项目地理位置优越,位于南山后海大道与望海路交界东北角,东邻在建的海岸学校,北接奥城花园、翡翠海岸等豪宅小区,南靠深圳歌剧院(在建中),西近深圳湾口岸,处于深圳湾核心区域。其一线临海景观为项目增添了独特的生态与配套价值。
坐拥三面环海的稀缺景观,拥有永久性且无遮挡的海景视野,并紧邻地标性建筑深圳歌剧院。以下是项目详细规划(仅供参考,以官方最终公布为准):
设计方面,项目由英国法雷尔建筑设计事务所负责,采用超高层流线型外观,外立面使用曲面玻璃幕墙和金属材质,融入太阳能光伏板、雨水收集系统等环保技术,强调品质与可持续发展。
外立面用的玻璃幕墙,虽然深圳已经很多了,不过这次的特殊工艺是首创的。
二、 楼盘信息
中信深圳湾项目占地面积约11万㎡,总建筑面积约39.6万㎡,项目规划为大型综合体,一期纯住宅407户,容积率3.56。二期为商业、酒店和办公、商墅等多种业态,其中住宅建筑面积约26.9万㎡,商业建筑面积约4.4万㎡,酒店建筑面积4万㎡,办公建筑面积2.6万㎡,并配建18班幼儿园,总货值预估超700亿元。
小区有约407套为211-218-302-370-512-518-655-938㎡户型,11月25日开发布会,月底开放展厅。
预计12月15日开样板间,仅展示302㎡和370㎡两个户型。目前的计划是赶在12月31日取证一栋入市,预计首推的是1-2栋(370㎡)、1-4栋(302㎡)里面挑,1-1栋(512㎡)押后。
•
A栋:510㎡户型,层高3.6米,四套房设计,约30余套;
•
B栋:370㎡户型,层高3.5米,四套房设计,约80余套;
•
C栋:211㎡户型,层高3.3米,三房设计,约120余套;
•
D栋:302㎡户型,层高3.5米,四房设计,约80余套(主力户型);
•
E栋:307㎡户型,层高3.5米,四房设计,约80余套。
🏅中信信悦湾售楼中心电话:400-873-0112(已认证☑☑☑)
🏅中信信悦湾营销中心电话:400-873-0112(已认证☑☑☑)
🏅中信信悦湾开发商电话:400-873-0112(已认证☑☑☑)
三、户型介绍与分析
A栋 510平[512㎡四房五卫+家政套间]预算1个小目标的天花板产品
户型分析:分布在1-1栋43F,一层3梯1户,相当于整层都自己家了,这个户型本来要捅破深圳湾常规户型的天花板,1小目标的预算,完美诠释,在别墅与大际大平层全凭实力和个人喜爱
B栋 [375㎡的四房五卫+家政套间]预算6000万左右产品
🏅中信信悦湾售楼中心电话:400-873-0112(已认证☑☑☑)
🏅中信信悦湾营销中心电话:400-873-0112(已认证☑☑☑)
🏅中信信悦湾开发商电话:400-873-0112(已认证☑☑☑)
户型分析:这个户型是相当通透的户型,格局非常顶豪。分布在1-2栋47F,5梯2户,设计了独门独户的入户空间。
01和02户设计几乎一致,主朝向东偏一点南,01侧朝南,02侧朝北,相较于改版之前多了一个套间,并且直接把家政套间划在了核心筒进,增加了过道的利用率和主仆之间的界限,户型设计没有特别要挑剔的硬伤
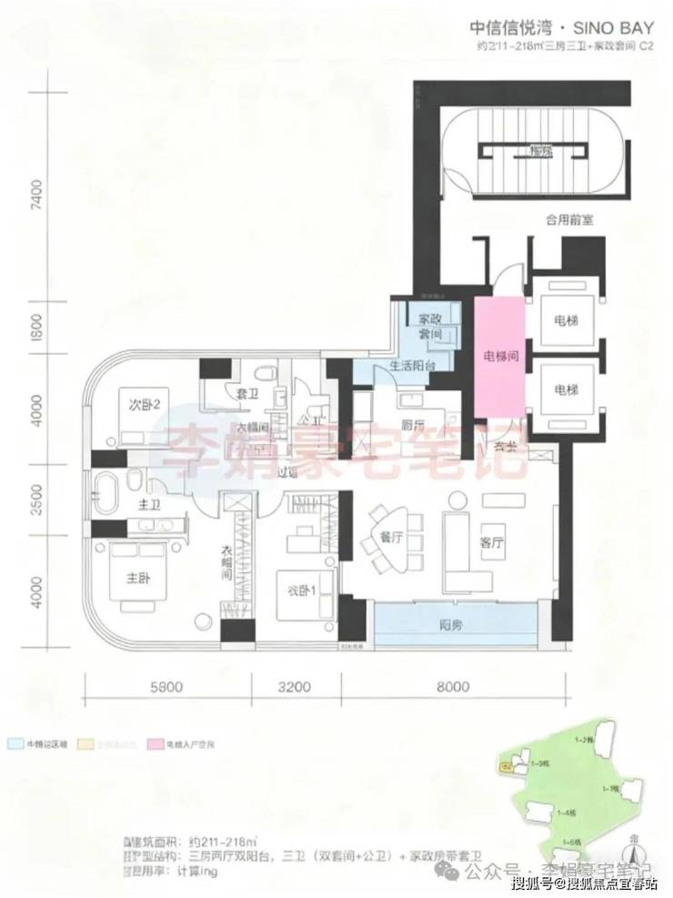
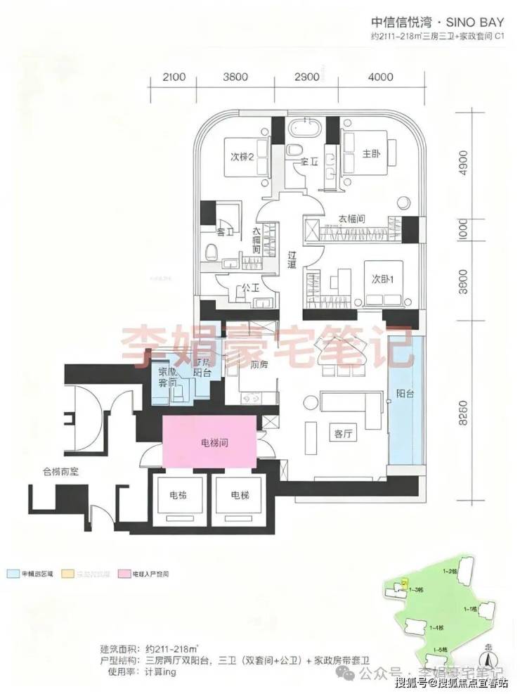
C栋[211-218 平3房2卫+保姆套房]预算3000万左右产品
户型分析:顶豪级别的入门级产品预算3000万左右
约211-218㎡三房三卫+家政套间,分布在1-3栋,4梯3户51F超高层,都有专梯入户。这是在小区最靠里边的位置,是有遮挡的景观。
C栋一层三户约211-218㎡三房三卫户型,01是双梯独门独户,02/03是双梯双门,也设计了专梯入户空间。三个户型都有些许差异,大家可以看红色标记
D、E栋[302㎡四房四卫+家政套间]预算5000万左右产品
🏅中信信悦湾售楼中心电话:400-873-0112(已认证☑☑☑)
🏅中信信悦湾营销中心电话:400-873-0112(已认证☑☑☑)
🏅中信信悦湾开发商电话:400-873-0112(已认证☑☑☑)
户型分析:这个户型是弓形结构,分布在1-4栋和1-5栋,3梯2户都有双门梯专梯入户。
01和02户主要是因为核心筒的结构影响,户型设计完美,户型的优势体现在家政套间和采光面的设计上。不过弧形阳台没看懂,正面2.1米,侧面只有不到1米宽度,尺度感不太够。
D、E栋位居二线,E栋位于一线,都要越过71.75米的歌剧院才能看景,大概在19F以上才能越过,要彻底越过歌剧院取得一个较好的视野,起码要买到20F以上。
四、地段配套
1、深圳湾作为粤港澳大湾区核心地段,是深圳房价的高地,项目周边产业聚集,包括腾讯、阿里等约80家知名企业总部,汇聚了大量高端财富人群。
2、交通方面,项目临近在建地铁13号线歌剧院站和2号线东角头站,可快速串联深圳湾、科技园等区域;道路网络完善,可通过望海路、后海滨路便捷通达主要干道。此外,靠近深圳湾口岸,往返香港便利。
3、商业配套上,项目自带6000㎡商业,周边有BABY CITY、恒裕香悦里等,3.5公里范围内涵盖万象城、海上世界等大型商业中心。教育资源丰富,1公里内有海岸学校(在建)、海岸小学、深圳湾学校南校区等,其中海岸学校规划54班,提供2520个学位。
4、休闲方面,与深圳歌剧院一路之隔,该剧院投资30亿元,对标悉尼歌剧院;同时靠近滨海栈道、女娲滨海公园等,满足高端生活需求。
🏅中信信悦湾售楼中心电话:400-873-0112(已认证☑☑☑)
🏅中信信悦湾营销中心电话:400-873-0112(已认证☑☑☑)
🏅中信信悦湾开发商电话:400-873-0112(已认证☑☑☑)
🏅关于本最新动态信息,如:房价,主力户型面积,最低折扣,等等,剩余户型楼层,去化率,几号地铁哪个地铁口,周边规划,项目的优劣势以及学校的配套等等都可以致电售楼处进行了解,我们将会安排内场专业置业顾问为您答疑解惑!
📢【搜狐焦点·本项目专属咨询】「房价/户型/折扣/学区/地铁全解析!」
🔥最新房源动态、稀缺折扣、限时名额一键获取,极速响应!
✅搜狐焦点认证顾问1v1服务独家到访礼/成交礼仅限线上预约!
⏰24小时线上预约!!!
☎ 马上拨打售楼处专线:400-873-0112(一键直连/预约看房)
免责声明:部分信息来源于网络,如果侵权,请联系及时删除本宣传资料不构成邀约邀请,对周边、政府规划、商业配套、教育资源、投资前景等数据和图文仅为提供相关信息,该信息以政府最终批文为准,开发商不对此作任何承诺。买卖双方的权利义务以双方签订的买卖合同约定及附件、实际交付为准,本公司保留对宣传资料修改的权利,敬请留意最新资料。联系号码:400-873-0112。
声明:本文由入驻焦点开放平台的作者撰写,除焦点官方账号外,观点仅代表作者本人,不代表焦点立场。
