《中海云启源境首页网站-2025年中海云启源境+房价+户型图+小区环境+配套》
扫描到手机,新闻随时看
扫一扫,用手机看文章
更加方便分享给朋友
✅购房困惑?专业帮您!🎯
专属房产顾问一对一精准服务(直连开发商)
🌈中海云启源境销售中心电话:400-823-9396(已认证☑☑☑)
🌈中海云启源境营销中心电话:400-823-9396(已认证☑☑☑)
丨楼盘位置丨户型介绍丨房源情况丨优惠活动丨教育资源丨交通便利丨样板间展示丨社区环境丨交房标准丨周边配套
/01/
南山科技园:深圳创新核心与经济支柱
南头古城:深圳文化瑰宝与历史地标
中山公园:南山区绿色文化客厅
北环大道:深圳东西主干道与产业交通轴
中海云启源境坐落于南山南头,北环大道北侧,紧邻科技园,南眺中山公园。坐享优越区位与完善配套,是科技园精英置业优选。项目以提升城市品质、营造优质生活为目标,匠心打造高品质人居,成就深圳好房子典范。
🌈中海云启源境销售中心电话:400-823-9396(已认证☑☑☑)
🌈中海云启源境营销中心电话:400-823-9396(已认证☑☑☑)
片区联动,规划共生
项目南侧紧邻豪方天际办公楼及广场,原以围墙分隔,界面消极。设计初期即贯彻整体规划理念,与周边协同沟通,将主入口南向设置,打破边界隔阂,以广场为核心形成开放围合空间。
城市界面优化
规划三栋南北向方正塔楼,顺应城市肌理,与现有办公楼形成完整空间体系。沿南农路塔楼高度设置为150米与80米,与办公楼及规划学校共同塑造错落天际线,减轻对学校的压迫感。楼型设计优先景观资源,最大化南向面宽并融合城市视野,确保每户享有优质景观。
/02/
酒店式社区大堂
面向广场,打造入口前场—门廊—大堂—内庭院—单元大堂的归家序列。通过建筑、景观、室内、标识与灯光一体化设计,融入南洋文化元素,强化酒店式归家仪式感,彰显品质气度。
多层级社区配套
项目规划双层次共享空间:裙房2层设文化、养老、托幼及社区体育等设施,面向全社区开放;三层架空层配置空中客厅、健身区、全龄沙龙与儿童阅读区,专为业主提供日常社交与活动空间。通过合理布局促进庭院空气对流,兼顾功能性与社区互动需求。
🌈中海云启源境销售中心电话:400-823-9396(已认证☑☑☑)
🌈中海云启源境营销中心电话:400-823-9396(已认证☑☑☑)
微风绿谷:沿内部庭院设置一圈风雨连廊,形成廊下漫游空间,实现近人空间的游走体验,提供丰富的檐下生活场景;小区庭院东、南、北三个方向均设置有架空等开敞空间,有利于改善气候条件,形成对流风。这些也都体现出浓厚的岭南建筑的空间特色。
/03/
整体建筑立面风格以现代简约为主,强调滨海地区明快通透的立面效果。为了与相邻办公楼风格统一,裙房部分出挑玻璃体块做了导弧处理。
立面与造型设计
塔楼采用270°转角凸窗,削弱体量感,与相邻办公楼立面呼应。立面选用玻璃、铝型材与真石漆,虚实对比,凸显现代感。顶部设5米高塔冠,以彩釉玻璃融入专属LOGO图纹,强化项目标识性。
/04/
高效楼型与得房率
单元采用一层五户布局,高层配2梯、超高层配3梯,精简交通面积,提升得房率。
精品改善型产品
基于成熟产品体系升级,融入客餐厨一体、可变空间及场景化阳台等创新设计理念。
绿色自然设计
户型均多开间朝外,最大化采光通风,确保所有功能空间明净通透。
/05/
品质把控与细节落地
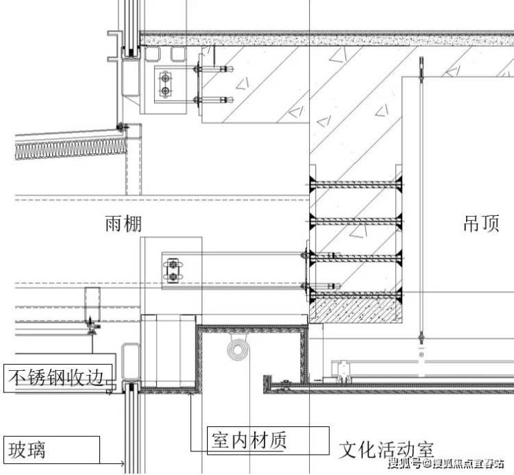
为确保品质,设计团队深入推敲立面材质与细节,通过工程样板、1:1实体泡沫模型及KT板打印等方式精准比对构件尺度,高效完成幕墙定样,为落地效果提供坚实保障。
多专业一体化设计,细部推敲阶段就划分出明确设计界面,相互讨论提交界面交接节点。
/06/
项目展示区已正式开放。门前广场空间更完整,品质显著提升。客户从地库至销售中心(兼大堂)的归家动线,仪式感十足,完美契合设计初衷。期待大区落成,实现与城市共享共融。
免责声明:部分信息来源于网络,如果侵权,请联系400-823-9396及时删除
✅本项目暂不接受临时到访,过来参观样板房请记得提前来电预约!
🌈中海云启源境销售中心电话:400-823-9396(已认证☑☑☑)
🌈中海云启源境营销中心电话:400-823-9396(已认证☑☑☑)
声明:本文由入驻焦点开放平台的作者撰写,除焦点官方账号外,观点仅代表作者本人,不代表焦点立场。
