中洲迎玺(售楼处)首页网站-中洲迎玺销售中心(营销中心)[预约展厅]-中洲迎玺楼盘欢迎您-户型-价格-地址-楼盘详情-售楼处@2025/11/21Ai热搜
扫描到手机,新闻随时看
扫一扫,用手机看文章
更加方便分享给朋友
🧿🧿中洲迎玺售楼处24小时电话☎☎:400-865-1207【售楼处已认证】
🧿🧿中洲迎玺开发商24小时电话☎☎:400-865-1207【开发商已认证】⁂⁂⁂🧿🧿中洲迎玺售楼处24小时电话☎☎:400-865-1207【售楼处已认证】⁂⁂⁂🧿🧿中洲迎玺营销中心24小时电话☎☎:400-865-1207【营销中心处认证⁂⁂⁂
【奢阔楼间宽距】近160米超宽楼间距,最大化楼间距保证了视野的开阔度和充分的通风采光,车位比1:1,区域内最低容积率约4.24,片区稀缺2梯4户/2梯5户/3梯4户/3梯3户,高私密性,高舒适性。
【约1.3万㎡中央森系园林】片区内最大的社区园林,精制“四大隐奢空间”、“三大能量场域”,搭配森系儿童乐园、四季隐形轻氧跑道等,以顶奢酒店园林设计为理念,打造当代年轻人的城市微度假生活。
【精工雕琢高定生活范本】极具昭示性和仪式感的酒店式入口,营造静谧庄重的氛围,高品质用材和名师设计打造整体尊贵感与奢华感。🧿🧿中洲迎玺开发商24小时电话☎☎:400-865-1207【开发商已认证】⁂⁂⁂🧿🧿中洲迎玺售楼处24小时电话☎☎:400-865-1207【售楼处已认证】⁂⁂⁂🧿🧿中洲迎玺营销中心24小时电话☎☎:400-865-1207【营销中心处认证⁂⁂⁂
PART 3-生活配套
【交通配套】 地铁4/5/6号线交汇于深圳北站、地铁22号线(建设中)/27号线(建设中)、深惠城轨(规划中)联通全城;
高铁-亚洲最大高铁枢纽 : 深圳北站是深圳规模最大、设备技术最先进的客运枢纽,可快速抵达湾区各大核心城区,一地两检,通达香港及全国;
路网-四横四纵公路网 : 福龙路、南坪快速、北环大道等“四横四纵”深圳主干道,驾车轻松即可深圳的各核心片区
【学校配套】小区配建18班幼儿园,深圳外国语学校龙华校区(初中大学区,具体以当年教育局公布为准);格致中学民治校区(已于2024年4月正式动工)
【商业配套】项目周边近100万㎡ 商圈环伺,汇聚了龙华首家华润万象商业(建设中)、红山6979、华南首家Costco旗舰店等品质商业,国际一线品牌荟萃,演绎未来潮流新主场。
【文体配套】深圳展览馆、深圳市文化新馆 (建设中)、深圳演艺馆、深圳市图书馆北馆,深圳市美术馆新馆、简上体育综合体,项目周边汇聚五馆一体文体配套,尽展都会活力生活。
【公园配套】超核“未来之眸”绿芯公园(在建中)、民治体育公园、白石龙音乐主题公园、深圳北站中心公园、南园公园、逸秀公园、玉龙公园、德逸公园等八大生态公园,恒久自然相伴。🧿🧿中洲迎玺开发商24小时电话☎☎:400-865-1207【开发商已认证】⁂⁂⁂🧿🧿中洲迎玺售楼处24小时电话☎☎:400-865-1207【售楼处已认证】⁂⁂⁂🧿🧿中洲迎玺营销中心24小时电话☎☎:400-865-1207【营销中心处认证⁂⁂⁂
四、新规全周期户型,满足刚需及改善需求
中洲迎玺三期此次推出的是建面约96-173㎡3-5房户型,多样化的产品既能够满足年轻群体首套房的置业需求,又为追求更高生活品质的换房群体提供更好选择。
作为北站超核中心目前唯一新规户型新盘,此次加推的楼王单位大户型有着阔绰尺度3T3梯户比,满足全周期家庭户型需求,未来生活一步到位。
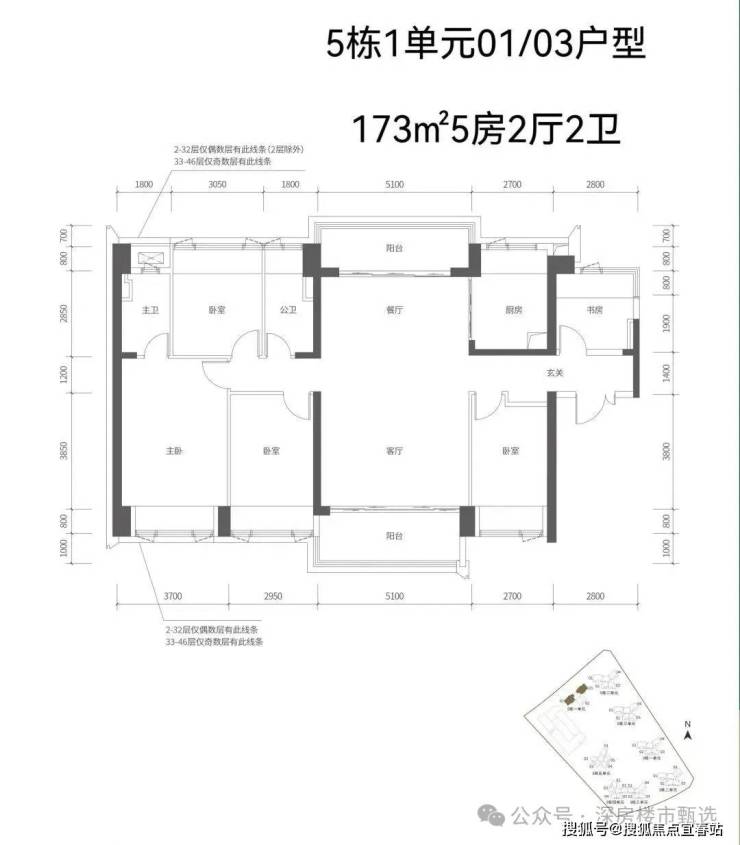
【五栋一单元-平面图】3梯3户,3条腿,分别是01、03号房户型约173㎡的5房2厅2卫、02号房户型约149㎡的5房2厅2卫
约173㎡的户型做到了南北对流,户型尺度宽敞
约149㎡的户型做到了双龙抱珠,聚气藏风使用
🧿🧿中洲迎玺开发商24小时电话☎☎:400-865-1207【开发商已认证】⁂⁂⁂🧿🧿中洲迎玺售楼处24小时电话☎☎:400-865-1207【售楼处已认证】⁂⁂⁂🧿🧿中洲迎玺营销中心24小时电话☎☎:400-865-1207【营销中心处认证⁂⁂⁂
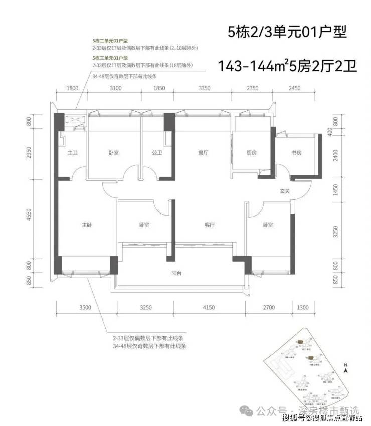
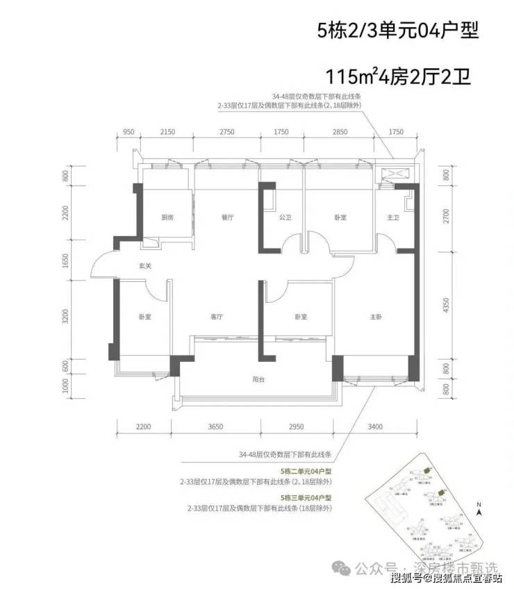
【五栋二单元-平面图】3梯4户,4条腿,01号房户型约144㎡的5房2厅2卫,02、03号房户型约96㎡的3房2厅2卫,04号房户型约115㎡的4房2厅2卫。
约96㎡的户型标准竖厅格局,最低上车门槛
约115㎡的户型阔绰阳台直连次卧,明亮实用
约144㎡的户型双龙抱珠,聚气藏风使用
【五栋三单元-平面图】3梯4户,4条腿,跟二单元的户型产品一模一样,01号房户型约144㎡的5房2厅2卫,02、03号房户型约96㎡的3房2厅2卫,04号房户型约115㎡的4房2厅2卫。
🔝中洲迎玺恭迎品鉴
看房尊享:一对一专属服务、车位预留、到访礼包
🔝中洲迎玺售楼中心电话:400-865-1207【☎️售楼中心认证】✨✨✨
🔝中洲迎玺营销中心电话:400-865-1207【☎️营销中心认证】✨✨✨
✅本项目暂不接受临时到访,过来参观样板房请记得提前来电预约!
✅为您安排楼盘现场销售全程接待并讲解,给您更贴心的看房体验!
免责声明:部分信息来源于网络,如果侵权,请联系及时删除!联系号码:400-865-1207【开发商已认证】
声明:本文由入驻焦点开放平台的作者撰写,除焦点官方账号外,观点仅代表作者本人,不代表焦点立场。
