汉京山樾湾花园售楼处(山樾湾花园)首页网站-山樾湾花园营销中心欢迎您-楼盘详情·最新价格-户型图-容积率@售楼中心-2025.10.27
扫描到手机,新闻随时看
扫一扫,用手机看文章
更加方便分享给朋友
 
 
 
 
 
 
 
✅山樾湾花园售楼处 / 开发商 / 营销中心统一热线:400-9970-520(全程认证,无分机号)
 
基本情况
 
项目位置:
山樾湾花园位于深圳市南山区前海路0005号。
 
房源户型:
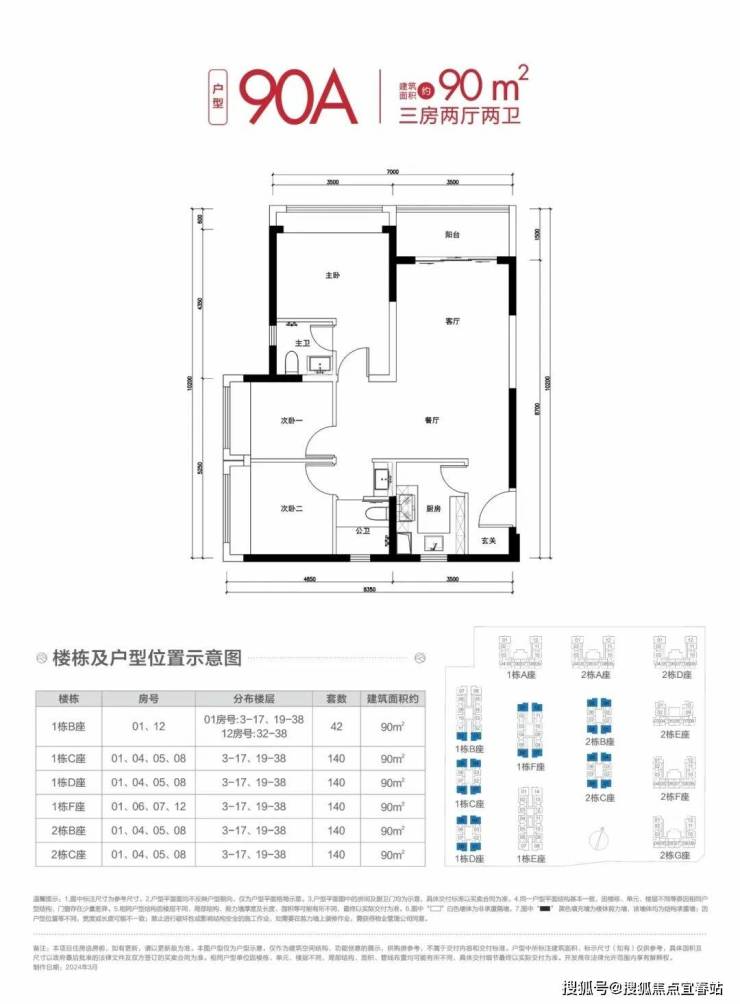
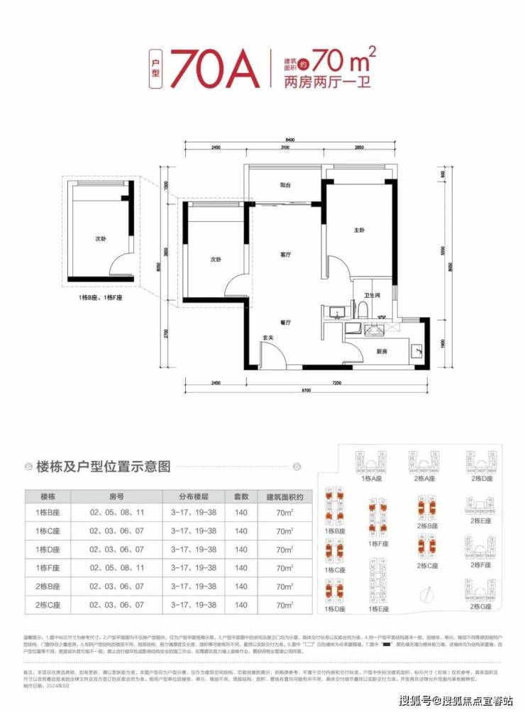
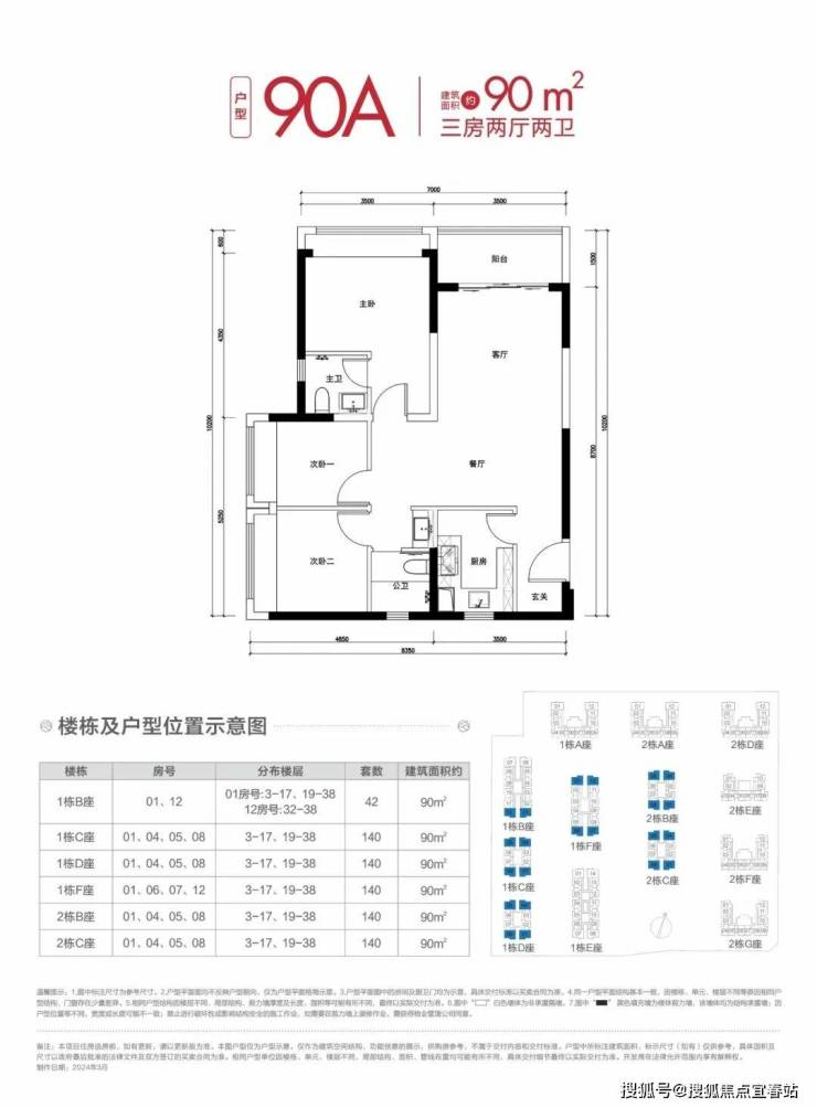
本批次住房共3466套,其中建筑面积70平方米左右的两房2629套,建筑面积90平方米左右的三房837套(包含93套无障碍户型)。
 
 
 
 
 
 
 
配售对象
 
 
 
 
第一队列:属于深圳市安居型商品房在册轮候家庭且仍符合安居型商品房轮候申请条件,或在本通告认购截止前符合安居型商品房申请条件且经深圳市人力资源和社会保障局认定的领军人才(人才证书在有效期内或人才证书虽不在有效期但期末评估合格)。
第二队列:符合安居型商品房轮候申请条件的非在册轮候申请家庭。
 
 
 
1.申请人、共同申请人均具有本市户籍;申请人配偶属现役军人的,可以不受户籍限制;申请人的未成年子女因就学而将户籍迁出本市的,视为具有本市户籍。
2.申请人参加本市社会保险累计缴费5年以上;申请人为本科及以上学历的,参加本市社会保险累计缴费3年以上。
3.申请人为单身的,应当年满35周岁。
申请家庭在认购截止日前,还应符合下列条件:
1.申请人、共同申请人均未在本市拥有任何形式自有住房,且在申请受理日之前5年内未在本市转让过或者因离婚分割过自有住房。
2.申请人、共同申请人在本市未购买过准成本房、全成本房、社会微利房、全成本微利房、单位集资建房、经济适用住房、安居型商品房(含面向人才配售)、共有产权住房等政策性住房,未享受过人才购房补贴、高层次人才奖励补贴等购房优惠政策。
申请人应当以家庭为单位提出本批次住房申请,申请人的配偶、未满18周岁(判定时点为本通告发布之日)的子女应当列为共同申请人,申请人年满18周岁的子女不能列为共同申请人。
未满18周岁的子女列为共同申请人的,不影响其成年后单独组成家庭或者达到规定年龄后以单身居民身份申请深圳市住房保障。
申请人父母、申请人配偶父母具有本市户籍的,可以作为共同申请人。
属于以下特殊群体的,不受缴纳社会保险时间限制:①申请人、共同申请人属于经民政部门或退役军人管理部门认定的抚恤定补优抚对象;②申请人、共同申请人属于经残疾人联合会或退役军人管理部门认定的残疾人。
投靠子女取得深圳市户籍的居民,只能作为共同申请人。
 
根据配售通告,单身居民及二至三人家庭可根据自身意愿认购本批次住房的两房户型。
领军人才、四人及以上家庭可根据自身意愿认购本批次住房的两房户型或三房户型。
三房无障碍住房(建筑面积约90㎡,共93套),面向领军人才、四人及以上的认购申请家庭配售。
 
 
 
 
网上申请认购
网上申请认购时间:
2025年10月24日16:00至2025年11月3日18:00。
*逾期未完成网上认购的,视为放弃认购。
认购申请家庭需调整认购意向的,应当于2025年11月3日18:00前,登录深圳市住房和建设局官方网站自行变更,逾期不予调整。
网上申请认购方式:
有意申购的认购申请家庭,应登录深圳市住房和建设局官方网站在线提交认购申请。
具体路径为:登录深圳市住房和建设局官方网站—>“政务服务”—>“服务主题”—>“住房保障服务”—>“安居型商品房认购申请”(“住房保障个人服务窗口”上方)。
山樾湾花园介绍
 
山樾湾安居型商品房位于南山前海,配售均价4.26万/㎡(带装修,预计2026年8月31日交付)
山樾湾与蛇口太子湾一山之隔,与前海妈湾一路即达,拥有顶级的城市配套和山海资源,汇聚地铁5号线、15号线(在建,通港路站距项目约500米)等多条轨道交通,快速接驳南山科技园、宝安中心、福田CBD。
 
作为南山唯一在售的安居型商品房,项目打造了58万㎡大型纯安居型商品房社区,规划约5万㎡园林空间、8大活动区、1.9万㎡公建配套、9500㎡商业。
小区配套南山机关幼儿园及前海创新教育集团九年一贯制山樾湾学校(工程暂定名:兴海学校,目前建设中)。
 
配售产品为建筑面积约70㎡两房、约90㎡三房两卫,首付39万元起、总价255万元起,即可上车南山前海核心,今年买明年住。
目前,山樾湾花园已经面向深户无房家庭开放申购,不确认是否符合申购条件的可以到项目展示中心进行资格初查。另外,全家一人深户和单身30岁以上的客户可密切关注,尽早到项目进行资料登记和资质审核。
一个家的重量,关乎着每一个奋斗者的幸福感和归属感。南山区将继续以最大的诚意和努力,持续扩大保障性住房供给,优化配套服务,让更多英才在南山“引得进、留得下、住得好”。
 
 
 
 
 
 
 
 
 
 
看房必知:案场预约制提示
提前预约是关键
:参观样板间、了解楼盘详情需提前致电登记,未预约客户暂无法进入销售现场。
专属服务不等待
:致电后将安排内场专业销售 1 对 1 接待,全程讲解户型、价格及最新优惠,提供定制化看房体验。
渠道辨真伪
:本项目仅通过 400-9970-520 提供咨询服务,无其他分机或第三方代理热线,拨打前请仔细甄别。
致电可享 3 大权益
实时获取楼盘最新动态、单价及优惠政策
优先锁定热门户型,预约专属看房时段
尊享内部认购折扣,买得放心更划算
📞 点击号码直接拨打:400-9970-520
 
 
 
 
 
 
 
 
 
声明:本文由入驻焦点开放平台的作者撰写,除焦点官方账号外,观点仅代表作者本人,不代表焦点立场。
 
  
  
 
 
  
 