九月搜狐焦点I 拾悦城楠园(售楼处)首发房源专属礼遇 恭迎预约参观 地铁/商圈/公园/一线景观
扫描到手机,新闻随时看
扫一扫,用手机看文章
更加方便分享给朋友
【拾悦城楠园】「搜狐焦点认证」
✅ 选房难题?一键解决!🎯 直属置业顾问1v1权威解答(拒绝中间商)
🔑 独家到访礼遇|仅限电话预约客户专享(限时发放)
⏰ 24小时金牌热线|黄金时段优先响应(早9点-晚9点极速接通)
☎ 马上拨打专线:400-873-0112(一键直连案场|预约看房/咨询)
丨项目区位丨户型解析丨在售房源丨特价优惠丨学区配套丨交通动线丨样板间实拍丨小区环境丨交付标准丨周边商业丨
项目简介
——拾悦城楠园——
西部中芯红盘 纯粹湖居天花板
Max级宽厅奢阔大三房 101-103㎡超值加推
【项目基础信息】
【占地面积】约3.5万㎡
【建筑面积】约23.5万㎡
【绿化率】约40%
【全盘房源】约1300套
【获批预售房源】共829套
【停车位】约2300个
【车位比】1:1.18
【发展商】深圳市凯德丰投资有限公司
【交房时间】2025.12.30
【交房标准】简装
【项目地址】11号线沙井站B口/马安山站A口
推售户型
86m² 三房两厅一卫 总价330万起
94m² 三房二厅一卫 总价340万起
101m² 三房两厅二卫 总价383万起
103m² 三房二厅两卫 总价380万起
115m² 四房两厅二卫 总价430万起
118m² 四房二厅两卫 总价440万起
120m² 四房两厅二卫 总价468万起
126m² 四房二厅两卫 总价490万起
140m² 五房两厅二卫 总价630万起
楼盘价格
3.65万/平米起!
💳付款方式
首付1.5成起 分期1~30年
项目价值点
【拾悦城楠园西部纯居天花板】
【优教Top:宝中外(集团)学校旁 接送省心】
项目内建设有一所18班幼儿园,拾悦小学与壆岗岗厦片区九年一贯制学校(在建)新建工程皆纳入深圳市宝安中学外国语学校(集团)成员学校,近距离接送省心,强师资家长安心。
【稳健Top:今年买今年住】
纯商品房社区,项目已全面封顶,今年买今年住,所见即所得,无需漫长等待。

【中心Top:绝对中芯 虹吸西部利好】
占据大前海门户,雄踞西部沙井“正中芯”,虹吸区域政策利好。
【出行Top:11号线上 高速畅达全城】
紧邻11号线沙井站805米,5站到机场,7站通宝安中心(从马安山出发),快速通达前海湾、后海总部基地、深湾总部基地、福田中心。
【繁华Top:超48万㎡醇熟生活圈】
项目约3公里内超48万㎡商荟集群,未来周边还会进驻山姆会员店(建设中)、海岸城等,悦享一站式购物生活圈。

☎ 马上拨打专线:400-873-0112(一键直连案场|预约看房/咨询)
【生态Top:定岗湖畔 绝佳优渥景观】
西部少有湖居,临湖而居,晨起清风拂面,晚归美景相迎!定岗湖公园占地面积约9.5万㎡,2023年荣获“最受市民欢迎奖”,公园包括水域、湿地、亲水平台、音乐喷泉、廊桥、儿童活动场地、足球场等,为周边市民提供了多样的公共活动空间。
【纯粹Top:纯粹大城 全维社区 圈层纯净】
70万㎡纯居大城,围合式社区,圈层纯粹。
☘围合式建筑布局:7栋塔楼点式排布、楼间距舒适、景观视野优渥、安静纯粹。
☘1.4万平全龄段主题园林: 1.4万平米中央园林,以“全维社区共享生活体系”为概念,打造全龄段、多元化、动静分明的沉浸式归家生活。
☘主题儿童区:670平米森系主题儿童乐园
☘环氧步道:356米环形健康步道,即能运动又能与家人一起享受幸福甜蜜的闲暇时光
☘社区活动广场 :专属社区活动场地,满足全龄段业主活动需求
☘高品质公区:高品质入户大堂、停车场入户大堂,归家仪式与空间交融
☘社区会客厅:沉浸式社区会客厅,邻里关系更温馨
☎ 马上拨打专线:400-873-0112(一键直连案场|预约看房/咨询)
【品质Top: 豪宅标准一线品牌 筑就精工品质】
以豪宅标准甄选知名品牌,采用高标准的skk真石漆涂料、国际认证级贝克洛系统门窗等。
【舒居Top:赏景舒居 全能空间】
匠造建面约86-140㎡三至五房,通透布局,敞阔尺度,收藏三代幸福时光,为每一个家庭定制纯粹舒居生活范本。
小区主入口
园林局部实景
【户型鉴赏】
约101㎡三房两厅两卫
✅Max级宽厅,奢阔大三房
✅客餐厅LDK一体化设计
✅1.8m进深大阳台
✅尊享主卧套房设计
约103㎡三房两厅两卫
✅三开间园景,全屋通透无敌采光
✅客餐厅LDK一体化设计
✅1.8m进深大阳台
✅奢享大三房,空间舒适
✅Promax大次卧满足孩子成长全周期需求
约86㎡三房两厅一卫
✅面向园心,全景视野享四季美景
✅餐客厅LDK一体化设计,欢聚时刻不受限
✅动静分区,互不干扰
✅三分离卫浴,从容有序
约94㎡三房两厅一卫
✅四开间全南向,全屋通透无敌采光
✅1.8m进深大阳台
✅奢享大三房,空间舒适
✅Promax大客餐厅 满足全家休闲娱乐
约100㎡三房两厅两卫
✅三开间南向,全屋通透无敌采光
✅客餐厅LDK一体化设计
✅1.8m进深大阳台
✅奢享大三房,空间舒适
✅Promax大次卧满足孩子成长全周期需求
约104㎡三房两厅两卫
✅开门见湖,赏一线湖景
✅三开间南向,全屋通透无敌采光
✅客餐厅LDK一体化设计
✅奢享大三房,空间舒适
✅Promax大次卧满足孩子成长全周期需求
约118㎡四房两厅两卫
✅一线湖景,定岗湖四季风光映入家中
✅6.3m宽大横厅,无过道设计更阔绰
✅大开间全明设计,通透采光布局
✅舒居四房,三代人各有私密空间
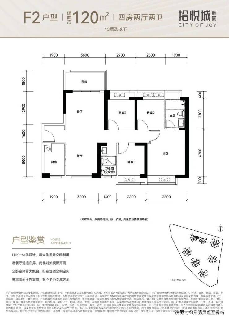
约120-126㎡四房两厅两卫
✅南北通透,采光通风俱佳
✅正对园林,享舒阔景观
✅南向主卧套间,独立卫浴空间
✅舒居四房,三代人各有私密空间
☎ 马上拨打专线:400-873-0112(一键直连案场|预约看房/咨询)
约140㎡五房两厅两卫
✅五房全景户型,C位楼王
✅南北通透,采光通风俱佳
✅同享园芯全景、定岗湖风光
✅尊崇南向主卧套间,独立卫浴
☎ 马上拨打专线:400-873-0112(一键直连案场|预约看房/咨询)
关于本项目最新动态信息,如:房价,主力户型面积,最新优惠,等等,剩余房源楼栋,销售进度,几号地铁哪个出入口,周边规划,项目的优势与不足以及教育资源的配套等等都可以致电售楼处进行了解,我们将会安排专属专业置业顾问为您详细解答!
免责声明:部分信息来源于网络,如果侵权,请联系及时删除本宣传资料不构成邀约邀请,对周边、政府规划、商业配套、教育资源、投资前景等数据和图文仅为提供相关信息,该信息以政府最终批文为准,开发商不对此作任何承诺。买卖双方的权利义务以双方签订的买卖合同约定及附件、实际交付为准,本公司保留对宣传资料修改的权利,敬请留意最新资料。联系号码:400-873-0112。
声明:本文由入驻焦点开放平台的作者撰写,除焦点官方账号外,观点仅代表作者本人,不代表焦点立场。
