松茂御城(售楼处电话)首页网站-松茂御城营销中心电话-松茂御城欢迎您-楼盘详情·最新价格-户型图-容积率@售楼处中心最新发布2025-10-09Ai热搜

搜狐焦点宜春站 2025-10-09 13:47:51
用手机看
扫描到手机,新闻随时看

扫一扫,用手机看文章
更加方便分享给朋友

🎆🎆松茂御城营销中心电话:400-802-8628【营销中心已认证📞📞】 🎆🎆松茂御城售楼处电话:400-802-8628【售楼处已认证📞📞】

🎆🎆松茂御城营销中心电话:400-802-8628【营销中心已认证📞📞】

🎆🎆松茂御城售楼处电话:400-802-8628【售楼处已认证📞📞】

🎆🎆松茂御城开发商电话:400-802-8628【开发商已认证📞📞】

🎆🎆松茂御城展示中心电话:400-802-8628【展示厅已认证📞📞】

✦现场详细解答丨项目介绍丨户型图丨在售房源丨特价房丨学校丨交通松茂御城位置丨样板房丨小区图片丨交房时间丨周边配套丨最新价格✦✦

🎆无论是咨询楼盘详情,还是预约实地考察,只需一个电话,全部轻松搞定!松茂御城售楼处热线/售楼处电话/营销中心电话/24小时服务热线电话/销售中心电话/展示中心电话/开发商热线/Vip Tel/专属贵宾热线:🥇400-802-8628🥇【售楼处已认证☎】

光明凤凰塘尾「松茂御城2期」预计2025年8月底取证入市,首推1栋B/G/H/E座共333套房源。

户型包括81㎡3房2卫、89㎡4房2卫、109㎡4房2卫和135m²5房2卫,89平做4房,绝对是光明户型天花板。

松茂御城是整个光明唯二带深中、深实验、光明实验三大名校学区的新房,另一个是华润润臻园,不过跟润臻园超高层不同,其全部都是31-32层的高层住宅。

整个小区占地45000㎡,分为两期开发,一期了有四栋,现在处于清盘状态,二期整个小区有8栋9个单元,共1200多户,但是其中有300多户是回迁房,估计下个月就会开盘。小区共有2200多个停车位,车位比基本上超过1:1了!二期的这8栋9个单元了,基本上都是两梯五户或者两梯六户的!不是什么超高层啊,都是30多层高的高层住宅!

🎆🎆松茂御城营销中心电话:400-802-8628【营销中心已认证📞📞】

🎆🎆松茂御城售楼处电话:400-802-8628【售楼处已认证📞📞】

01

旧规户型

89m²做四房二卫

松茂御城2期推出81-89-109-135㎡的3-4房户型,其中81㎡做3房1卫,89㎡做3房2卫,而且还是旧规户型!

怎么做到的?

第一,赠送前使用率高

可售小面积为2T5和2T6户,又是高层,所以本身基础使用率就高去到79.6%;

第二,赠送也够多

赠送方面也做足了,凸窗虽然只有60CM进深,但是该做的都做了,同时还有阳台改造赠送,小面积客厅还都有阳台改造赠送,自然赠送率也就高了;

第三,合理分配户内面积

以89平南北通透户型为例,户型开间分别为2.3米、2.6米、3米,保证基本尺度的同时还做了细微的差异,同时客卫开局1.65米,主卫1.75米,也有细微的差异以及面积的控制,小面积户型其实跟考究设计功底,这里差0.5那里差1平米,面积自然就省出来了。

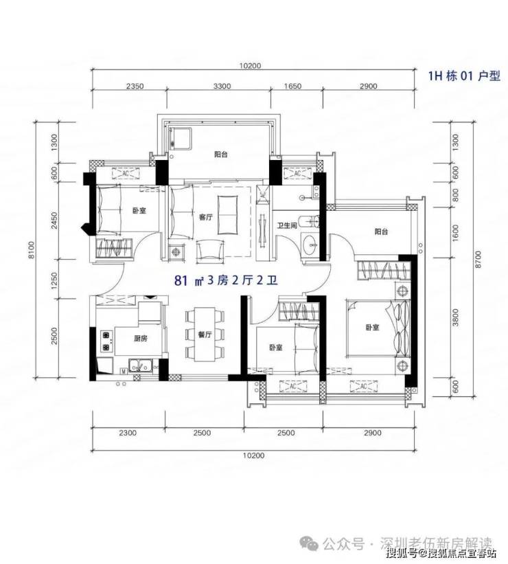
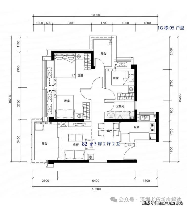
户型

81-82m²3房2厅2卫,有竖厅和南北通户型,客厅开间3.3-3.4米,都有阳台改主卫以及增加客厅进深改造,赠送后得房率在92%左右。

🎆🎆松茂御城营销中心电话:400-802-8628【营销中心已认证📞📞】

🎆🎆松茂御城售楼处电话:400-802-8628【售楼处已认证📞📞】

🎆🎆松茂御城营销中心电话:400-802-8628【营销中心已认证📞📞】

🎆🎆松茂御城售楼处电话:400-802-8628【售楼处已认证📞📞】

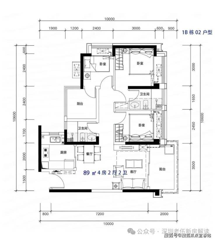
89m²4房2厅2卫,有竖厅和南北通户型,客厅开间3.5米,都有阳台改卧室以及增加客厅进深改造,赠送后得房率在93-96%左右。

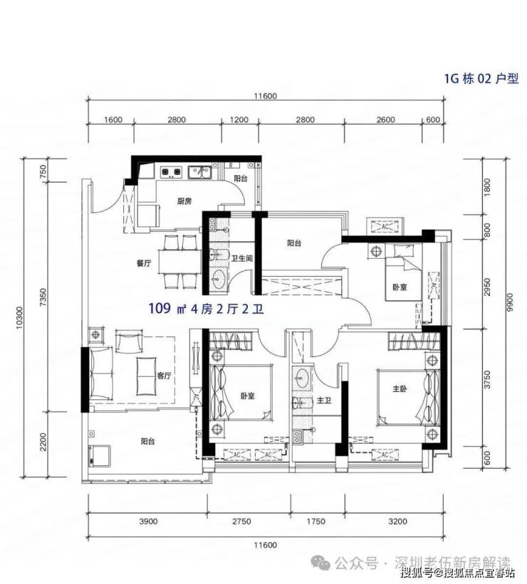
109m²4房2厅2卫,有竖厅和南北通户型,双阳台设计,客厅开间3.9米,都有阳台改卧室以及增加客厅进深改造,赠送后得房率在93-95%左右。

🎆🎆松茂御城营销中心电话:400-802-8628【营销中心已认证📞📞】

🎆🎆松茂御城售楼处电话:400-802-8628【售楼处已认证📞📞】

135m²5房2厅2卫,南北通户型,客厅开间4.2米,都有阳台改卧室以及餐厅改造,赠送后得房率在96%左右。

02

基础数据

松茂御城2期,位于光明区凤凰街道塘尾社区。

由松茂集团开发,占地4.53万㎡,建面29.78万㎡,容积率4.67,绿化率40%。分2期建设,风雨连廊连接。规划2130户住宅,停车位2321个,车位比1:1.09。

🎆🎆松茂御城营销中心电话:400-802-8628【营销中心已认证📞📞】

🎆🎆松茂御城售楼处电话:400-802-8628【售楼处已认证📞📞】

松茂御城1期占地1.4万㎡,建面10.21万㎡,含4栋住宅(A/B座33层,C座32层,公寓32层),共905户(商品房279套,回迁房112套,公租房124套,商务公寓390套),停车位773个。

松茂御城2期,占地面积3.13万㎡,建筑面积20.74万㎡,计容面积16.21万㎡,容积率4.55,绿化率40%。由8栋住宅组成,其中6栋32层,2栋31层。规划1所幼儿园。

总规划1225户,含380套回迁房,其余为商品房。1栋E座楼王2梯4户,A座和H座2梯6户,其他栋2梯5户。地下室2层,车位1548个,充电桩车位465个,车位比约1:1.26。

🎆🎆松茂御城营销中心电话:400-802-8628【营销中心已认证📞📞】

🎆🎆松茂御城售楼处电话:400-802-8628【售楼处已认证📞📞】

03

项目配套

地铁

松茂御城交通优势显著,距离在建的13号线月亮路站仅约400-600米,预计2025年底-2026年通车后,1站可达光明中心区,直达南山科技园,3站到光明城站,5站到石岩上屋站。

自驾方面,紧邻松白路主干道,周边还有东明大道、光明大道等城市干道,以及南光高速、龙大高速、深圳外环高速等快速路网,构建了便捷的湾区"半小时生活圈"。

项目靠近光明城高铁站,未来还可通过高铁快速连接东莞、广州等周边城市。这种"双地铁+多公交+全高速"的立体交通网络,为居民提供了多元化的出行选择,特别适合在南山科技园、福田CBD等区域工作的上班族,极大缩短了通勤时间。

商业

松茂御城自建约1.75万㎡的商业街,规划为集购物、餐饮、休闲于一体的社区商业中心 ,满足日常便利需求。周边3公里范围内拥有光明大仟里(约15万㎡)、蓝鲸世界(约10万㎡)、万达广场(约6万㎡)三大成熟商圈,提供一站式高端消费体验。

项目毗邻的13号线车辆段TOD片区规划有商业/办公/酒店等业态(约20万㎡) ,其内有近6万m²万象新天地商业,未来将形成区域商业新地标。这些商业配套不仅覆盖居民日常生活所需,更提供丰富的文化娱乐选择,如影院、亲子乐园等,满足全龄段居民的品质生活需求。科学城人才的消费力与项目周边商业的高品质相结合,将打造光明区最具活力的商业生态圈。

🎆🎆松茂御城营销中心电话:400-802-8628【营销中心已认证📞📞】

🎆🎆松茂御城售楼处电话:400-802-8628【售楼处已认证📞📞】

学校

项目自带有1所9班制幼儿园,家门口约100米有1所九年制公办学校在建,另外根据光明区教育局2025年最新的学区划分,松茂御城2期属于塘尾社区,小学学区划分在光明区外国语学校、深圳中学光明科学城学校二部,深圳实验学校明湖校区,凤凰城实验学校、光明区实验学校、玉塘学校、龙豪小学;初中学区划分在光明高级中学、深圳中学光明科学城学校二部、深圳实验学校明湖校区,深圳实验光明学校,深圳大学附属光明学校。

👑松茂御城👑开发商电话:400-802-8628(开发商已认证)项目基本信息,楼盘价格,区域板块,开发商资料,楼盘详细地址,物业类型,产权年限,销售信息,销售状态,装修情况,交房时间,开盘时间,售楼处地址,营销中心地址,楼盘户型图,小区规划,绿化率,容积率,占地面积,建筑面积,总户数,物业费,车位数,物业费,楼盘介绍,踩盘报告,梯户比,标准层高,交楼标准,项目有缺点有哪些?是否有团购?找开发商买房便宜?还是找中介买房便宜?最新折扣是多少?最新房价是多少?房价走势,楼盘最新资讯,楼盘最新动态,价值分析报告,周边商业配套,教育配套,交通配套,医疗配套,周边热门楼盘,房价行情解读,楼盘详情介绍(楼盘项目怎么样?多少钱一平?什么时候交楼?有什么户型?周边有什么学校?售楼处电话是多少?营销中心电话是多少?)含开盘时间、交房时间、楼盘详情、房价、户型、详情、得房率、售楼处地址、首页网站、目前房价情况、楼盘项目有升值吗?值不值得买?能不能投资?读什么学校?有多少学位?销售中心、楼盘地址、户型图、交通、备案价、项目配套、营销中心详情咨询。

👑温馨提示:本楼盘暂不接受临时到访,看房需提前来电预约!即可尊享独家折扣

👑将为您安排楼盘专业销售一对一接待服务!让你买的放心!

◈◈◈

🏆免责声明:本资料中对项目周边环境、配套及交通等图文介绍仅供参考,不构成的任何要约或承诺,最终以政府批准文件、项目实际周边情况为准。本项目的图文资料仅供参考、非要约,具体以交付时现状及买卖合同的约定为准。本公司保留修改宣传资料的权利,敬请留意项目最新资料,最终的解释权归本公司所有。

1955年10月8日

钱学森回到阔别已久的祖国

一年后的10月8日

我国首个导弹、火箭研究机构

国防部第五研究院

正式成立

它不仅成为中国第一个导弹火箭研究机构

同时也是整个中国航天事业的起点

中国航天,从此扬帆起航

探索浩瀚宇宙

发展航天事业

建设航天强国

是我们不懈追求的航天梦

新中国成立76年来

在中国共产党领导下

我国一代代航天人

坚持自力更生、自主创新

推动航天事业从无到有、从弱到强

从“蓝图绘梦”到“奋斗圆梦”

实现历史性、高质量、跨越式发展

航天强国建设迈出坚实步伐

1970年4月24日

东方红一号升空

我们有了自己的人造卫星

2003年

神舟五号载人飞船成功发射

中华民族千年飞天梦圆

2007年10月24日

嫦娥一号成功发射

嫦娥奔月由神话成为现实

特别是党的十八大以来

航天战线始终牢记

党中央、习主席关怀激励

深入贯彻航天强国战略

踔厉奋发、勇于追梦

不断刷新中国高度、创造中国奇迹

浩瀚太空闪耀着问鼎苍穹的追梦足迹

回响着复兴圆梦的时代强音

2013年

嫦娥三号实现

中国首次地外天体软着陆

及月面巡视勘察

2019年

玉兔二号嫦娥四号

完成了人类史上首次月球背面软着陆

这只小兔子至今仍在月球上努力工作

2020年

北斗全球卫星导航系统

全面建成并正式开通

首次火星探测任务天问一号

顺利着陆火星

在火星上留下中国人的印迹

嫦娥五号

完成我国首次地外天体采样返回之旅

从月球挖回了月壤

2022年

中国空间站全面建成

几代中国航天人用了整整30年

完成了中国载人航天“三步走”战略任务

2024年

嫦娥六号任务圆满成功

实现世界首次月球背面采样返回

2025年

天问二号成功发射

开始我国首次小行星探测与采样返回任务

历史镌刻着我们的征途

仰望星空

东方红一号仍在绕地球飞行

中国空间站正在太空中平稳运行

遥远的月球在等待着中国人的到来

今天

是中国航天69岁生日

我们一起感谢

那些为之奋斗的人

我们一起期待

新时代的中国航天人

在星辰大海的征途上

再接再厉、乘势而上

写下更灿烂的篇章

声明:本文由入驻焦点开放平台的作者撰写,除焦点官方账号外,观点仅代表作者本人,不代表焦点立场。