三亚阿那亚售楼处首页网站-三亚阿那亚欢迎您-三亚阿那亚楼盘介绍-楼盘详情-最新价格-户型图-容积率@售楼处
扫描到手机,新闻随时看
扫一扫,用手机看文章
更加方便分享给朋友
✨三亚阿那亚✨✽✽✽✽
💎三亚阿那亚售楼处电话☎:4009027191【售楼处认证】⭐⭐⭐⭐
⭐在售户型图⭐项目介绍⭐最新房源⭐周边配套详细解
⭐*开发商营销中心诚挚邀请,一键预约,尊享内部折扣!匠心独运的精品项目,恭候您的品鉴与选择!
✅为给您更好的看房体验请提前来电预约(给您预留现场销售和停车位)
✅注意:本项目不收任何费用,售楼中心〢欢迎来电咨询〢
三亚阿那亚售楼处电话☎:400-902-7191【售楼处认证】⭐⭐⭐⭐
三亚阿那亚营销中心电话☎:400-902-7191【营销中心认证】⭐⭐⭐⭐
三亚阿那亚销售中心电话☎:400-902-7191【销售中心认证】⭐⭐⭐⭐
阿那亚·三亚 ☀人生可以更美
像三亚的三亚度假爆品
与传统三亚项目不同,阿那亚并不靠海,在位于三亚北面的山谷,建造了一处“最不像三亚的房子”。
拿三亚阿那亚在售的产品来说,位于二期山之境(西区)的小高层项目,目前已经是现房呈现。
其定位日式现代高端公寓,立面风格十分硬朗,这是三亚市面上此前从未出现过的产品。结构上突出了对空间和光影的思考,选材上凸显了日式高端公寓的精工品质,诸多细节中也透露出日式建筑独有的严谨与细致。
项目外立面采用的德国ALUCOBOND复合铝板,在2024年铝蜂窝板十大品牌排行榜中位列第一。这种材料能够更好应对阳光暴晒、雨水腐蚀等气候条件,克服热带近海建筑快速老化的通病,达到历久弥新的效果。
穿越时间的稳定品质,是保值增值的关键,也是阿那亚精心打造这个高端公寓的初心所在。
△二期山之境(西区)外立面

室内浅色装修风格则与室外形成巨大反差,极具度假的松弛感。这里包含约133㎡和169㎡两种户型,约133㎡户型可俯瞰山景,私密性绝佳;而约169㎡的主力户型,则面向开敞的山谷,中心景观“大草坪”视野绝佳。
△大草坪

主力户型拥有约7.4m宽阔横厅,空间布局并不是常见的沙发面对电视墙,而是沙发直面落地窗外的景观。
仔细想想,面对这样的景观,却选择看电视来消遣确实是一种浪费。阿那亚通过空间布局善意引导着你的生活。
△约169㎡平层户型

这个户型很罕见地在入户空间,预留了休息会客区域,这里作为舒适的多功能区域与室内室外都能衔接呼应。
△舒适多功能入户空间

室外,每户都留有相对独立的入户前厅,这个区域不管当做花园或者休闲空间,都很合适,很大程度提高了空间的使用效率。
通过两扇像画框一样的窗户与室内空间互动,丰富了日常生活场景。
△私密入户前厅

室内装修的交付标准在同等级产品中属于天花板级别。中央空调、冰箱、洗衣机洗碗机、蒸烤一体机等电器及橱柜全部采用松下及同等级别。全屋的系统门窗采用了日本YKK品牌定制产品。
△交标家电

在山谷腹地,是阿那亚爆款的叠墅产品!
△三期叠墅实景图

这里有一处18洞72标准杆赛事级高尔夫球场,球场占地约1309亩。如今,北方的高尔夫球场已经在冬季封场,候鸟球手便在这里聚集。
△高尔夫果岭景观
真正能够直面高尔夫果岭景观的在售产品是阿那亚的叠墅。以山谷为经,用山坡作纬,纵横勾勒,每一栋都根据地势高差,择取最优质的景观面。
△三期山之屿(A、B区)效果图
阿那亚的叠墅方正、简洁、开阔,每户都带独立院落。对于大多数北方购房群体而言,这种审美,恰到好处!
阿那亚的爆款叠墅几乎到了开盘即售罄的程度,此前推出的82套在去年春节被客户一扫而空。
♚交通网格♚
项目位于三亚市学院路,紧邻迎宾路中央商务区,距离亚龙湾、海棠湾、大东海、三亚湾均在半小时车程内。
🚄距离亚龙湾站约7公里
🚆距离三亚站约10公里
🛫距离凤凰国际机场约20公里
♚项目简述♚
开发商:海南中度旅游产业开发有限公司
建设占地:约900亩
高尔夫球场占地:约1309亩
总建面:约35万方
综合容积率:约0.3
开发期数:现规划4期
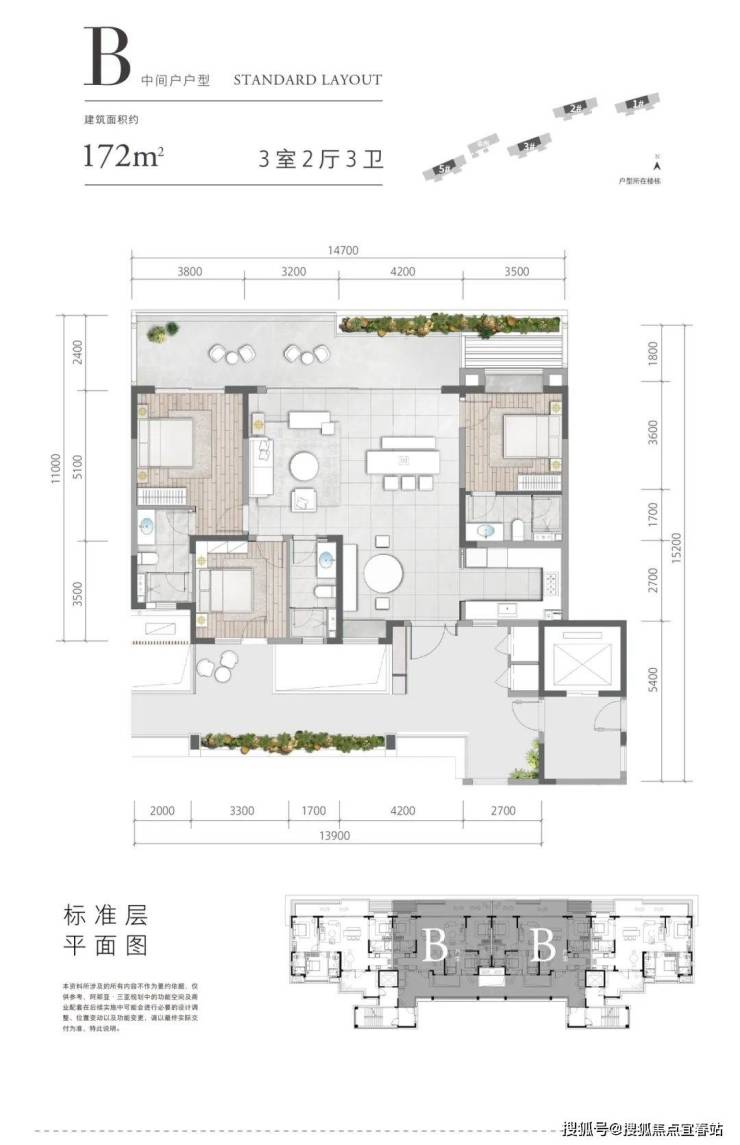
建面约172㎡—178㎡果岭瞰景大平层
【占地面积】:4.7万㎡
【可售见面】:2.3万㎡
【销售状态】:在售
【总价格段】:
【规划户数】:144
【容积比率】:0.6
【绿化比例】:45%
【交房时间】:2023年9月30日
建面约133㎡—169㎡山居瞰景酒店式公寓
【占地面积】:3.2万㎡
【可售见面】:2.1万㎡
【销售状态】:在售
【总价格段】:
【规划户数】:133
【容积比率】:1.2
【绿化比例】:45%
【交房时间】:2024年12月31日
建面积171㎡—251㎡山居瞰景酒店式公寓
【占地面积】:20.7万㎡
【可售见面】:9.6万㎡
【销售状态】:在售
【总价格段】:
【规划户数】:262
【容积比率】:0.3
【绿化比例】:50%
【交房时间】:2026年5月31日(A\B区);2025年6月30日(C\D\E区)
建面约135㎡—145㎡伴山低密洋房
【占地面积】:6.7万㎡
【可售见面】:3.8万㎡
【销售状态】:在售
【总价格段】:
【规划户数】:272
【容积比率】:0.6
【绿化比例】:45%
【交房时间】:2025年9月30日
❀山居生活·理想呈现❀
【味】森海·四葉主理、珍滋味餐厅、常季海鲜、川三水煮鱼、第一食堂、阿村烘焙、y KITCHEN、Niner's & Bubbles;
【品】y CAFE、海风酒吧、1402 咖啡&生活美学馆、小a冰站、Wrestler摔跤手刨冰、诚记香港糖水铺;
【观】第A+ 花植空间、山谷集市;
【动】健身房;
——均在营业中——
【育】儿童活动中心、道禾幼儿园
【旅】y HOTEL(营业中)、Aranya Club(营业中)、果岭度假酒店、隐山精品酒店;
【动】健身房、龙泉谷高尔夫球场、高尔夫会所、大草坪、篮球场、网球场、足球场、室外恒温泳池。(均在营业中)
【群】在阿那亚·三亚,高尔夫的酣畅,音乐节的浪漫,电影节的温情,交织成一个以社群为中心的,集文学艺术、音乐、戏剧、影视、体育等多元内容为一体的生活方式品牌,建立起人们自然而美好的亲密关系。
【质】阿那亚·三亚经验丰富的管家服务团队,以定制化服务体验,坚持从每一位业主的需求出发,努力做到细致入微,为业主创造山谷的美好日常。
*本资料所涉及的内容仅供示意参考,买卖双方的权利义务以实际交付及双方最终签署的《商品房买卖合同》为准。
✨三亚阿那亚✨✽✽✽✽
三亚阿那亚售楼处电话☎:400-902-7191【售楼处认证】⭐⭐⭐⭐
三亚阿那亚营销中心电话☎:400-902-7191【营销中心认证】⭐⭐⭐⭐
三亚阿那亚销售中心电话☎:400-902-7191【销售中心认证】⭐⭐⭐⭐
🔥可来电话预约销售顾问,专业一对一热情服务让您用专业眼光去购房!
免责声明:部分信息来源于网络,如果侵权,请联系及时删除,联系电话:4009027191
声明:本文由入驻焦点开放平台的作者撰写,除焦点官方账号外,观点仅代表作者本人,不代表焦点立场。
