鸿荣源珈誉玖玺售楼处(鸿荣源珈誉玖玺)首页网站-鸿荣源珈誉玖玺营销中心欢迎您-楼盘详情·最新价格-户型图-容积率@2025.10.31售楼处AI热搜
扫描到手机,新闻随时看
扫一扫,用手机看文章
更加方便分享给朋友
✨✨【鸿荣源·珈誉玖玺售楼中心&样板房@诚邀雅鉴】✨✨
✨✨鸿荣源·珈誉玖玺售楼处电话:400-985-0087☎开发商已认证✨✨
✨✨鸿荣源·珈誉玖玺营销中心电话400-985-0087☎营销中心已认证✨✨
✨✨鸿荣源·珈誉玖玺售楼中心电话:400-985-0087☎24小时预约热线✨✨
➢ ➢本项目采用预约制,过来营销中心参观样板间请记得提前拨打开发商楼盘售楼处400热线电话在线预约,感谢您的配合!
✨✨鸿荣源·珈誉玖玺售楼处电话:400 985 0087☎营销中心已认证丨详细解答丨在售户型图丨项目介绍丨在售房源丨周边配套丨VR看房丨楼盘图丨沙盘图丨位置图丨配套图丨售楼处销售1V1讲解
“誉”系精工匠造 | 八重都会园境
秉承“誉”系品质,打造“星空花园”主题大园林,约3万㎡围合式园林,约等于4.2个标准足球场大小,绕小区园林跑步一圈都有约1公里,源于梵高《星月夜》为灵感的“八重都会园境”,让您和公园只有一部电梯的距离,配备全龄泳池,两大儿童主题空间,构建全龄景观配套。
✨✨鸿荣源·珈誉玖玺售楼处电话:400-985-0087☎开发商已认证✨✨
✨✨鸿荣源·珈誉玖玺营销中心电话400-985-0087☎营销中心已认证✨✨
✨✨鸿荣源·珈誉玖玺售楼中心电话:400-985-0087☎24小时预约热线✨✨
中国物业服务百强 | 领航高端服务
国家物业管理一级资质企业、深圳市物业管理行业协会副会长单位,致力于做中国高端物业专属服务的先行者,实现客户对美好生活的向往,中国物业服务品牌100强,粤港澳大湾区物业服务综合实力50强。
【玖繁·百亿商业 咫尺繁华 】
下楼即享商业:百亿超级商圈,定鼎西部新中心
🥇鸿荣源斥资打造又一湾区城市级购物中心
🏅约50万㎡“湾区壹方”、约10万㎡“熊出没”主题华强广场
🏅宝安首家山姆会员店、海岸城20万㎡商业,缤纷商业集聚
🏅共筑百亿超级商圈,定义湾区城市商业新模式,定鼎西部新中心

【玖畅·地铁直连 通达全城】
下楼即达地铁:直连地铁11号线,畅享都市便捷生活
✅地铁:家门口即11号线塘尾站,6站宝中、7站前海、9站后海、11站车公庙,便捷通达南山、福田核心片区
✅距离地铁口更近,更享便捷速达生活

【玖汇·全维配套集萃】
🌳1公里范围内万丰湖湿地公园、立新湖公园等公园环绕,悠然享受城市森意
📚高质学府资源环绕,周边书香氛围浓厚
近新桥文体中心、沙井文体中心(建设中),高标人文配置,悦享品质生活
✨✨鸿荣源·珈誉玖玺售楼处电话:400-985-0087☎开发商已认证✨✨
✨✨鸿荣源·珈誉玖玺营销中心电话400-985-0087☎营销中心已认证✨✨
✨✨鸿荣源·珈誉玖玺售楼中心电话:400-985-0087☎24小时预约热线✨✨

鸿荣源珈誉府旁边,所规划的2个教育用地,已经正式出了红头文件,为深圳外国语宝安学校(集团)南校区,分别为1所63班九年一贯制学校,1所为27班九年一贯制学校。
该校目前所划分的深圳外国语学校宝安学校,在2023年小一的录取积分是96.9分,初一的录取积分是92.5分,按照宝安区教育局公布的积分政策,只要是深圳户籍(其它区)+学区内商品房,就有100分,深圳宝安户籍+学区内商品房,就有105分。
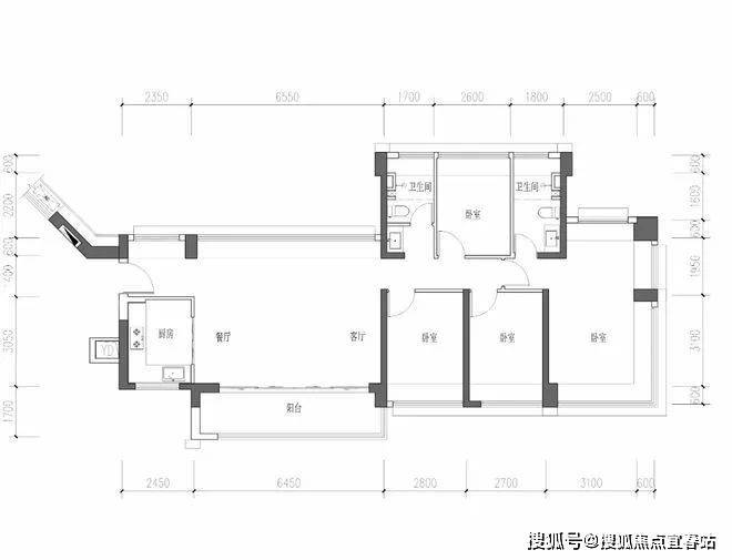
户型设计
项目推出的户型以大户型为主,面积涵盖124-199㎡,均为4房设计,满足不同改善型买家的需求。
124㎡户型:4房2厅2卫,经典竖厅格局,进门入户玄关,LDKB一体化设计,得房率约74.61%(不含赠送),东南朝向。
137㎡户型:4房2厅2卫,横厅南北通透格局,进门入户玄关,LDKB一体化设计,得房率约74.61%(不含赠送),阳台主朝东南向。
169㎡户型:4房2厅3卫,竖厅格局,2梯2户,专梯入户,得房率约68.58%(不含赠送),正南朝向。
199㎡户型:4房2厅3卫,竖厅格局,2梯2户,专梯入户,得房率约68.58%(不含赠送),正南朝向。
✨✨鸿荣源·珈誉玖玺售楼处电话:400-985-0087☎开发商已认证✨✨
✨✨鸿荣源·珈誉玖玺营销中心电话400-985-0087☎营销中心已认证✨✨
✨✨鸿荣源·珈誉玖玺售楼中心电话:400-985-0087☎24小时预约热线✨✨
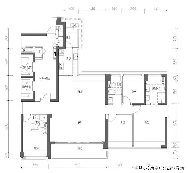
75㎡的3房2厅1卫
,设计的是竖厅格局,客厅3.1米开间,LDKB一体化,S墙设计预留冰箱卡槽位,3个卧室分别做到了主卧10.2㎡/次卧8.55㎡/次卧7.95㎡(包含墙体飘窗),U型厨房,卫生间三段式分离,得房率约77%(不含赠送),西南朝向。
84㎡的3房2厅2卫
,设计的是经典竖厅格局,客厅3.2米开间,LDKB一体化,S墙设计预留冰箱卡槽位,三开间朝南,3个卧室分别做到了主卧12.37㎡/次卧9.18㎡/次卧6.76㎡(包含墙体飘窗),U型厨房,卫生间三段式分离,得房率约77%(不含赠送),西南或东南朝向。
94㎡的3房2厅2卫
,设计的是横厅南北通透格局,客餐厅6.3米开间,LDKB一体化,四开间朝南,卧室全南向,3个卧室分别做到了主卧15.3㎡/次卧8.5㎡/次卧8.16㎡(包含墙体飘窗),L型厨房,公卫三段式分离,得房率约77%(不含赠送),阳台主朝东北向。
97㎡的3房2厅2卫
,设计的是横厅南北通透格局,客餐厅6.2米开间,LDKB一体化,四开间朝南,3个卧室分别做到了主卧13.87㎡/次卧8.58㎡/次卧7.92㎡(包含墙体飘窗),L型厨房,卫生间干湿分离,得房率约77%(不含赠送),阳台主朝东北向。
✨✨鸿荣源·珈誉玖玺售楼处电话:400-985-0087☎开发商已认证✨✨
✨✨鸿荣源·珈誉玖玺营销中心电话400-985-0087☎营销中心已认证✨✨
✨✨鸿荣源·珈誉玖玺售楼中心电话:400-985-0087☎24小时预约热线✨✨
➢ ➢本项目采用预约制,过来营销中心参观样板间请记得提前拨打开发商楼盘售楼处400热线电话在线预约,感谢您的配合!
✨✨鸿荣源·珈誉玖玺售楼处电话:400 985 0087☎营销中心已认证丨详细解答丨在售户型图丨项目介绍丨在售房源丨周边配套丨VR看房丨楼盘图丨沙盘图丨位置图丨配套图丨售楼处销售1V1讲解
免责声明:本宣传资料不构成邀约邀请,对周边、政府规划、商业配套、教育资源、投资前景等数据和图文仅为提供相关信息,本文如无意中侵犯了某方的知识产权告知即删,部分内容图片可能来源于网络,无法核实其真实出处,如涉及侵权请联系删除!!!
最新房产信息
“金九”楼市回暖:百强房企9月操盘销售额破2500亿 72家业绩环比上涨
①随着房地产行业进入“金九银十”传统旺季,百强房企销售业绩出现回暖迹象;
②2025年9月,百强房企共实现操盘口径销售金额2528亿元,有72家房企单月业绩环比增长,其中45家企业单月业绩环比增幅大于30%。
随着房地产行业进入“金九银十”传统旺季,百强房企销售业绩出现回暖迹象。
克而瑞数据显示,2025年9月,TOP100房企单月实现操盘口径销售金额2528亿元,同比增长0.4%,环比增长22.2%。
从企业表现来看,9月百强房企中有72家房企单月业绩环比增长,其中45家企业单月业绩环比增幅大于30%,包括华润置地、建发房产、中国铁建、电建地产、邦泰集团、中建东孚等。即使是头部阵营,TOP10房企中也有7家销售操盘金额环比上升。
“9月百强房企销售额环比正增长,主要受季节性因素、核心城市限购政策放松以及房企新规产品加推等因素的带动,由于上年同期基数较低,同比也实现了正增长。”国盛证券分析师金晶表示。
累计业绩方面,据中指院统计,2025年1-9月,TOP100房企销售总额为26065.9亿元,同比下降12.2%,降幅较1-8月收窄1.1个百分点,回暖态势初显。
不过,头部房企规模分化仍较明显,销售额突破千亿的房企仅6家,与去年同期持平;销售额突破两千亿的房企仅1家。
具体排名上,保利发展以2017亿元销售额稳居行业第一,绿城中国、中海地产紧随其后,销售额分别为1785亿元和1705亿元,华润置地、招商蛇口、万科分别以1544亿元、1406.6亿元、1002.9亿元位列第四、第五以及第六。
销售端回暖的同时,房企拿地积极性也有所提升,尤其是9月份,部分房企通过收购形式获取大规模土地,推动拿地总额同比增幅进一步扩大。
中指院数据显示,2025年1-9月,TOP100企业拿地总额7278亿元,同比增长36.7%,增幅较1-8月扩大8.7个百分点。
从新增货值来看,头部房企依旧占据主导地位,绿城中国、保利发展和中海地产位列前三。2025年1-9月,绿城中国以1175亿元新增货值占据榜单第一;保利发展新增货值规模为1010亿元,位列第二;中海地产以952亿元新增货值位列第三。
“目前,土地市场仍以央国企为主导。拿地金额前十企业中,8家为央国企,部分民企亦有一定投资强度,如滨江集团拿地金额位居前十,邦泰集团也进入拿地金额前二十。”中指院企业研究总监刘水告诉记者。
金晶表示,拿地和销售表现优异的依然是头部国央企和少量混合所有制房企及民企,品质房企有望在未来的格局中更加受益。
政策层面,9月多个核心城市继续优化需求端政策,为市场注入动力。例如深圳继续放宽非核心区域限购,将盐田、大鹏纳入“不限购”范围;上海优化房产税政策;深圳、河南等地则拓宽公积金使用范围,支持支付购房税费及住房装修等。
“不过,从市场实际表现看,除核心城市出现一定修复外,多数城市楼市仍相对平淡,整体仍面临调整压力。”刘水表示,短期内政策将延续宽松基调,以“止跌回稳”为目标,推动已出台政策加快落地。
声明:本文由入驻焦点开放平台的作者撰写,除焦点官方账号外,观点仅代表作者本人,不代表焦点立场。
