保利棠隐售楼处(海南保利棠隐)首页网站-保利棠隐营销中心欢迎您-楼盘详情-最新价格-户型图-容积率@售楼处
扫描到手机,新闻随时看
扫一扫,用手机看文章
更加方便分享给朋友
✨保利棠隐✨✽✽✽✽
💎保利棠隐售楼处电话☎:4009027191【售楼处认证】⭐⭐⭐⭐
⭐在售户型图⭐项目介绍⭐最新房源⭐周边配套详细解
⭐*开发商营销中心诚挚邀请,一键预约,尊享内部折扣!匠心独运的精品项目,恭候您的品鉴与选择!
✅为给您更好的看房体验请提前来电预约(给您预留现场销售和停车位)
✅注意:本项目不收任何费用,售楼中心〢欢迎来电咨询〢
保利棠隐售楼处电话☎:400-902-7191【售楼处认证】⭐⭐⭐⭐
保利棠隐营销中心电话☎:400-902-7191【营销中心认证】⭐⭐⭐⭐
保利棠隐销售中心电话☎:400-902-7191【销售中心认证】⭐⭐⭐⭐
保利棠隐——国家海岸上的渔樵耕读
国家海岸 传世藏品 隐奢之作
———— 项目信息 —————
【占地面积】4.34万m²
【计容面积】1.52万m²
【容 积 率】0.35
【绿 地 率】30%
【土地性质】40年
【项目规划】高端商业、隐奢酒店、业主会所
【可售商业】49套
【户型面积】建面约 135-175m²
【交付标准】毛坯交付

保利棠隐占地 4.34 万 m²,计容面积 1.52 万 m²,容积率低至 0.35,绿地率达 30%,土地性质为 40 年。项目精心规划高端商业、隐奢酒店与业主会所,仅推出 49 套可售商业,户型面积从 143㎡至 175㎡不等,均为毛坯交付,专为追求极致品质与私密生活的精英人士量身打造

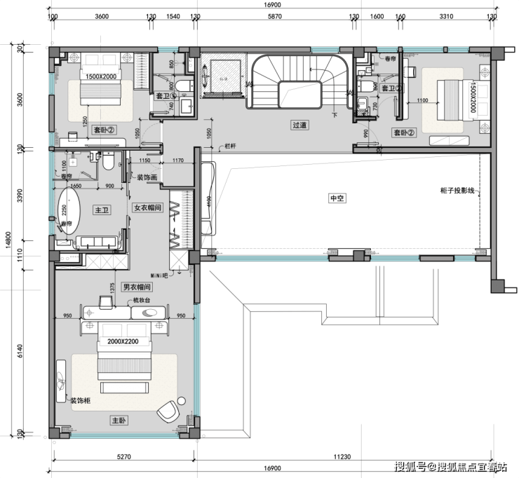
户型品鉴
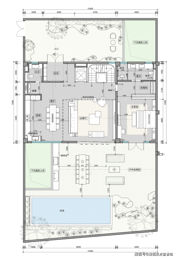
(一)A 户型(一字型)
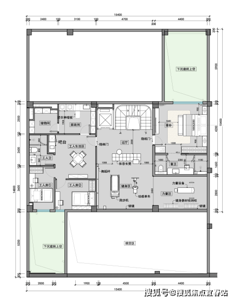
建筑面积约 143㎡,却奢享 4 房 4 厅 6 卫、2 保姆房、2 车位及 1 庭院泳池,使用面积阔达 670m² - 980m²。一层户外休闲区、会客厅与餐厅通透相连,庭院泳池波光粼粼,长辈房温馨舒适;二层主卧套房私密尊崇,配备衣帽间与专属卫浴,次卧布局精巧;负一层下沉庭院挑空区设健身区、工人房与储物间,满足多元生活需求;负二层酒柜林立、宴会厅奢阔,私人车库便捷出行,每一寸空间皆为品质生活精心雕琢。

(地上一层)

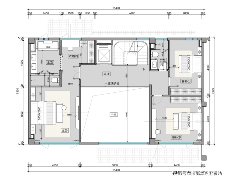
(地上二层)

(负一层)

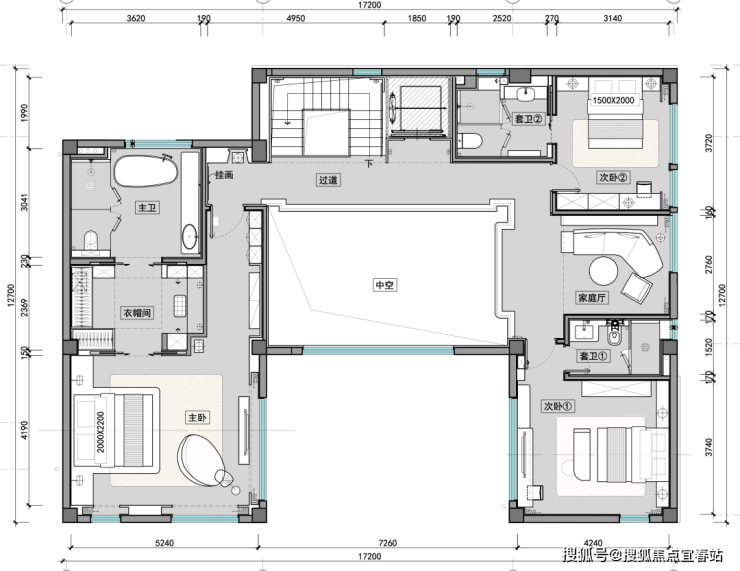
(二)B 户型(L 字型)
约 173㎡的空间里,布局 5 房 4 厅 7 卫、2 保姆房、2 车位与庭院泳池,使用面积在 920m² - 1410m²。一层客厅与餐厅畅连庭院,泳池景观尽收眼底,长辈房与客卫贴心设计;

二层主卧套房尽显奢华,书房静谧优雅,次卧温馨宜人;

负一层下沉庭院周边环绕健身区、工人生活区与丰富储物空间;

负二层酒窖、台球室、影音室一应俱全,为休闲时光增添无限精彩,为居者呈上全方位舒适体验。

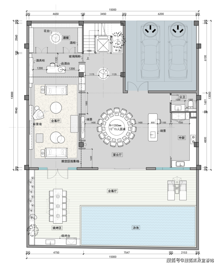
(三)C 户型(U 字型)
同样约 173㎡,规划 5 房 4 厅 7 卫、2 保姆房、2 车位及庭院泳池,使用面积 940m² - 1280m²。一层家庭厅与餐厅相连,庭院美景相伴,卧室分布合理,公卫便利;

二层卧室布局错落有致,挑空区丰富空间层次;

负一层下沉庭院周边设工人房、家政间,储物无忧;

负二层影音室、高尔夫球室、品酒雪茄区等专属空间,满足多元休闲娱乐追求,精筑格调生活范本。

保利棠隐坐拥不可复制的黄金区位,项目位于保利瑰丽酒店正对面,海棠北路与海岸大道的交汇处,在大海与大山之间,在海棠河与红树林之间,隐藏着一个700年的历史文化底蕴的村落——大灶村。大约在明朝中期,大灶村的居民就一直居住、生活、繁衍在此,发展至今已经有接近700年的历史沉淀。
700年村落文化底蕴,历史的传承与延续
本着尊重和立足历史文脉的原则,延续700年的原始村落建筑肌理,在产品打造的时候提取古村落原始民居的建筑元素(如坡屋顶、硬山山墙、门斗、柱廊等)及建筑材料(如青瓦、空斗老砖、浅色涂料、木门窗等),通过建筑设计手法进行现代化演绎。
项目配套——高奢度假酒店、私人会所
在700年古村落—大灶村,重拾渔樵耕读式理想生活,安放岁月悠然。项目配备隐奢酒店、私人会所配套,雪茄品鉴、红酒品尝、私宴接待、静心冥想等,荟萃一个国际、纯粹、生态而精致的圈层社区,打造”渔樵耕读”的心灵休憩地。
酒店大堂
酒店客房
私人会所
定制私宴
49席国岸商业藏品
一席村落式海岸资产,
保利棠隐,以不可再生文化资产,
✨保利棠隐✨✽✽✽✽
保利棠隐售楼处电话☎:400-902-7191【售楼处认证】⭐⭐⭐⭐
保利棠隐营销中心电话☎:400-902-7191【营销中心认证】⭐⭐⭐⭐
保利棠隐销售中心电话☎:400-902-7191【销售中心认证】⭐⭐⭐⭐
🔥可来电话预约销售顾问,专业一对一热情服务让您用专业眼光去购房!
免责声明:部分信息来源于网络,如果侵权,请联系及时删除,联系电话:4009027191
房产信息:
万科组织架构“扁平化”改革落地:缩层级、强管控
财联社9月17日讯(记者 王海春)万科组织架构调整,落地了。
9月17日,万科集团在官网上变更了组织架构。其最新组织架构,包括集团总部、地区公司和事业部。
细分来看,集团总部包括董事会办公室、投资发展中心、财务资金中心、审计监察中心等13个部门;地区公司包括北京、上海、深圳、浙江等16个地区公司;事业部涵盖办公、商业与酒店、物业、长租公寓、物流等8项业务。
亿翰智库分析师王玲指出,万科实施调整前,区域公司为组织架构中重要的组成部分,形成“总部—区域—城市”的三级管理链条;包括北京、华东、华中、南方、西南5大区域公司,总部直接管上海、广佛2家公司,以及东北、西北2个总公司,
克而瑞分析师介绍,万科本轮架构调整,包括调整区域公司,由总部直接管理城市公司,管控模式从3级转变为2.5级等。
“深铁对万科的支持力度不小,而万科自身也需要进行相应变革,以更好适应当前市场环境。”王玲表示。
据了解,按万科最新架构,集团总部定位为风险控制、战略运营及资产价值中枢,负责集团发展战略制定、日常经营管理和决策、各类风险管控等,重点增强业务管控能力。
事业部定位为集团经营服务业务的专业运营中枢,负责各类业务日常经营管理,输出专业轻资产运营能力。
地区公司定位为集团一线业务的协调执行中枢,负责集团开发业务,并统筹协调经营服务业务在属地的具体开展。根据业务体量、发展前景、货值情况等因素,将原区域公司、城市公司合并组成地区公司。
“此番调整的目标是,在强化组织管控与保持市场活力之间取得关键平衡,力争实现治理效能与业务发展双重提升。”万科方面称。
业内人士认为,在当前市场环境下,房企调整、取消区域公司,实施扁平化、短链条、强总部的优化路径,有助于企业在市场更好扎根、立足。
“万科减少管理层级、缩短决策链条,通过实现资源统一管理和集中调度来提升运营效率,可增强其对市场的敏感度和应对能力。”克而瑞分析师表示。
万科“瘦身”之际,其再次获得大股东借款支持。万科9月16日披露,公司第一大股东深铁集团向其提供不超过20.64亿元借款。
据万科公布的数据,深铁集团此前已累计向公司提供借款238.77亿元。加上本次借款,深铁集团已累计向万科提供借款约260亿元。
据东方证券分析师监测信息,除股东借款,今年上半年万科新增融资和再融资249亿元,境内利率为3.39%,综合资金成本继续下降。而在自身努力及外部支持下,万科上半年已完成164.9亿公开债偿付,2027年前无境外公开债到期。
业绩方面,今年上半年,万科实现营业收入1053.2亿元,归属于上市公司股东的净亏损119.5亿元,同比分别下降26.2%和21.3%。
声明:本文由入驻焦点开放平台的作者撰写,除焦点官方账号外,观点仅代表作者本人,不代表焦点立场。
