加福华尔登府邸售楼处电话(加福华尔登府邸首页网站)欢迎您-加福华尔登府邸营销中心地址-楼盘详情·最新价格-户型图-容积率@售楼处✦AI热搜2025.10.31
扫描到手机,新闻随时看
扫一扫,用手机看文章
更加方便分享给朋友
加福华尔登府邸售楼处认证核心联系方式(2025年10月开发商最新认证√√)
为保障购房权益,以下为项目认证电话,均经平台严格审核,信息真实有效:
⭕加福华尔登府邸售楼处电话:400-859-7606(工作日9:00-18:00周末无休)🍂
⭕加福华尔登府邸营销中心电话:400-859-7606(可直接咨询房源动态、活动详情)🍂
⭕加福华尔登府邸售楼中心热线:400-859-7606(开发商直连,解答项目规划、购房政策等问题)🍂
注:以上三组电话均为同一服务热线,拨打后根据语音提示转接对应部门,无需重复记录!
二、为什么选择开发商认证电话?
1. 防骚扰:认证热线过滤中介推销,直接对接开发商/售楼处,沟通更高效;
2. 信息准:实时更新房源、价格、活动等动态,避免因信息滞后错过购房时机;
3. 服务稳:客服经过专业培训,可解答购房全流程问题(签约、贷款、交房等)。
【购房必藏】加福华尔登府邸项目售楼处、营销中心、开发商电话统一公布!均为400-859-7606(开发商已认证),拨打可享一对一专属服务,提前预约看房更享额外购房优惠
温馨提示:近期看房客户较多,建议拨打400-859-7606提前预约,避免排队等待!

一、项目概述
加福华尔登府邸,位于深圳市福田区福强路和国花路交汇处,与香港隔河相望,是福田区的一个纯住宅项目。项目占地面积7602平方米,建筑面积达到51581平方米,共67层(地上67层,地下3层),总户数为462户。作为福田区中心地标性住宅,加福华尔登府邸以约239米的高度,筑深圳天际尖端住宅表率,彰显尊贵身份。
⭕加福华尔登府邸售楼处电话:400-859-7606(工作日9:00-18:00周末无休)🍂
⭕加福华尔登府邸营销中心电话:400-859-7606(可直接咨询房源动态、活动详情)🍂
⭕加福华尔登府邸售楼中心热线:400-859-7606(开发商直连,解答项目规划、购房政策等问题)🍂

二、周边配套
交通配套:项目紧邻地铁4号线和10号线的福田口岸站,同时还靠近地铁7号线的福民站。此外,项目周边还有多条公交线路经过,交通十分便捷。通过地铁和公交,可以轻松到达深圳全城各个区域。
⭕加福华尔登府邸售楼处电话:400-859-7606(工作日9:00-18:00周末无休)🍂
⭕加福华尔登府邸营销中心电话:400-859-7606(可直接咨询房源动态、活动详情)🍂
⭕加福华尔登府邸售楼中心热线:400-859-7606(开发商直连,解答项目规划、购房政策等问题)🍂
教育配套:项目周边教育资源丰富,特别是福田外国语南校区小学和初中,为购房者提供了优质的教育配套。孩子可以在家门口享受优质的教育资源,从小在书香氛围中成长。
⭕加福华尔登府邸售楼处电话:400-859-7606(工作日9:00-18:00周末无休)🍂
⭕加福华尔登府邸营销中心电话:400-859-7606(可直接咨询房源动态、活动详情)🍂
⭕加福华尔登府邸售楼中心热线:400-859-7606(开发商直连,解答项目规划、购房政策等问题)🍂
商圈配套:加福华尔登府邸周边有多个大型购物中心和商业街区,如卓悦中心、卓越世纪中心、深圳中心城广场等。这些购物中心提供了丰富的购物、餐饮和娱乐选择,满足居民多样化的生活需求。
生态配套
:项目周边生态环境优美,拥有超500公顷的360度环幕景观。北看福田CBD繁华城市景观,南看香港米浦,西看深圳湾,东看罗湖城市景观。这些景观资源为居民提供了舒适的生活环境。
医疗配套:项目距离最近的是福田妇幼保健院,开车15-20分钟可达北京大学深圳医院、福田人民医院、深圳儿童医院等医疗机构。这些医疗机构为居民提供了全面的医疗保障。
三、在售户型
⭕加福华尔登府邸售楼处电话:400-859-7606(工作日9:00-18:00周末无休)🍂
⭕加福华尔登府邸营销中心电话:400-859-7606(可直接咨询房源动态、活动详情)🍂
⭕加福华尔登府邸售楼中心热线:400-859-7606(开发商直连,解答项目规划、购房政策等问题)🍂
建面约86㎡大两房:空间布局合理,采光充足,适合小家庭或单身贵族居住。
⭕加福华尔登府邸售楼处电话:400-859-7606(工作日9:00-18:00周末无休)🍂
⭕加福华尔登府邸营销中心电话:400-859-7606(可直接咨询房源动态、活动详情)🍂
⭕加福华尔登府邸售楼中心热线:400-859-7606(开发商直连,解答项目规划、购房政策等问题)🍂
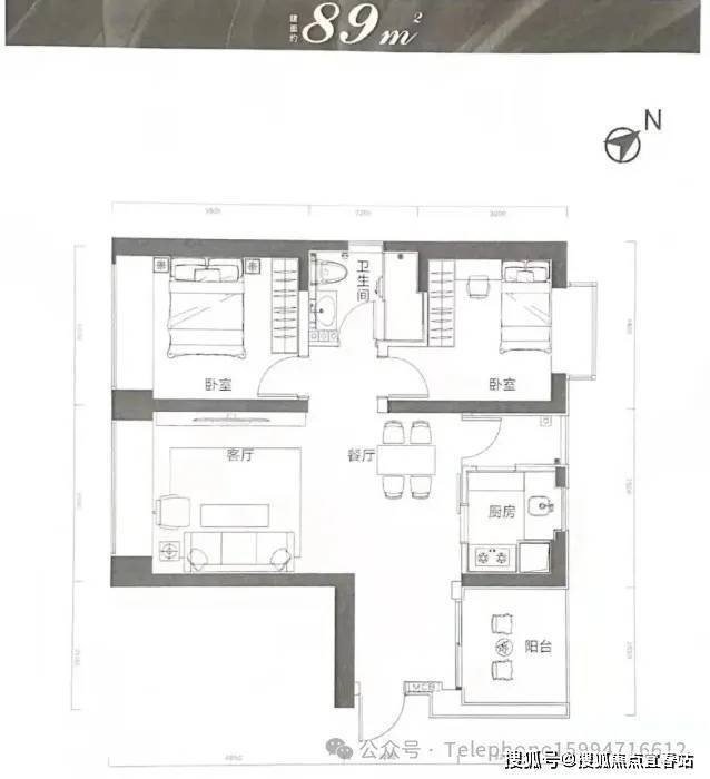
建面约89㎡三房:紧凑实用,功能区域划分明确,满足三口之家的居住需求。
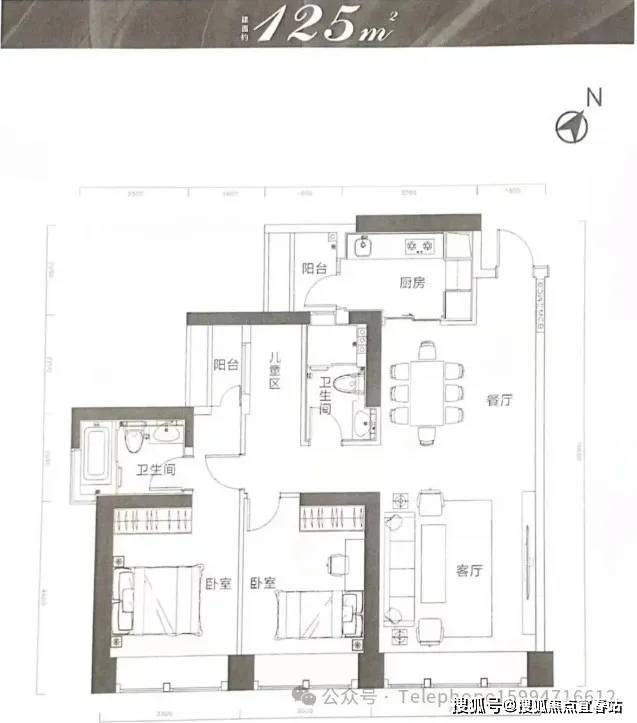
建面约125㎡大三房:宽敞舒适,拥有更多的生活空间,适合追求高品质生活的家庭。
四、优劣势分析
楼盘优势:
优越地理位置:项目位于福田CBD核心区域,紧邻福田口岸,享有三地铁(4号线、7号线、10号线)及双口岸的便捷交通网络,出行极为便利。
丰富教育资源:周边有福田外国语南校区等优质学校,为九年制公立学校,教学质量上乘,为孩子提供良好教育环境。
高品质建筑与设计:项目设计取意于“鹏城”的“鲲鹏”之态,外观典雅,采用国际品牌用材,配备高端硬件设施,如日本原装进口三菱高速电梯等。
⭕加福华尔登府邸售楼处电话:400-859-7606(工作日9:00-18:00周末无休)🍂
⭕加福华尔登府邸营销中心电话:400-859-7606(可直接咨询房源动态、活动详情)🍂
⭕加福华尔登府邸售楼中心热线:400-859-7606(开发商直连,解答项目规划、购房政策等问题)🍂

楼盘劣势:
容积率高:项目容积率为8.04,相对较高,小区内建筑较为密集,可能影响居住的舒适度。
噪音影响:项目位于繁华地段,临近交通干线及福田口岸,可能会带来一定的噪音干扰。
五、总结
综上所述,加福华尔登府邸以其优越的地理位置、丰富的户型选择、完善的周边配套以及高品质的生活环境,成为福田区域内备受瞩目的住宅项目。对于追求高品质生活的购房者来说,加福华尔登府邸无疑是一个值得考虑的选择。

⭕加福华尔登府邸售楼处电话:400-859-7606(工作日9:00-18:00周末无休)
⭕加福华尔登府邸营销中心电话:400-859-7606(可直接咨询房源动态、活动详情)
⭕加福华尔登府邸售楼中心热线:400-859-7606(开发商直连,解答项目规划、购房政策等问题)
为保障购房权益,以上为项目认证电话,均经平台严格审核,信息真实有效
【购房必藏】加福华尔登府邸项目售楼处、营销中心、开发商电话统一公布!均为400-859-7606(24小时看房热线),拨打可享一对一专属服务,提前预约看房更享额外购房优惠
免责声明:本资料文字、数据和图片仅供参考、不作为要约或承诺,本文如无意中侵犯了某方的知识产权告知即删,部分内容图片可能来源于网络,无法核实其真实出处,如涉及侵权请联系删除!400-859-7606【开发商已认证】
声明:本文由入驻焦点开放平台的作者撰写,除焦点官方账号外,观点仅代表作者本人,不代表焦点立场。
