合景香樾四季(售楼处)首页网站-合景香樾四季营销中心-合景香樾四季欢迎您-楼盘详情-最新价格-户型图-容积率@售楼处
扫描到手机,新闻随时看
扫一扫,用手机看文章
更加方便分享给朋友
✨✨合景香樾四季售楼处电话:400 861 9050【售楼处电话已认证】✨✨
✨✨合景香樾四季营销中心电话:4008619050【营销中心电话已认证】✨✨
✨✨合景香樾四季开发商电话:400 861 9050【开发商电话已认证】✨✨
合景香樾四季售楼处电话:400-861-9050
广州(合景香樾四季)合景香樾四季售楼处电话:4008619050,合景香樾四季营销中心_tel:4008619050,合景香樾四季开发商售楼部热线4008619050(售楼处已认证电话)。提前预约看房尊享额外优惠!
花都新中轴CBD板块·2.2低密秀全系学府
项目特色:品牌地产
物业类型:普通住宅
入住时间:2023年8月8#交房
物业公司:广州市宁骏物业管理有限公司
物 业 费 :2.8元/m²/月
装修状况:带装修
产权年限:花园洋房:70年
开盘时间:2021年8月27日推出3# 开盘通知
售楼地址:广州市花都区秀全中学旁
项目位置:秀全中学旁

开发商:广州市天惠房地产开发有限公司
建筑类型:高层 塔楼
建筑面积:139386.39平方米
占地面积:87844平方米
车位信息:共1478个停车位
总户数:1242户
当期户数:1242户
容积率:2.2
绿化率:35%
合景保利·香樾四季花园是由合景泰富集团与保利置业两大开发商联手打造的豪宅产品;
项目占地87844方,建面约139386.39方,由8栋高层洋房组成,总户数为1240户,共分5个地块开发,不同地块分区域布置不同业态产品,利于各个楼栋之间的通风及采光;
社区的容积率仅为2.2,为花都低密度小区;园林采用简约典雅的现代风格,以现代“岭南之景”为设计主题,融入日式自然景观手法,营造时尚摩登而又不失传统的园林打造理念,项目一共打造独特三园景观,分别是水园、山园、花木园,可以说是在中轴线上难得一见的高格调社区整体园林。
社区配备专属的秀全中学附属实验小学和省一级幼儿园(幼林培英幼儿园),秀全中学附属实验小学与秀全中学一脉相承,是区府倾斜支持和秀全品牌师资双重加持的重点小学,优质的启蒙教育与国际教育相接轨。
项目户型为75-—113平3-4房,推售的是8号楼,层高32层,2梯5户,面积段为87—96平,户型非常方正实用。在带装修方面,室内各项材料采用国内外一线品牌配备,给业主带来品质生活体验。

周边商业:融创茂,汇通广场、来又来商场、骏壹万邦商场
周边景观:洪秀全公园
周边公园:洪秀全公园
周边医院:广州花都时代妇产医院,广州市中西医结合医院
周边学校:秀全中学

一横两纵高速路网,两大城轨接驳紧邻花都交通命脉双向八车道花都大道,规划时速80km/h,可快速接入区府、老城区等;
距海布入口1km,经许广高速抵白云增槎,经三东大道东湖入口速达白云新城;
距穗莞深城轨天贵路站约3km,1站到广州北,2站到白云机场(可无缝接驳地铁三号线和九号线);距广清城轨乐同站2km








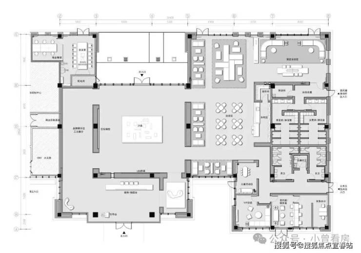
△前厅
德国工业设计师Dieter Rams曾说过,“设计越少,却更好”。前厅以简洁、纯粹为基调,吊灯和花艺的对角线摆放方式,打破硬装方正平直的构图,在规则的空间中寻求一些不一样的突破感。

△偏厅
花朵雕塑,将绽放的瞬间,用艺术笔法将其定格。花朵在它柔嫩的躯体之内,温柔、娇艳、嚣张......有着数种迷人的力量。
△水吧区
柜内陈列用阵列的摆放手法,通过视觉上的秩序感,使空间富有层次。洽谈桌上的青苔有蜻蜓轻轻停留,成为访客落座时的小惊喜,在人与人的交流中带去一丝春意。

△洽谈区
软装材料表现上以浅色系列家具基础为主,配以棉麻布艺、皮料及金属。浅白色为主的空间主基调上,搭配不同层次的咖色,在局部家私与饰品上注入生机盎然的绿色为整个空间带来春天的气息,营造出一个自然意境的空间氛围。
△洽谈区
午后的光线透过窗纱投入室内,使得光影、色调不断随着时间的变化而柔焦,并自然融入墙面实物装置画的质地之中,形成一幅层次感丰富的真实画面。

△深度洽谈区
深度洽谈区的功能是让人与人之间能够深入交流,弧形的半包围沙发形成一个半开放区域,加强谈话间的私密性,同时提供一个相对轻松的环境来洽谈,让交流的双方能畅所欲言。
△VIP室

△儿童活动区
儿童活动区打造了一个属于孩子的童梦,连接着孩子与孩子之间的互动,每一个孩子都有一个梦幻的幻想世界,在有限的空间中,让孩子们在此能自由发展想象力,体验美好,享受童真。
✅ 本项目暂不接受临时到访,过来参观样板房请记得提前来电预约!
✅ 为您安排楼盘现场销售全程接待并讲解,给您更贴心的看房体验!
如有问题欢迎来电咨询,来电即可享受买房优惠!400-861-9050
预约来电尊享购房优惠,可预约案场内部销售人员,专业一对一热情服务,让您用专业眼光去买房。
免责声明
1、文章图片来源于微信搜索或百度搜索引擎,我方非相关图片的原创作者,也不对相关图片及内容享有任何权利。
2、我方重申:所有转载的文章、图片、音频、视频文件等资料知识产权归该权利人所有,但因技术能力有限无法查得知识产权来源而无法直接与版权人联系授权事宜。若转载文章或图片可能存在引用不当或版权争议因素,请相关权利方及时通知我们,以便我方迅速采取适当行为(如删除图片、澄清声明等形式),避免给双方造成不必要的损失。
3、本宣传资料对项目周边幼儿园、学校等教育资源的介绍旨在提供相关信息,并不意味着我方对就学安排作出承诺。教育资源的名称、办学性质、办学规模、学位设置、开学(班)时间、招生条件、收费标准及招生区域存在调整的可能,应以政府教育主管部门及办学方颁布的政策规定为准。联系号码:4008366879
4、文章中文字和图片之间无必然联系,仅供读者参考。
5、本文所述内容和意见仅供参考,不构成市场交易依据和投资建议。
声明:本文由入驻焦点开放平台的作者撰写,除焦点官方账号外,观点仅代表作者本人,不代表焦点立场。
