盛荟城(售楼处)首页网站-盛荟城营销中心-盛荟城欢迎您-楼盘详情-最新价格-户型图-容积率@最新营销中心
扫描到手机,新闻随时看
扫一扫,用手机看文章
更加方便分享给朋友
🐲盛荟城售楼处电话:400-992-6631【售楼处电话已认证】🐲
深圳(盛荟城)盛荟城售楼处电话:400-992-6631,盛荟城营销中心_tel:400-992-6631,盛荟城开发商售楼部热线400-992-6631。提前预约看房尊享额外优惠!

——【盛荟城·创智产业大厦】
⚜1200-5000m新一代智慧厂房
⚜生产+办公+研发一体
⚜产城融合|为企业实现进阶
⚜全力提升企业货物运转效率
部3-5T货梯部客梯
个吊装口个卸货车位
🉑首付三成50年红本产权
【项目整体信息】
【开发商】盛荟集团
【项目地址】深圳市龙华区福龙路龙澜大道口
【占地面积】80394.6㎡
【建筑面积】约85万方
【容积率】7.7
【绿化率】35%
【业态组成】住宅、公寓、商业、办公、厂房、产业研发、学校、配套宿舍八大业态
🎉🎉🎉重磅来袭🎉🎉🎉
🇭🇰现楼|现楼|科研总部
✅✅特推5.4米极致空间
🧧一口价:1⃣3⃣5⃣0⃣0⃣元/㎡
‼‼楼层:3楼-6楼‼‼
🧧【盛荟城创智产业大厦】🧧
⚜高配比电梯|人货分流⚜
——【区域价值】
大湾区国际化创新型中轴新城
深圳“十四五”规划对龙华的定位为深圳中部综合服务中心、大湾区国际化创新型中轴新城,与南山/罗湖/福田中心并驾齐驱;
数字经济圈中央活力区
龙华12个产业区块串联成圈,连接成占地60平方公里,打造未来产值超万亿的数字经济圈
——【交通价值】
轨道交通:临近地铁25号线华富站(规划中)、地铁6号线羊台山东站(2KM),通达全市各个区域
城际交通:一个红绿灯直达龙大高速、沈海高速,30分钟畅行深莞惠
城市交通:深华快速路(建设中)、侨城东路北延线(建设中),20分钟直达南山福田CBD和其他核心区域
创智产业中心基础信息
【占地面积】11176.30㎡
【可售建筑面积】79540㎡
【产权年限】50年(22-72)
【套数】60套
【绿化覆盖率】30%
【停车位】358个
【建筑面积】约1212-4960㎡
【柱间距】9m X 9.6m、9m X 10m
【层数】20层
【层高】首层:6m;2-6层:5.4m;7-20层:4.5m
【荷载】首层:1.5T;2-3层:1T;4-12层:0.85T;13-20层:0.65T
【电梯】9台客梯,8台货梯,货梯:开门宽1.8m,长2.4m,荷载3T
【产品优势】
稀缺产品:可售型生产研发用房(M1),每户可独立分割,享有独立红本
高标品质:层高4.5-6米,承重0.65-1.5吨,柱距大于9米,实用率高
空间灵活:单套面积约1212.98—4960㎡,根据需求灵活配置资产
用途多样:可集研发、生产、中试、检测、展示、总部形象办公等功能于一体
工业上楼:3吨货梯+每户吊装窗口,专配卸货平台和吊装平台,工业设备可上楼
企业形象:玻璃幕墙外立面+高质感铝板,高颜值、高品质彰显企业高端形象
绿色生态:采用退台式绿化、屋顶花园等生态设计理念,打造绿色生态花园式研发生产用房
——【户型鉴赏】
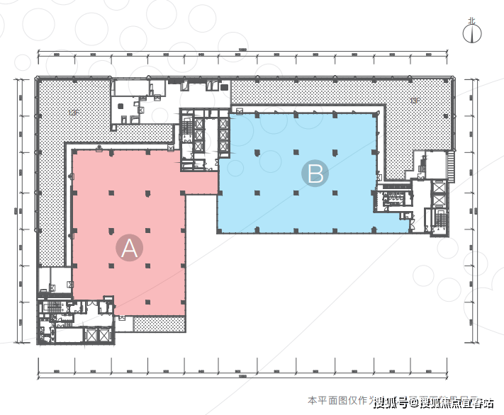
——【首层户型】

【建筑面积】:
A户型约2069.27㎡;B户型约2067.27㎡
【卸 货 区】:481.99㎡
【层 高】6m
【荷 载】:1.5T
【柱 距 网】:9m X 9.6m、9m X 10m
——【2-12层户型】

【建筑面积】
A户型约1215.43㎡;B户型约1310.25㎡
C户型约1221.53㎡;D户型约1212.98㎡
【层 高】:2-6层:5.4m;7-12层:4.5m
【荷 载】:2-3层:1T;4-12层:0.85T
【柱距网】:9m X 9.6m、9m X 10m
【货 梯】:8台;尺寸:开门宽1.8m,长2.4m,荷载3T
客梯:9台;荷载1.35T
——【13-19层户型】

【建筑面积】
A户型约1395.56㎡;B户型约1437.18㎡
【层 高】:13-19层:4.5m
【荷 载】:13-19层:0.65T
【柱距网】:9m X 9.6m、9m X 10m
【货 梯】:4台;尺寸:开门宽1.8m,长2.4m,荷载3T
客梯:6台;荷载1.35T
13层退台面积:约1793.52㎡
◆

✅ 本项目暂不接受临时到访,过来参观样板房请记得提前来电预约!
✅ 为您安排楼盘现场销售全程接待并讲解,给您更贴心的看房体验!
如有问题欢迎来电咨询,来电即可享受买房优惠!4009926631
声明:本文由入驻焦点开放平台的作者撰写,除焦点官方账号外,观点仅代表作者本人,不代表焦点立场。
