首页热搜:太子湾云滨大厦售楼处电话→太子湾云滨大厦Ai热搜24小时电话→2025最新房价→楼盘百科详情→售楼处更新发布@售楼处中心2025-7-29
扫描到手机,新闻随时看
扫一扫,用手机看文章
更加方便分享给朋友

招商太子湾是由招商蛇口打造的170万㎡大型综合体,由太子湾邮轮母港领衔,打造华南最大、深圳唯一的邮轮母港成为前海蛇口自贸区未来的核心载体之一,项目以22万吨级邮轮为依托,同时涵盖商业、办公、商务公寓、住宅、酒店、文化艺术、仓库、国际学校、国际医院、公交枢纽等多元业态。
【基础信息】
建筑面积:约14673.9㎡
业态:商务办公
套数:52套
使用率:约66%
总层数:15层
在售楼层:7、8层
总高度:约62.95m
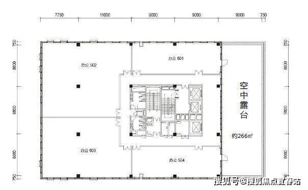
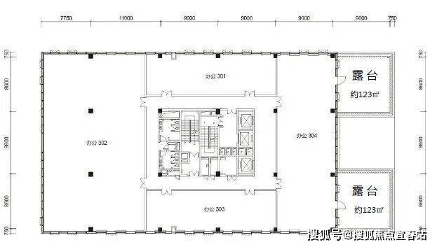
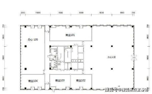
可售楼层面积:7F建筑面积约1087.3㎡
8F建筑面积约1086.23㎡
共计约2173.53㎡
标准层层高:4.5m
层高净高:3.15m

【总部区位】粤港澳大湾区
招商蛇口“三湾”汇聚,形成大湾区西部发展轴、产业带
【项目区位】蛇口核心位置,前海蛇口自贸区
背靠大南山,面朝深圳湾;毗邻前海,地处西部深港合作发展中轴;招商蛇口打造的“前海、中区、后城”标杆项目,有南中国最大的游轮母港
【区域价值】自贸区政策利好及价值
投资自由化、贸易便利化、资本跨境自由化、政府高效化等其它区域不具备的营商优势
太子湾·商务广场,国际滨海商务坐标,未来将成为中国企业帷幄湾区市场,创造新商机的沃土。
【大师巨著,打造高阶商务范本】
国际知名建设事务所OMA主创设计,联合许李严设计工作室,SWAGroup、华阳国际设计集团、BPI等国际知名设计团队联袂荣誉敬献。
【绿色低碳,营造健康生态空间】
• 太子湾整体荣膺美国LEED-ND铂金级绿色园区认证,一期产品获得LEED-CS金级绿色建筑认证,以“天、地、人”的理念塑造商务平台,获双LEED认证,是低碳节能商务典范;约25000㎡深圳最具特色商务园林,享双重山海林生态资源;
• 约8000㎡企业空中花园,204个有氧平台,随时随地为员工注入活力;
• 深圳首创生态商务双大堂,与自然零距离;全侧窗垂直幕墙系统,坐在大自然里办公。
【完备设施,打造便捷高效商务体验】
26部全进口三菱电梯,办公零等候;
89:1自贸区优越车位比,停车无忧;
原装VRV空调,企业使用灵活,计费透明。
【奢阔尺度,匹配企业尊崇气度】
3.15米净高,尽展豁达空间气度;
100%方正户型,极致商务尺度。
【人性设计,满足多样化定制需求】
层层700kg/㎡特殊楼板承重空间,满足企业多样化定制需求;
标准层均预留上下水,定制CEO专属盥洗室;
总部企业定制空间,自贸区高规格商务体验。
交通配置:
海:游轮母港---南中国最大的游轮母港,已开通香港、澳门、珠海、日本、越南、东南亚航线
陆:望海路下沉隧道、微波山隧道已开工,兴海大道直通沿江高速
空:40分钟直达深圳T3国际机场,1小时内直达香港、澳门国际机场
轨:2号线蛇口港站已开通,5号线延长线已开通,12号线太子湾站预计2022年通车
国际级商务配套:
【1】K11购物中心:深圳K11首站,总建面约26万㎡;
【2】海上世界:应有尽有的国际滨海新城;
【3】太子湾国际医院:招商蛇口与力宝集团联合打造;
【4】太子湾国际学校:领科教育集团打造,四年制直通美国大学;
【5】太子湾希尔顿五星级酒店:5万平希尔顿逸林酒店;
【6】大成文化艺术中心:两年一度深港城市建筑双城双年展(深圳)主展场;
【7】海上世界文化艺术中心:英国第二大博物馆V&A全球唯一分馆和观复博物馆签约入驻
声明:本文由入驻焦点开放平台的作者撰写,除焦点官方账号外,观点仅代表作者本人,不代表焦点立场。
