2025最新:惠州别墅「半岛1号」售楼处电话「半岛1号」楼盘地址-2025楼盘详情-房价-户型-配套楼盘详情-首页网站
扫描到手机,新闻随时看
扫一扫,用手机看文章
更加方便分享给朋友
惠州【半岛1号】
半岛1号售楼处电话:400-992-7960【看房请提前线上预约】
户型图丨楼盘详情丨折扣价格丨最新房源丨周边配套丨
开发商售楼处直销_欢迎来电预约尊享内部折扣_欢迎预约品鉴品鉴〢
半岛1号售楼处电话400-992-7960半岛1号【售楼中心】半岛1号楼盘详情
半岛1号售楼处电话400-992-7960【营销中心】


👑【半岛1号】👑
🔥建面约78-365㎡高层/别墅🔥
👑城芯百万大盘 万名业主睿选👑
🏰三大商圈环绕 举步半岛学校🏰
⛳百万方体育公园 棕榈岛高尔夫景观⛳
💎城芯唯一低密住区 中心区最高性价比💎
👉项目简介:
💎💎半岛1号位于粤港澳大湾区惠州惠阳中心区,毗邻惠阳区政府,门前依傍着天然的淡水河、半岛文化体育公园,高尔夫球场,城市绿肺相拥;
—⭕【项目基本信息】⭕—
💎💎项目总占地面积约100万平方米,建面120万㎡,容积率仅为1.2,是惠阳中心区首席低密度成熟大盘。
💎💎项目一共分12期开发,目前1期、2期、3期、4期、5期、11期和8期已经开发出售,居住氛围非常浓厚。半岛1号6期位于项目的北侧,占地24644㎡
,容积率2.57,主打高层业态产品;半岛1号10期位于项目的中部,占地面积72202㎡,容积率0.73,主打别墅业态产品;整体建筑和园林规划为西班牙风格,可以说是最具风情的组团。
🏆【必买半岛1号的8大理由】🏆
1、🏠17载百万大盘🏠
半岛1号经17载时光淬炼,已积淀成为涵盖别墅、洋房、高层、商业的百万大盘。目前已有近万名业主入住,是不可多得的湾区宜居大盘。
2、💰城芯中轴席位💰
半岛一号地处惠阳区政府北侧,与惠阳区政府仅一步之隔,占据城中正席;淡水河环绕,隔离城市喧嚣,繁华中独享宁静,离尘不离城,是城芯难得的静谧住区。
3、🚄路网齐全深港速达🚄
半岛1号地处交通枢纽处,约1公里淡水出口直通深汕高速,惠大高速、长深高速;多条线路直达高铁站惠州南站;出门即城市主干道,出行畅达无阻。
4、🎡万象繁华尽揽🎡
天虹商场、英之皇、天安大洋广场以及家乐福等大型商业在其左右;约2公里有惠阳三和医院、惠阳中医医院等各大医院为健康保驾护航;举步即达约100万㎡半岛体育文化公园、棕榈岛高尔夫、淡水河畔。
5、📖一站式菁英教育📖
9年制公立学校惠阳半岛学校、半岛崇雅实验幼儿园、半岛1号8期幼儿园、半岛1号11期幼儿园和崇雅艺术教育中心就在社区内,孩子步行即可享受一站式全优基础教育。孩子成长不离家,父母自然安心。

6、🌟醇美低密住区
17年时光积淀,项目内生长十余年的园林,丰茂的林荫大道,依地势打造出静美内湖,城市中奢享出则繁华,入则宁静的纯水岸悠美住区,如同把家搬进公园里。
7、🌴西班牙风情园林
遵循西班牙经典园林设计,在充满异域风情的园区里来一次慢跑;在铺满阳光草坪与孩子嬉戏;在休闲区的长椅上聊天或者发呆;享受西班牙风情园林带来的自由与浪漫。

8、👑6/10期大作 倾力呈献
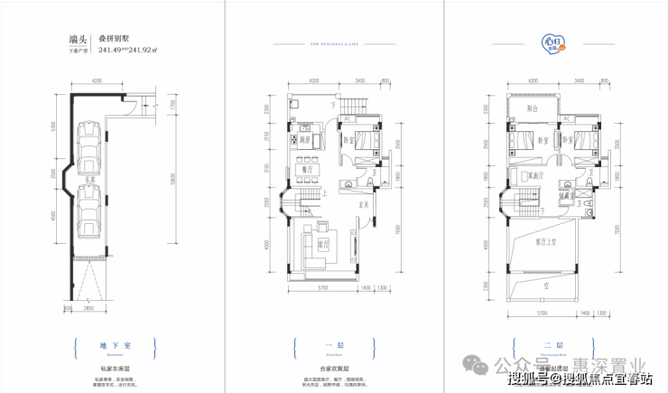
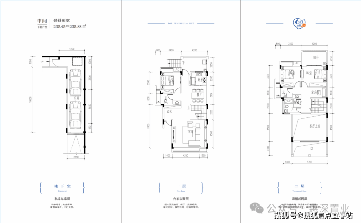
半岛1号6/10期品质升级力作,为城市菁英量身打造舒适的居住空间,产品系涵盖建面约78-142㎡观景高层、建面约235-399㎡湖岛别墅。

【6期在售产品】
👉建面约78-142㎡景观高层
👉样板房实景图
【10期在售产品】
👉建面约235-399㎡湖岛别墅








👉样板房实景图
🏆【半岛1号实景图】🏆
半岛1号售楼处电话✅:400-992-7960
案场预约制 看房需提前来电预约登记
半岛1号售楼中心电话☎:400-992-7960【售楼中心已认证】✅
半岛1号营销中心电话☎:400-992-7960【营销中心已认证】✅
半岛1号销售中心电话☎:400-992-7960【销售中心已认证】✅
温馨提示:点击上方号码可直接拨打电话
请务必致电与销售确认时间,仅预约客户可进入销售现场,感谢您的支持
免责声明:部分信息来源于网络,如果侵权,请联系及时删除联系电话:400-992-7960
声明:本文由入驻焦点开放平台的作者撰写,除焦点官方账号外,观点仅代表作者本人,不代表焦点立场。
