湾啟紫荆府(售楼处)首页网站-湾啟紫荆府营销中心-湾啟紫荆府欢迎您-楼盘详情-最新价格-户型图-容积率@售楼处
扫描到手机,新闻随时看
扫一扫,用手机看文章
更加方便分享给朋友
✨✨湾啟紫荆府售楼处电话:400 861 9050【售楼处电话已认证】✨✨
✨✨湾啟紫荆府营销中心电话:4008619050【营销中心电话已认证】✨✨
✨✨湾啟紫荆府开发商电话:400 861 9050【开发商电话已认证】✨✨
湾啟紫荆府售楼处电话:400-861-9050
深圳(湾啟紫荆府)湾啟紫荆府售楼处电话:4008619050,湾啟紫荆府营销中心_tel:4008619050,湾啟紫荆府开发商售楼部热线4008619050(售楼处已认证电话)。提前预约看房尊享额外优惠!
湾啟紫荆府,由招商集团打造,总占地面积约1.49万㎡,总建筑面积约10.6万㎡,计容建筑面积约6.68万㎡,容积率4.47,绿化率30.01%,共规划3栋总高36-37层住宅,其中1栋1单元/2单元住宅36F,2栋住宅37F,还配建有1所18班幼儿园。总规划485户,全部都是商品房住宅,4梯5户,地下室有2层,规划停车位597个, 车位占比1:1.23。
区域介绍
前海划分为3个片区,桂湾、前湾和妈湾:桂湾是金融区,前湾类似政务区,妈湾是比较纯粹的居住区。桂湾和前湾启动比较早,地块比较零散,虽然配套相对成熟,但地块小缺乏规模效应。
而妈湾因为城市规划和建设比较后置,货车络绎不绝,集装箱堆积,成熟度不够高,给人留下不好的固有印象。
但妈湾是三湾中体量最大的,留白净地很多,规划方面也比较超前,有一定的后发优势,比如“智慧妈湾”的打造理念,首条海底隧道接驳企鹅岛等等。考虑到未来的长期发展,妈湾开发比较后置,自然起点和定位就会更高,地理位置上说不定顺势成为前海真正的中心。
从位置上看,妈湾是唯一一个在三个湾区里面拥有270°视野,两面临海,容积率极低,未来有希望成为高端宜居生活住区。
图中看清楚妈湾未来的配套规划,有沿滨海岸线建设金融博物馆、改革开放博物馆、国深博物馆、海洋博物馆、渔人码头、前海新中心地标等市政配套集群。
根据规划,妈湾有2.9平方公里的土地由招商局集团和前海管理局合资成立的公司统一开发运营,最新定位是前海深港国际服务城,与桂湾深港国际金融城共同组成了前海双核,是前海扩区后的首要、重点推进项目。
而在此前,妈湾先导区还曝出丝路长廊、海丝小镇、1.6平方公里的空中平台、前海新地标等规划,将建设国家馆、国际经贸组织和国际文化交流组织等集群,并引进国内、国际总部企业集群。
此外,妈湾还确定要牵手腾讯,对标世界第一个智慧城市迪比克,打造以5分钟步行生活圈为基本功能模块的智慧理想人居空间。妈湾是前海三湾中唯一拥有山海合一资源的板块。
妈湾背靠大小南山,对望大铲湾腾讯科技城,既有内湾又有外海,拥有“山、海、林、城、岛、港、湾、河”等优势生态资源。
要知道,市政配套可以从无到有,但自然资源是不可再生亦不可复制。即使放眼全球,有着丰富生态资源的片区往往价值更高。妈湾还是前海三湾中面积更大、容积率更低的片区。
妈湾面积高达726.5公顷,比桂湾(295公顷)和前湾(310公顷)的总和还要多出20%,而且容积率仅为1.28-1.48,可开发空间充足、舒适度高,大有可为。
此等优质的地理位置+优越的自然资源,是打造低密生态豪宅住宅区的不二选择,深圳很难再找出第二个这样的区域。这也就是官方不着急最先发展妈湾的原因。先建设配套、发展人才,再建房,增补前湾和桂湾的居住和公共服务功能,这样才是一个板块的良性发展。
交通配套
周边共规划6条地铁线、2条城际轨道、1条妈湾跨海隧道及1个海空口岸。距离5号线妈湾站约300m,听海大道贯穿前海,可短时间通达南山、福田、宝安,快速链接大湾区生活圈
教育配套
项目周边拥有15所幼儿园、4所义务教育学校,还有荔湾小学和深大附中等学校都在周边。此外项目靠近多所国际学校,拥有3000到5000个名额,包括荟同国际学校、礼德国际学校、英国国王学校(深圳分校)以及深圳哈罗国际学校。临近小区南侧有一块九年制教育用地,但目前未招标。入住早期可能要到妈湾南二外学校或者前湾南二外学校上学。
商业配套
领玺一期项目自带16.7万平商业,加上不远处颐湾府底商,基本可以满足日常生活。印里首期商业(约3万平),去年9月正式开业,会有愈欣书店、SEESAW咖啡、罗森便利店、丘大叔柠檬茶等多个品牌入驻。
休闲配套
项目旁边即是河边公园,周边一个地铁站距离有月亮湾花园、青青世界、大南山公园等,也可快速抵达宝中滨海公园等。
项目效果图
本次推的2栋更靠近前湾河,可以看到河景,周边无高层遮挡,高区可看海。项目拥有山海河多重景观资源,精装交付。
户型:新规设计、高使用率,规划主力为3-4房产品。
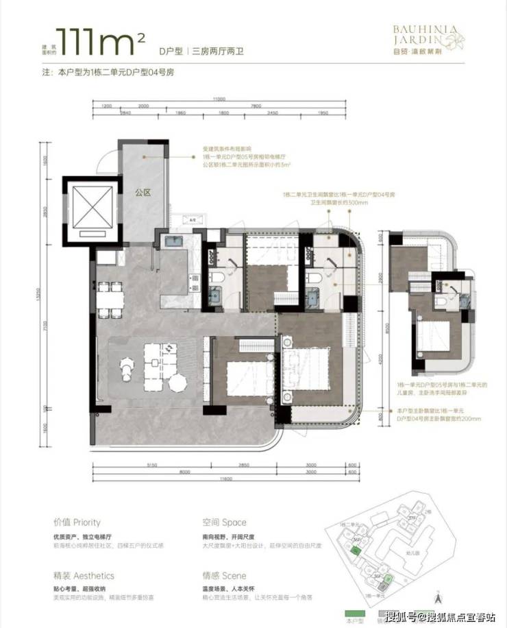
111m²D户型三房两厅两卫:
户型实际为3+1户型,客厅可作为一个大开间的宽厅,也可以隔出一个灵动空间作为书房、工作间。主卧空间南北通透,飘窗也得到了进一步的有效利用。同样是贯通式阳台联通客厅、卧室,阳台的宽度要比96㎡户型大许多,空间尺度提升明显,且有东南、西南两种朝向。
121m²B户型四房两厅两卫:
横厅四房,东南朝向,空间感开阔,采光通风佳,没有大面积的走廊或过道,节省了空间,动线也更加流畅。主卧拥有更加开阔的景观面,大面积的弧形无柱飘窗,将外部的自然光线引入室内,空间更加明亮宽敞。
122m²C户型四房两厅两卫:
双龙抱珠户型,书房分布于客厅另一侧,且难得是双面采光+270°景观视野。主卧南北通透,且拥有十分开阔的景观面。贯通式阳台联通客厅以及靠近动区的次卧,实现长观景阳台。
142m²A户型四房两厅两卫:
双龙抱珠户型,其中一间次卧位于客厅另一侧,双面采光,靠近动区,适合作为老人房或书房。客餐厅南北通透,兼顾横厅与竖厅优点,空间感足,利用率高,动静分离、干湿分离设计合理。贯通式超长宽境阳台,采光舒适度高。
✅ 本项目暂不接受临时到访,过来参观样板房请记得提前来电预约!
✅ 为您安排楼盘现场销售全程接待并讲解,给您更贴心的看房体验!
如有问题欢迎来电咨询,来电即可享受买房优惠!400-861-9050
预约来电尊享购房优惠,可预约案场内部销售人员,专业一对一热情服务,让您用专业眼光去买房。
免责声明
1、文章图片来源于微信搜索或百度搜索引擎,我方非相关图片的原创作者,也不对相关图片及内容享有任何权利。
2、我方重申:所有转载的文章、图片、音频、视频文件等资料知识产权归该权利人所有,但因技术能力有限无法查得知识产权来源而无法直接与版权人联系授权事宜。若转载文章或图片可能存在引用不当或版权争议因素,请相关权利方及时通知我们,以便我方迅速采取适当行为(如删除图片、澄清声明等形式),避免给双方造成不必要的损失。
3、本宣传资料对项目周边幼儿园、学校等教育资源的介绍旨在提供相关信息,并不意味着我方对就学安排作出承诺。教育资源的名称、办学性质、办学规模、学位设置、开学(班)时间、招生条件、收费标准及招生区域存在调整的可能,应以政府教育主管部门及办学方颁布的政策规定为准。联系号码:4008366879
4、文章中文字和图片之间无必然联系,仅供读者参考。
5、本文所述内容和意见仅供参考,不构成市场交易依据和投资建议。
声明:本文由入驻焦点开放平台的作者撰写,除焦点官方账号外,观点仅代表作者本人,不代表焦点立场。
