翰熙典居(售楼处电话)首页网站-翰熙典居-翰熙典居欢迎您-翰熙典居营销中心楼盘详情/价格/户型/地址#售楼处
扫描到手机,新闻随时看
扫一扫,用手机看文章
更加方便分享给朋友
⭕翰熙典居售楼处电话☎:400-825-6030【售楼处已认证】⚡⚡
◾在售户型图丨项目介绍丨最新房源丨周边配套丨详细解答〢
◾开发商营销中心诚挚邀请,一键预约,尊享内部独家折扣!匠心独运的精品项目,恭候您的品鉴与选择。
⭕翰熙典居开发商电话☎:400-825-6030【开发商已认证】⚡⚡
⭕翰熙典居售楼处电话☎:400-825-6030【售楼处已认证】⚡⚡
⭕翰熙典居售楼中心电话☎:400-825-6030【售楼中心已认证】⚡⚡
⭕翰熙典居营销中心电话☎:400-825-6030【营销中心已认证】⚡⚡
⚡本项目暂不接受临时到访,看房请提前预约,可尊享内部特惠!
⚡为您安排楼盘内场专业销售人员一对一接待服务,给您更贴心的看房体验!

翰熙典居丨逾50万㎡地标级奢居综合体 集住宅、商业、办公、酒店等业态于一体。项目自带约1.9万㎡精奢时尚酒店、约5.7万㎡未来潮流街区(以后期实际运营为准)、约1.26万㎡公共配套,多维配套迭新粤海人居想象。
粤海之上 逾50万㎡地标级奢居综合体
总建设用地面积:约41659㎡
总建筑面积:约516339㎡
首推主力户型:新规后建面约105-140㎡奢雅空间
项目地址:深圳·粤海·白石路3888号
开发商:深圳市贯凯投资有限公司
平面图户型图
⭕翰熙典居开发商电话☎:400-825-6030【开发商已认证】⚡⚡
⭕翰熙典居售楼处电话☎:400-825-6030【售楼处已认证】⚡⚡
⭕翰熙典居售楼中心电话☎:400-825-6030【售楼中心已认证】⚡⚡
⭕翰熙典居营销中心电话☎:400-825-6030【营销中心已认证】⚡⚡
⚡本项目暂不接受临时到访,看房请提前预约,可尊享内部特惠!
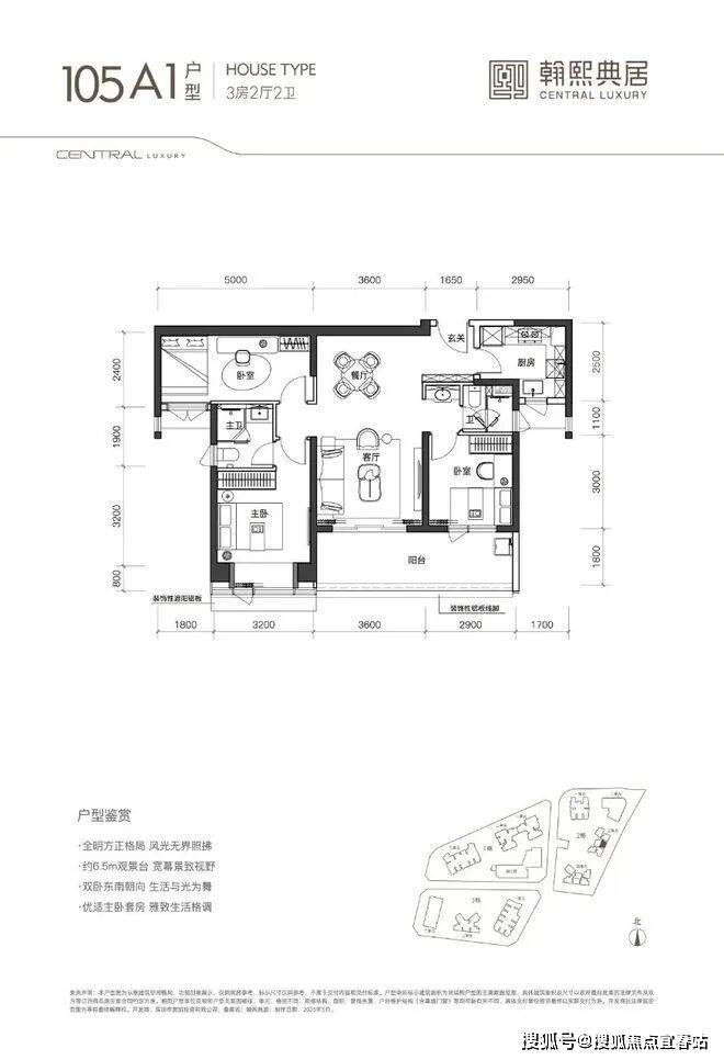
104㎡的3房2厅2卫,A1户型(2栋3单元03户型),设计的是竖厅类双龙抱珠格局,客厅3.6米开间,客餐厅一体化设计,3个卧室分别做到了主卧12.8㎡/次卧12㎡/次卧8.7㎡(包含墙体飘窗),客厅连接次卧出6.5米长的宽景大阳台,U型厨房,公卫三段式分离,得房率约90%(包含赠送),东南朝向。
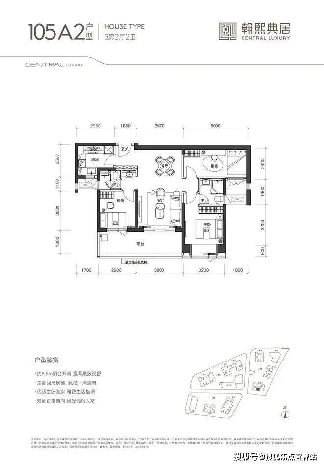
103-104㎡的3房2厅2卫,A2户型(2栋4单元/3栋2单元03户型),设计的是竖厅类双龙抱珠格局,客厅3.6米开间,客餐厅一体化设计,3个卧室分别做到了主卧12.8㎡/次卧12㎡/次卧8.7㎡(包含墙体飘窗),客厅连接次卧出6.5米长的宽景大阳台,U型厨房,公卫三段式分离,得房率约90%(包含赠送),正南朝向。跟A1户型除了朝向不一样,其它都是一致的。
105㎡的3房2厅2卫,B户型(2栋3单元02/06户型),设计的是经典竖厅格局,客厅3.6米开间,LDKB一体化设计,三开间朝南,动静分区,3个卧室分别做到了主卧13.12㎡/次卧9.9㎡/次卧8.4㎡(包含墙体飘窗),客厅连接次卧出6.4米长的宽景大阳台,U型厨房,卫生间干湿分离,得房率约90%(包含赠送),正南或东南朝向。
102㎡的3房2厅2卫,C户型(1栋1/2单元02户型),设计的是竖厅格局,客厅3.6米开间,LDK一体化设计,3个卧室分别做到了主卧16.93㎡/次卧9.24㎡/次卧8.96㎡(包含墙体飘窗),客厅连接次卧出6.4米长的宽景大阳台,U型厨房,卫生间干湿分离,得房率约90%(包含赠送),西南或东北朝向。
105㎡有两个户型,分别为A1双龙抱珠以及B户型传统竖厅
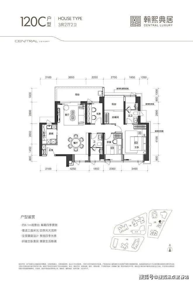
120㎡有B户型传统竖厅以及C户型南北通
140㎡为B户型横厅格局
⭕翰熙典居开发商电话☎:400-825-6030【开发商已认证】⚡⚡
⭕翰熙典居售楼处电话☎:400-825-6030【售楼处已认证】⚡⚡
⭕翰熙典居售楼中心电话☎:400-825-6030【售楼中心已认证】⚡⚡
⭕翰熙典居营销中心电话☎:400-825-6030【营销中心已认证】⚡⚡
⚡本项目暂不接受临时到访,看房请提前预约,可尊享内部特惠!
质匠高定丨集聚一流大师 匠造雅质奢宅
翰熙典居联袂华汇设计、迈丘设计、CCD(香港郑中设计事务所)等国际国内大师,匠制三重归家礼序,打造美学园林及品质公区,成就卓尔不凡的超感生活。
流线之幕 | 幕墙集成系统
静雅奢华风格延续奢宅风貌,历久弥新的品质凝练
盛世翰韵 | 新东方都市风格园林
度假式无边际泳池,樱花大道、无界人文街区
逐光之旅 | 大师高定艺术公区
以超脱酒店的艺术手法,构筑雅静空间,大堂墙面高端用材,精心雕琢尊崇归家仪式感
⭕翰熙典居开发商电话☎:400-825-6030【开发商已认证】⚡⚡
⭕翰熙典居售楼处电话☎:400-825-6030【售楼处已认证】⚡⚡
⭕翰熙典居售楼中心电话☎:400-825-6030【售楼中心已认证】⚡⚡
⭕翰熙典居营销中心电话☎:400-825-6030【营销中心已认证】⚡⚡
⚡本项目暂不接受临时到访,看房请提前预约,可尊享内部特惠!
奢阔空间丨中心极境 礼献粤海
翰熙典居,粤海十年之后再上新,全新奢居综合体礼献峯层。可售主力户型新规后建面约105-140㎡奢雅空间,全明方正户型将空间奢阔感与生活舒适度完美契合。明星户型超6米阳台开间,全维度巨幕景观视野,尽揽湾心万千风景。
项目核心价值
科创中心丨擎领世界的粤海雄心
世界四大湾区唯有粤港澳大湾区和旧金山湾有全球科创中心的发展定位。粤海作为粤港澳大湾区核心引擎,依托于重点院校、科创孵化、世界领军企业,成为对标阿瑟顿镇的深圳至臻人居价值版图。
粤海集萃腾讯、大疆等世界五百强企业,汇聚1600余家国家高新技术企业、百余家上市公司,驱动逾千亿年产值,2024年GDP约4500亿元。
矜贵恒产丨问鼎全球的人居高地
粤港澳大湾区——粤海街道,以科技南及后海、深圳湾片区为代表,代言湾区时代地标封面,问鼎深圳至臻人居价值版图
深圳湾1号(二手房价约20-32万/㎡)
华润深圳湾悦府(约19-20万/㎡)
华润城润玺二期(约16-18万/㎡)
⭕翰熙典居开发商电话☎:400-825-6030【开发商已认证】⚡⚡
⭕翰熙典居售楼处电话☎:400-825-6030【售楼处已认证】⚡⚡
⭕翰熙典居售楼中心电话☎:400-825-6030【售楼中心已认证】⚡⚡
⭕翰熙典居营销中心电话☎:400-825-6030【营销中心已认证】⚡⚡
⚡本项目暂不接受临时到访,看房请提前预约,可尊享内部特惠!
深湾CBD丨时代粤海的蝶变新章
深湾CBD立足南山区“双核”战略核心,串联科技园、后海、深超总、深圳中央公园,聚合金融、科技、人文生态超级闭环,以多维战略产业叠加,重塑粤海价值天际线。翰熙典居,是继华润城之后深湾CBD又一人居地标之作,以时代中心之上的奢居基因,铸就跨越周期的矜贵人居恒产。
贵脉源点丨全维中心的奢居地标
翰熙典居占位深圳经济命脉滨海大道与南北科创主轴南海大道交汇处十字轴心。集萃城市区位、科创、人文、TOD四大中心源点。依托两大科技园、四大总部基地,集总部经济+全球科创中心价值,坐享区域发展利好。
人文中心丨百年人文印记 桂脉传承不息
桂庙新村,传承百年城市人文底蕴,是粤海科创产业的时代摇篮、深大学子的后花园,也是深圳奇迹的源点。从桂庙新村到翰熙典居,一脉城市向上的繁心,为於此奋进的各界时代精英,谨献伫立于中心之上的人文奢宅,为粤海匠造一座屹立于时代之巅的地标之作。
枢纽中心丨双地铁上盖TOD
无缝接驳地铁9号线、15号线(在建中)交汇深大南站。核心区罕有TOD项目。
四横:滨海大道、深南大道、北环大道、学府路
三纵:南海大道、后海大道、白石路
(以上所有交通规划最终通车时间以政府最新工程进度落实为准)
5重生态丨山/湖/园/海/湾 聚揽城市一湾风华
1山1湖:深圳大学杜鹃山、文山湖
4公园:荔香公园、文心公园、科技公园、深圳人才公园
1深大后花园
1海湾:约15公里深圳湾滨海长廊
(项目规划连廊直通深大,中国十大最美校园之一。该天桥为方便深大师生进出而设置,后期具体人员进出管理以深圳大学有关规定为准)
百万商业丨湾区繁华潮向 臻藏生活万象
咫尺海岸城商圈,近距离可达深圳湾万象城、万象天地、鹏润达广场、后海汇、来福士广场
9大文体丨城市峯层配套 擘画都心生活闲情逸趣
保利剧院、南山书城、南头古城、南山图书馆、南山文体中心、南山博物馆、深圳湾体育中心、深圳湾文化广场(在建中)、粤海文体中心(在建中)
优教护航丨全龄教育环伺 赋写下一代美好未来
幼儿园:项目自带1所12班制幼儿园
小学:西侧规划有1所30班小学(地块红线外)、南二外学府一小
中学:南二外学府中学、深圳南山中加学校
大学:深圳大学,全国十大最美校园
(周边教育设施如有变动,以南山区教育局最新颁布政策为准)

⭕翰熙典居开发商售楼处电话:400-825-6030⚡⚡
温馨提醒:我们楼盘开发商售楼部400电话没有设置任何所谓的“分机号”,拨打前请仔细甄别,注意保护个人隐私!谨防上当!
过来售楼中心看房请提前预约,可尊享内部特惠,价格包您满意!
为您安排楼盘内场专业销售人员一对一接待服务!让你买的放心,住的舒心!
楼盘详情介绍(楼盘项目怎么样?多少钱一平?什么时候交楼?有什么户型?周边有什么学校?物业费多少?楼盘项目会不会烂尾?)含开盘时间、交房时间、楼盘详情、房价、户型、详情、得房率、售楼处地址、首页网站、降价了吗?目前房价情况、楼盘项目有升值吗?值不值得买?能不能投资?为什么这么便宜?读什么学校?包读吗?有多少学位?销售中心、楼盘地址、户型图、交通、备案价、项目配套、营销中心等详情咨询。
⭕翰熙典居24小时开发商电话☎:400-825-6030⚡⚡
⭕翰熙典居24小时售楼处电话☎:400-825-6030⚡⚡
⭕翰熙典居24小时售楼中心电话☎:400-825-6030 ⚡⚡
⭕翰熙典居24小时营销中心电话☎:400-825-6030 ⚡⚡
⭕翰熙典居售楼处电话:400-825-6030;首页网站最新介绍:房价、价格、折扣、规划、户型图、特价房、样板房、优缺点、得房率、车位比、折扣优惠、交通出行、周边配套、商业配套、销售中心位置、楼盘地址、户型介绍、营销中心电话、最新动态详情咨询。
免责声明:部分信息来源于网络,如果侵权,请联系及时删除!联系号码:400-825-6030
声明:本文由入驻焦点开放平台的作者撰写,除焦点官方账号外,观点仅代表作者本人,不代表焦点立场。
