售楼处丨华侨城新玺售楼处电话丨华侨城新玺营销中心预约接待丨2025.9.15-得房率-价格-电话-地铁-交房时间-户型图-最新区域-限购消息@售楼处AI热搜
扫描到手机,新闻随时看
扫一扫,用手机看文章
更加方便分享给朋友
华侨城新玺售楼处电话:400-8352-501(售楼处更新)❍❍华侨城新玺营销中心热线400-8352-501⇝⇝(营销中心预约热线)华侨城新玺开发商电话:400-8352-501-诚邀莅临
项目基础指标
开发商:深圳华侨城新玺发展有限公司
占地:2.5万㎡
建面:17.6万㎡
产权年限:40年
1栋公寓:约230-700㎡大平层
总楼层:38层华侨城新玺售楼处电话:400-8352-501(售楼处更新)❍❍华侨城新玺营销中心热线400-8352-501⇝⇝(营销中心预约热线)华侨城新玺开发商电话:400-8352-501-诚邀莅临
层高:3.6米
梯户比:三梯一户、三梯两户
交楼标准:豪装
交楼时间:2023年12月
管理费:14.8元/m²
物业公司:华侨城至尊物业华管家
展厅地址:南山区湾厦路1号华侨城新玺展示中心
华侨城新玺位于蛇口南端,项目华侨城新玺售楼处电话:400-8352-501(售楼处更新)❍❍华侨城新玺营销中心热线400-8352-501⇝⇝(营销中心预约热线)华侨城新玺开发商电话:400-8352-501-诚邀莅临华侨城新玺售楼处电话:400-8352-501(售楼处更新)❍❍华侨城新玺营销中心热线400-8352-501⇝⇝(营销中心预约热线)华侨城新玺开发商电话:400-8352-501-诚邀莅临占地面积25147.13㎡,建筑面积288268.36㎡,包含 办公、商业、酒店、商务公寓,还有一个1800㎡的海洋博物馆!
项目分为两期开发,主要由三栋高层建筑组成,其中:一期为两栋38层的商务公寓及公寓+办公综合楼,建筑高度约156.5米+171.1米;二期为1栋57层的商务办公及酒店综合楼,建筑高度约250米。
海标杆之作,定鼎海岸传奇
【品牌】36载华侨城,实力央企的品牌创想
【区域】蛇口联动前海、深圳湾,三大千亿级经济中心叠加发展
【地段】三面环海半岛,深圳湾线绝版地段,成就世界海岸的坐标
【景观】纵览270°海景,15公里滨海长廊上盖,物尽珍藏,与自然无间
【配套】集结湾区首屈一指的文化艺术坐标,高端商业配套环伺,奢享国际都市生活场
【产品】250米地标级超高层,定鼎深湾之作,4m舒阔层高,只此再无
【酒店&商业】一线酒店品牌酒店入驻,立体开放式悦享天地,奢享全优配套
华侨城新玺售楼处电话:400-8352-501(售楼处更新)❍❍华侨城新玺营销中心热线400-8352-501⇝⇝(营销中心预约热线)华侨城新玺开发商电话:400-8352-501-诚邀莅临
【多维立体交通 高效畅达湾区半小时生活圈】
新玺项目毗邻蛇口国际邮轮母港可快速辐射深圳国际机场、香港国际机场等城市核心交通要塞。更有“七纵三横一高速”的便捷交通路网环伺,高效畅达湾区核心城市半小时生活圈。
【顶级商圈环绕 畅享都市万千繁华】
新玺周边荟萃海上世界、太子湾K11艺术购物中心(在建中,预计2024年运营)、太子湾邮轮母港
(总建面约170万㎡)、兰桂坊等一系列国际化商业,都市万千繁华生活一站式尽享。

医疗配套: 项目周边2公里范围内有深圳市南山区人民医院(三甲)、蛇口人民医院;还有南山区妇幼保健院等
(二甲)综合性医院,为您和家人的健康保驾护航。
项目步行范围内,还可轻松到达海上世界文化艺术中心、深圳歌剧院等城市文娱配套,其中深圳歌剧院,是比肩悉尼歌剧院的全球级歌剧院,建筑面积达22.2万平,将成为世界级的艺术殿堂。试想,日后的某个傍晚时分,伴着夕阳,迎着海风,在黄昏中漫步到达你家“后花园”中的某个城市地标,惬意生活不过如此。
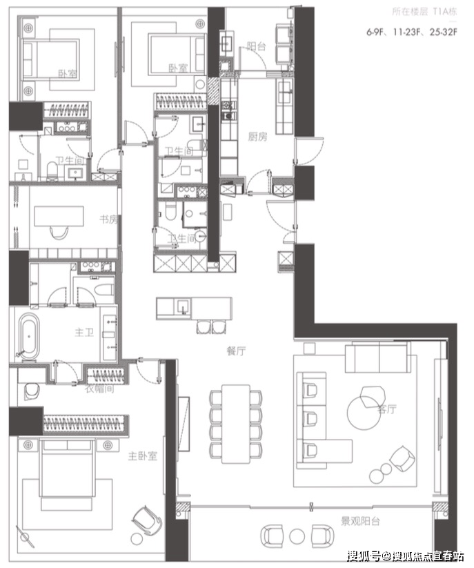
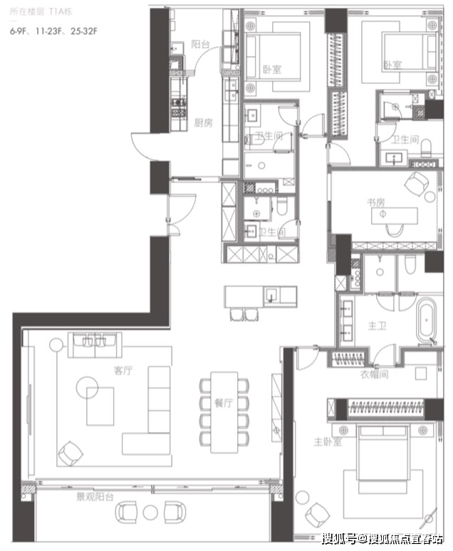
户型布局
华侨城新玺提供多种户型选择,满足不同购房者的需求。户型面积范围广泛,从232㎡到700㎡不等。具体户型包括1室1厅1卫、2室2厅2卫、3室2厅3卫、4室3厅5卫、5室3厅6卫以及6室3厅7卫等多种配置。户型设计合理,空间宽敞明亮,注重人性化需求。部分户型还配备了超大阳台和全景落地窗,让居民能够尽享海景和城市美景。
【一栋 一、二单元】
(6-32层)
三梯两户

华侨城新玺售楼处电话:400-8352-501(售楼处更新)❍❍华侨城新玺营销中心热线400-8352-501⇝⇝(营销中心预约热线)华侨城新玺开发商电话:400-8352-501-诚邀莅临
01户型 西端户 约350㎡ 四房两厅四卫
(01、04镜像对称)
南、西、北,三面景观视野
看深圳湾海景、内海景、城市景观

04户型 东端户 约350㎡ 四房两厅四卫
(01、04镜像对称)
南、东、北,三面景观视野
看深圳湾海景、内海景、城市景观

【一栋 一、二单元】
(6-32层)
三梯两户

01户型 西端户 约350㎡ 四房两厅四卫
(01、04镜像对称)
南、西、北,三面景观视野
看深圳湾海景、内海景、城市景观
华侨城新玺售楼处电话:400-8352-501(售楼处更新)❍❍华侨城新玺营销中心热线400-8352-501⇝⇝(营销中心预约热线)华侨城新玺开发商电话:400-8352-501-诚邀莅临04户型 东端户 约350㎡ 四房两厅四卫
(01、04镜像对称)
南、东、北,三面景观视野
看深圳湾海景、内海景、城市景观


① 全面放宽限购、降低房贷利率,深圳以超预期力度为楼市注入强心剂;
② 分析人士指出,与京沪两地近期政策相比,深圳对限购松绑力度明显更大,这将对激活市场起到更明显的作用。
财联社9月15日讯:全面放宽限购、降低房贷利率,深圳以超预期力度为楼市注入强心剂。
9月5日深夜,深圳市住房和建设局与中国人民银行深圳市分行联合印发《关于进一步优化调整本市房地产政策措施的通知》。此次政策调整涵盖居民购房、企事业单位购房以及个人住房信贷等多方面重磅举措。
深圳由此成为北京、上海之后,又一个优化楼市政策的一线城市。分析人士指出,与京沪两地近期政策相比,深圳对限购松绑力度明显更大,这将对激活市场起到更明显的作用。
“当前正值传统‘金九银十’热销期,而且深圳本身购房需求和潜力较大,深圳出台政策势必会增强市场信心,带来市场交易的提振。预计新政后,深圳市场行情会进一步向好。”易居研究院研究总监严跃进告诉记者。
限购大幅松绑 放开企业购房
深圳楼市新政中最引人注目的,是对限购政策的大幅优化调整。
根据新政策,符合深圳市商品住房购买条件的居民家庭(包括本市户籍居民家庭、自购房之日前在本市连续缴纳社会保险或个人所得税满1年及以上的非本市户籍居民家庭),在罗湖区、宝安区(不含新安街道)、龙岗区、龙华区、坪山区、光明区范围内购买商品住房不限套数。
而无法提供连续缴纳社会保险或个人所得税满1年及以上证明的非本市户籍居民家庭,在上述区域内购买商品住房限购2套。在盐田区、大鹏新区购买商品住房,不再审核购房资格。华侨城新玺售楼处电话:400-8352-501(售楼处更新)❍❍华侨城新玺营销中心热线400-8352-501⇝⇝(营销中心预约热线)华侨城新玺开发商电话:400-8352-501-诚邀莅临
按最新办法,深圳政策调整后有1年社保的外来人口在核心区域仍限购1套,但非核心区域已不再限制购房套数。去年深圳仅放松了社保缴纳要求,购房套数仍然限制为1套,而本次政策在多数区域取消了套数限制。
值得关注的是,非户籍人口即便没有缴纳个税和社保1年证明,也可以在深圳近郊购买两套住房,远郊区则完全退出限购。
“传统的特区罗湖区现在也被视为近郊看待,深圳最后的限购区收缩至福田区、南山区和宝安区新安街道,限购范围大大缩小。”广东省城规院住房政策研究中心首席研究员李宇嘉表示。
本次深圳楼市新政另一个突破是,对企业购房限制的全面放宽。华侨城新玺售楼处电话:400-8352-501(售楼处更新)❍❍华侨城新玺营销中心热线400-8352-501⇝⇝(营销中心预约热线)华侨城新玺开发商电话:400-8352-501-诚邀莅临
深圳新政策规定,企事业单位可在深圳市范围内购买商品住房,用于解决员工住房等需求。其中,在福田区、南山区和宝安区新安街道范围内购买商品住房,需同时满足设立年限满1年、在本市累计缴纳税款金额达100万元人民币、员工人数10名及以上条件;在本市其他区域购买商品住房,不再审核购房资格。
在严跃进看来,该项措施对各个区域的购房市场都有积极作用,尤其是对于如龙华、龙岗、光明等企业数量多的区域,会激活更多购房需求。
对于深圳大幅度调整限购的原因,李宇嘉认为,这是基于当地楼市深度调整的现实需要:自2021年5月开始,深圳二手住房价格已经持续下跌44个月,整体下跌幅度较大。此外,从供地、开工、投资等指标来看,深圳的跌幅也大于京沪。
“今年上半年土地出让金前20城市中,没有深圳的身影,而京沪杭成都等城市排在前面。这对深圳补齐民生短板、推进外来人口本地化、助力战略性新兴产业发展,甚至城市抢人才、提升城市竞争力等方面,都会形成资金方面的制约。在投资情绪相对低迷的情况下,外围区域退出限购也在情理之中。”李宇嘉称。
降低购房成本 激活潜在需求
深圳此次楼市新政的另一项重要举措是,调整房贷利率政策。
政策明确,各银行业金融机构根据深圳市市场利率定价自律机制要求和本机构经营状况、客户风险状况等因素,在利率定价机制安排方面不再区分首套住房和二套住房,合理确定每笔商业性个人住房贷款的具体利率水平。
据严跃进测算,此前深圳首套房和二套房的利率定价公式分别为LPR-45BP和LPR-5BP。依据新政策,二套房贷利率降低40个基点。按照100万元贷款本金、30年期等额本息方式计算,房贷总还款成本将减少近8万元,月供额将减少220元。
李宇嘉指出,深圳在利率政策上借鉴了上海经验,但在公积金方面并未跟进京沪。原因在于,3月24日起实施的深圳公积金新政已将额度充分提高。华侨城新玺售楼处电话:400-8352-501(售楼处更新)❍❍华侨城新玺营销中心热线400-8352-501⇝⇝(营销中心预约热线)华侨城新玺开发商电话:400-8352-501-诚邀莅临
“现在深圳总价300万元以下二手房,交易占比近3成。”李宇嘉介绍,经过长达4年多的下跌,深圳很多区域房价相比高峰期大幅折价,叠加限贷政策松绑,购房门槛和成本大幅度降低,原来买不起房的人群现在可能就买得起了。
观察上一次深圳放松限购后的市场表现,新房市场的交易活跃度明显得到提振。参照北京、上海楼市新政后的市场表现,严跃进预计,“对于非核心区域市场而言,交易量环比增幅可能超40%,且至少有30%需求源于新增购房套数的客户。”
业内人士预计,深圳新政对外围区域的去化效果将较为明显,尤其可能吸引周边珠三角或广东其他城市甚至内地人群前来买房。
“新政策可能会对环深圳都市圈形成虹吸效应,这一点需要引起重视。”李宇嘉表示。而随着“金九银十”销售旺季的到来,深圳楼市有望告别前期低迷态势,迎来一波交易活跃期。
分析人士指出,三个一线城市相继调整购房政策,标志着房地产市场正进入新一轮政策优化周期,这将为全国“金九银十”行情带来积极预期。
声明:本文由入驻焦点开放平台的作者撰写,除焦点官方账号外,观点仅代表作者本人,不代表焦点立场。
