深圳融湖盛景花园楼盘详情_最新房价_售楼处电话_户型图_配套_地址
扫描到手机,新闻随时看
扫一扫,用手机看文章
更加方便分享给朋友
深圳【融湖盛景花园】销售中心电话:400-873-0112(中介勿扰)
楼盘最新价格,户型图,地址,电话,样板房,周边配套,项目介绍
温馨提示:绝不收取任何费用,请提前1小时预约看房,以免带来不好的看房体验
——————————————————————————
开发商背景
融湖中心城是深耕深圳26年的岗宏集团旗下的地产开发公司,截至目前岗宏集团已打造多个知名项目,融湖中心城是集团的核心项目。
融湖中心城共分五期开发,其中一、二、三期已经入住,四期已经封顶,即将入市的是项目五期,也是百万建面大城的收官之作——融湖盛景花园。
融湖盛景花园紧邻平龙路和平吉大道两条主干道,无论是去平湖区域内还是去外区域,交通都非常方便。
融湖盛景花园是融湖中心城最后一期住宅,北为一期(朝阳路)、东为三期(朝辅路)、南为辅岐路、西为阳光路。整体占地约5万㎡,总建面约27万㎡。
项目采用半围合式布局,住宅一共是4栋12个单元,点式和板式交错布置,营造出约4.1万㎡的中央大花园,这样既可以让园林空间最大化,大多数户型都可以看到中央花园的景观;同时又实现了楼间距的最大化,保证了业主的私密性。

百万体量,区域标杆大城
融湖中心城总共分五期开发,总建筑面积约100万㎡,涵盖住宅、社趣商业、文化站、教育配套、写字楼于一体,一二三期已交付,融湖盛景花园为住宅收官之作,商业、教育配套醇熟,大城生活逐步兑现。
中央园林,塑造友邻共享的休闲空间
采用围合式布局,营造约4.1万㎡中央大花园;
园林以“自然无界、都会度假”为主题,为业主营造精致的休闲归家体验;
内部配置泳池、社区会客厅、健身跑道、0-12岁儿童全龄活动区等。
匠心人居,尽享美好生活
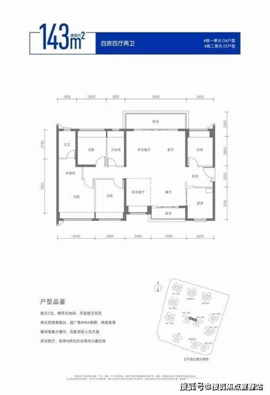
建筑面积约82-111㎡3-4房品质住宅,超80%使用率,朝南全明户型,通风采光俱佳,经典室内布局,匠造舒适惬意的生活。
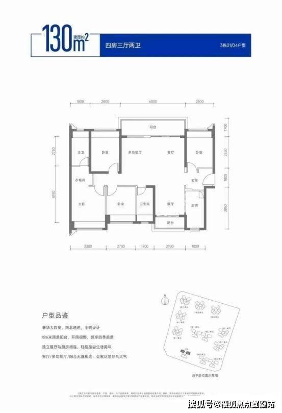
【户型鉴赏】
建面约82㎡三房两厅一卫
建面约94㎡三房两厅两卫
建面约111㎡四房两厅两卫
【项目名称】盛景花园(融湖中心城五期)
【占地面积】约5万㎡
【建筑面积】约27万㎡
【产权年限】70年
【总户数】1805
【车位比】1:0.88
【容积率】3.96
【绿化率】30%
【梯户比】2梯6户
【开发商】深圳市鼎宏投资发展有限公司
【物业公司】岗宏城拓物业管理有限公司
【项目地址】位于平吉大道与平龙路交汇处
中心交通 | 轨道、高速枢纽
根据龙岗十四五规划,平湖将重点打造两大枢纽:平湖枢纽、白泥坑枢纽。离我们比较近的是平湖枢纽,这里汇聚四条轨道:
第一条:广深城际,已开通,乘坐和谐号,无论是去罗湖还是广州都非常方便;
第二条:深惠城轨,已正式获批,即将动工,直达北站、南山、前海保税区;
第三条:10号线,已通车,8站到华为站,直达福田CBD、福田口岸;在双拥站可以换乘17号线(规划线),直达罗湖口岸;
第四条:18号线(规划线),直达大空港。
通过18号线可以换乘至白泥坑枢纽,这里汇聚三条轨道——另外两条就是直达宝安国际机场T4枢纽(规划线)的深大城际和直达前海的21号线(规划线)。
◆ 开发商营销中心诚挚邀请,为您安全和隐私保驾护航,一键预约,尊享内部折扣!匠心独运的精品项目,恭候您的品鉴与选择。 过来参观样板房烦请记得提前来电预约!安排楼盘现场销售全程接待并讲解,给您更贴心的看房体验!
关于本项目最新动态信息,如:在售房源价格,热门户型面积,限时特惠活动,等等,未推售楼栋分布,整体销售情况,临近地铁线路及出入口方位,区域发展蓝图,楼盘核心亮点与待完善细节以及教育资源配套情况等等均可拨打售楼处热线咨询,我们将为您对接专属资深置业顾问进行细致讲解!
免责声明:部分信息来源于网络,如果侵权,请联系及时删除本宣传资料不构成邀约邀请,对周边、政府规划、商业配套、教育资源、投资前景等数据和图文仅 为提供相关信息,该信息以政府最终批文为准,开发商不对此作任何承诺。买卖双方的权利义务以双方签订的买卖合同约定及附件、实际交付为准,本公司保留对宣传资料修改的权利,敬请留意最新资料。联系号码400-873-0112。
声明:本文由入驻焦点开放平台的作者撰写,除焦点官方账号外,观点仅代表作者本人,不代表焦点立场。
