热搜焦点:湾啟紫荆府售楼处电话→湾啟紫荆府首页热搜24小时电话→最新房价→楼盘百科详情→营销中心最新发布@售楼处中心2025-10-17
扫描到手机,新闻随时看
扫一扫,用手机看文章
更加方便分享给朋友
◆开发商营销中心诚挚邀请,一键预约,尊享内部湾啟紫荆府独家折扣!匠心独运的精品项目,恭候您的品鉴与选择。
🐉🐉湾啟紫荆府营销中心售楼处24小时开发商认证电话:4009880986(中介勿扰)现场详细解答丨项目介绍丨户型图丨在售房源丨特价房丨学校丨交通湾啟紫荆府位置丨样板房丨小区图片丨交房时间丨周边配套丨湾啟紫荆府丨✅本项目暂不接受临时到访,过来参观样板房请记得提前来电预约!🐉🐉

湾啟紫荆位于前海妈湾听海大道,占地约1.5万㎡,住宅建面约6.6万㎡,容积率5.14,共有三栋住宅组成,层高36-37F,共485户,车位595个,车位比1.1.2,4梯5户,主推约96㎡稀缺三房、111㎡3+1房、122㎡四房、142㎡四房。户型设计了大客厅、宽景阳台、阔景飘窗等,拥有山海河多重景观资源,计划品质精装交付。户型采用建筑新规设计,户户大阳台,4梯5户,分布式电梯设计,独立电梯厅。
项目位于前海三湾的宜居妈湾,听海望山、社区纯粹。经反复推敲建筑排布、户型格局、室内精装、社区配套等,让居住者体验松弛的人居生活方式。
【项目数据】
加推套数:165套(2栋)
层高:37层,室内约3.1m
交付时间:2027.3.30
交付标准:品质精装
梯户比:4梯5户
管理费:9.5元/㎡(招商积余)
批地:2024.3月(70年产权)
总户数:485户
车位:595个
地铁:五号线妈湾站
学校:楼下配备18班幼儿园,隔壁规划1所九年义务制学校;荟同,中欧等国际教育资源
使用率:新规住宅,拓展后约92%以上
整个湾啟紫荆府项目占地面积14953平方,共有3栋住宅楼,总层高36-37楼,主力户型为96、111、121、122、142平,共规划485套纯商品房。
车位共595个,车位比约1:1.2,容积率约4.47,梯户比例为4梯5户。

本次推的2栋更靠近前湾河,可以看到河景,周边无高层遮挡,高区可看海。项目拥有山海河多重景观资源,精装交付。
户型:新规设计、高使用率,规划主力为3-4房产品。
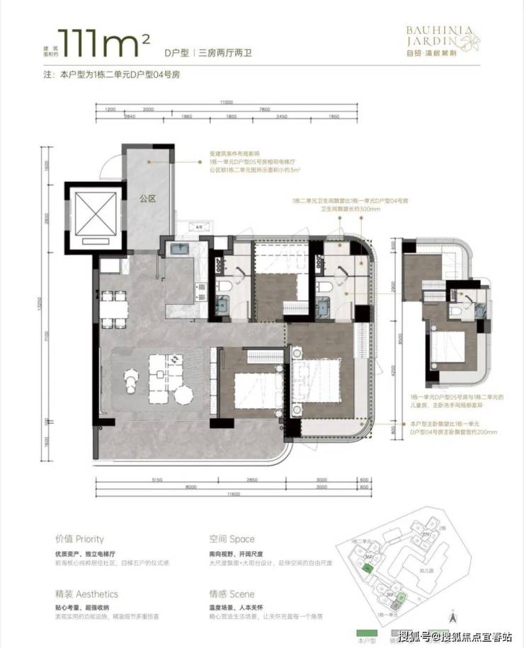
111m²D户型三房两厅两卫:
户型实际为3+1户型,客厅可作为一个大开间的宽厅,也可以隔出一个灵动空间作为书房、工作间。主卧空间南北通透,飘窗也得到了进一步的有效利用。同样是贯通式阳台联通客厅、卧室,阳台的宽度要比96㎡户型大许多,空间尺度提升明显,且有东南、西南两种朝向。
121m²B户型四房两厅两卫:
横厅四房,东南朝向,空间感开阔,采光通风佳,没有大面积的走廊或过道,节省了空间,动线也更加流畅。主卧拥有更加开阔的景观面,大面积
122m²C户型四房两厅两卫:
双龙抱珠户型,书房分布于客厅另一侧,且难得是双面采光+270°景观视野。主卧南北通透,且拥有十分开阔的景观面。贯通式阳台联通客厅以及靠近动区的次卧,实现长观景阳台。
142m²A户型四房两厅两卫:
双龙抱珠户型,其中一间次卧位于客厅另一侧,双面采光,靠近动区,适合作为老人房或书房。客餐厅南北通透,兼顾横厅与竖厅优点,空间感足,利用率高,动静分离、干湿分离设计合理。贯通式超长宽境阳台,采光舒适度高。
【妈湾HIGH CITY执笔者】
自贸投资由“招商局集团”携手“前海管理局”联袂成立,定位为全球领先的自贸新城开发和运营服务商,作为单一主体统筹运营开发妈湾2.9平方公里。HIGH CITY,力图将“一张蓝图”逐步落成“实景画卷”,开启一个更加美好、更加智慧、可持续发展的理想未来。
1)妈湾立体之城,因坐拥前海核心优质资产而松弛位于前海三湾之一妈湾,背衔大、小南山,享山河海景观、纯粹居住社区,给予目标人群在前海置业的更好生活形态。
2)灵动空间格局,因更高的获得感而松弛• 四梯五户,独立电梯厅;• 户户均有南向视野,空间格局通透敞亮;• 270°弧形无柱大尺度飘窗、大宽厅、大阳台,带来更多使用空间。
3)人性精装交付,因更心安的品质而松弛• 人性化品质精装交付、高颜满配美妆细节;• 高效便捷的收纳设计、隐藏式音箱接口预留;• 静音专项设计、线形地漏(淋浴间)、同层排水。
4)回归情感,因更从容的生活而松弛构建5大家居松弛感场景+3大社区生活场景,营造一种超越日常的宁静与自在,妥帖生活每一个细节。
【交通】立体便捷交通,更便捷高效出行距5号线妈湾站约550m,毗邻听海大道,可快速通达南山、福田、宝安及大湾区生活圈;规划8条轨道(城际+城市)、4条快速路、1条跨海通道(建设中)1个海空口岸(规划中)。
【教育】国际人文教育,更广阔成长空间楼下配套18班幼儿园(建设中),隔壁规划1所九年义务学校;周边配套9所幼儿园、2所九年义务制学校+1所高中(规划中);荟同、中欧等国际教育资源,开启更加广阔的成长空间。
【商业】全维商业覆盖,满足生活所需毗邻自贸时代中心商业(建设中),项目周边共配套1个商业综合体、6大商业中心和建面约67.5万㎡滨海活力商业,满足日常生活所需。
【人文】国际生活配套,松弛的烟火气息流动汇集文化艺术中心(规划中)、前海博物馆(建设中)等国际人文配套,赛艇、帆船、戏剧、音乐节等国际范活动持续进行。
🐉本项目暂不接受临时到访,过来参观样板房请记得提前来电预约!🐉
🐉温馨提醒:我们楼盘售楼部400电话没有设置任何所谓的“分机号”,拨打前请仔细甄别,注意保护个人隐私!谨防上当!🐉
湾啟紫荆府开发商售楼处电话为:400-988-0986【预约热线】丨详细解答丨在售户型图丨项目介绍丨在售房源丨周边配套丨VR看房丨楼盘图丨沙盘图丨位置图丨配套图丨售楼处丨足不出户丨销售1V1讲解
声明:本文由入驻焦点开放平台的作者撰写,除焦点官方账号外,观点仅代表作者本人,不代表焦点立场。
