玺玥麓坊搜狐焦点IAi热搜首页网站玺玥麓坊营销中心-楼盘详情-最新价格-户型图-容积率@最新售楼处
扫描到手机,新闻随时看
扫一扫,用手机看文章
更加方便分享给朋友
🏡购房难题不用愁?专业顾问1v1解忧!
✨ 直连开发商 · 无忧购房通道 ✨
🔍 购房疑问?一键咨询专业顾问!
📞 售楼处热线:400-873-0112【已认证】
项目区位丨户型解析丨在售房源丨特价优惠丨学区配套丨交通动线丨样板间实拍丨小区环境丨交付标准丨周边商业丨
项目基本信息
开发商:宏发地产
物业类型:商务公寓
地址:深圳市宝安区新安三路27号
占地面积:约0.96万㎡
建筑面积:约3.36万㎡
总户数:529户
栋数:3栋
产权:40年
层高:2.95米
梯户比:公寓6梯13户
总层:46层
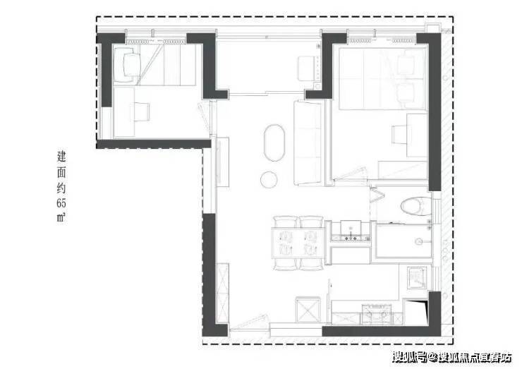
户型:44-56㎡1房,65-78㎡2房
交楼标准:毛坯/精装(8-12万装修费/套)
交楼时间:2024年3月
单价:5.8-7万
均价:6.5万
总价:280-460万
容积率:6.11
绿化率:30%
物业:中粮物业
物业费:7.8元/㎡
地 铁:5号线洪浪北D出口480米
宏发项目|九大核心价值
📍 宝安都市核心地段,资产价值凸显
🚇 双地铁(5/15号线)洪浪北站约100米
🏢 品质现楼,毗邻豪宅社区,即买即享
🛌 44-71㎡1-2房,6梯13户,户户通燃气带阳台
🏙️ 30万㎡综合体,邻勤城达K+、中洲·πMall等商圈
📚 3中学+6小学,教育资源丰富
🌳 六大公园环抱,健康绿意生活
🏅 宏发43载品牌保障,国家一级物业
城芯所在稀贵之地,新安都市核心区
位于西部黄金中轴发展线上的——新安,占据前海“腹地”,前海+宝安中心区双中芯辐射,城市核芯资源尽皆于此。
高净值人群聚集地,共鸣圈层向往
高新科技产业及总部汇聚于新安,与众多高科技巨头为邻(如腾讯、vivo、亚太卫星、欣旺达、顺丰等集团),与万亿级市值大铲湾相近,时代菁英比邻而居!
休闲配套资源:纵享宝中的休闲配套,如海滨广场、宝安体育馆、宝安图书馆、宝安青少年宫、欢乐港湾等地方休闲娱乐
商业资源:中洲πmall、勤诚达K+广场、海雅缤纷城等大型购物中心环伺
教育配套:周边6所小学+3所中学环绕,含宝安中学(集团)多所分校,资源丰富。
🚇 地铁5/12/15号线(在建)便捷换乘,快速通达宝中、前海、留仙洞、深圳北及企鹅岛,串联核心商圈与产业区,居住投资价值双优。
【多元醇熟配套,纵享人文艺术高地】
6大生态资源:约12万㎡灵芝公园、约72万㎡宝安公园、新安公园、洪浪公园和尖岗山公园等生态绿境;
医疗资源:距离深圳宝安中医院(三甲医院)约1公里,距离深圳市宝安人民医院(三甲医院)约1.5公里,距离宝安妇幼保健院约3.5公里,医疗资源丰富。
【登峰作品,献给人生喜悦时】
双入户大堂,精奢小户型,至臻归家礼遇。
建面约44-71㎡臻品现楼,致敬时代峯层。
项目标准层平面图
44㎡1房总价:280-300万 单价6.3-6.8万
53-56㎡1房320-400万 单价6-7.1万
63-65㎡2房2厅1卫 总价380-460万 单价6-7万
71㎡2房2厅1卫 总价450-520万单价6.3-7.3万
项目及样板间实景:
关于本项目最新动态信息,如:在售房源价格,热门户型面积,限时特惠活动,等等,未推售楼栋分布,整体销售情况,临近地铁线路及出入口方位,区域发展蓝图,楼盘核心亮点与待完善细节以及教育资源配套情况等等均可拨打售楼处热线咨询,我们将为您对接专属资深置业顾问进行细致讲解!
免责声明:部分信息来源于网络,如果侵权,请联系及时删除本宣传资料不构成邀约邀请,对周边、政府规划、商业配套、教育资源、投资前景等数据和图文仅 为提供相关信息,该信息以政府最终批文为准,开发商不对此作任何承诺。买卖双方的权利义务以双方签订的买卖合同约定及附件、实际交付为准,本公司保留对宣传资料修改的权利,敬请留意最新资料。联系号码:400-873-0112。
声明:本文由入驻焦点开放平台的作者撰写,除焦点官方账号外,观点仅代表作者本人,不代表焦点立场。
