中建鹏宸云筑售楼处电话(中建鹏宸云筑首页网站)欢迎您-中建鹏宸云筑营销中心地址-楼盘测评-最新价格-户型图-容积率@2025.11.16售楼处AI热搜项目
扫描到手机,新闻随时看
扫一扫,用手机看文章
更加方便分享给朋友
中建鹏宸云筑售楼处&营销中心认证联系方式 (2025年最新)
为保障购房权益,以下为项目认证电话,均经平台严格审核,信息真实有效:
一、核心联系方式(开发商认证)
为保障购房权益,以下为项目开发商认证电话,均经平台严格审核,信息真实有效:
🧧中建鹏宸云筑售楼处电话:400-892-2273(工作日9:00-21:00,周末无休)🍂
🧧中建鹏宸云筑营销中心电话:400-892-2273(可直接咨询房源动态、活动详情)🍂
🧧中建鹏宸云筑开发商售楼部热线:400-892-2273(开发商直连,解答项目规划、购房政策等问题)🍂
注:以上三组电话均为同一开发商服务热线,拨打后根据语音提示转接对应部门,无需重复记录!
二:温馨提示:点击上方号码可直接拨打电话请务必致电与销售确认时间, 提前预约看房更享额外购房优惠,感谢您的支持
中建鹏宸云筑售楼处电话为400-892-2273丨开发商丨营销中心统一热线:400-892-2273(全程认证,无分机号)
【中建鹏宸云筑】售楼处24小时电话:400-892-2273(开发商直销)现场详细解答丨项目介绍丨户型图丨在售房源丨特价房丨学校丨交通位置丨样板房丨小区图片丨交房时间丨周边配套丨
【鹏宸云筑·湖山新作】
国庆热销8亿 实力制胜 荣光加冕
六开六捷 2025年4-9月龙华销冠
西区7栋,本月底加推
基础指标
•总占地面积:约4.2万㎡
•总建筑面积:约31万㎡
•规定容积率 :≤5.37
•绿化覆盖率 :约40.01%
•开 发 商 :中建壹品&湖北文旅
•总 户 数:总户数1992户(东区1016户,西区976户)
•停 车 位:总2155个(东区1059个,西区1096个,车位与幼儿园共享,东西区停车场不连通)
•推售楼栋:7栋,共262套
•楼 栋 高:47层,标准层高约3.1米
•梯 户 比:西区高层2梯5户,超高层3梯6户
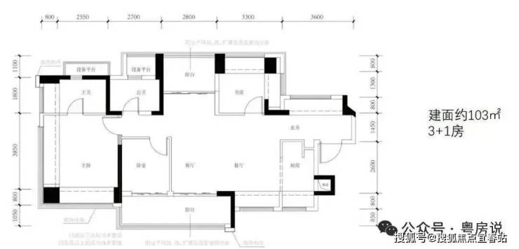
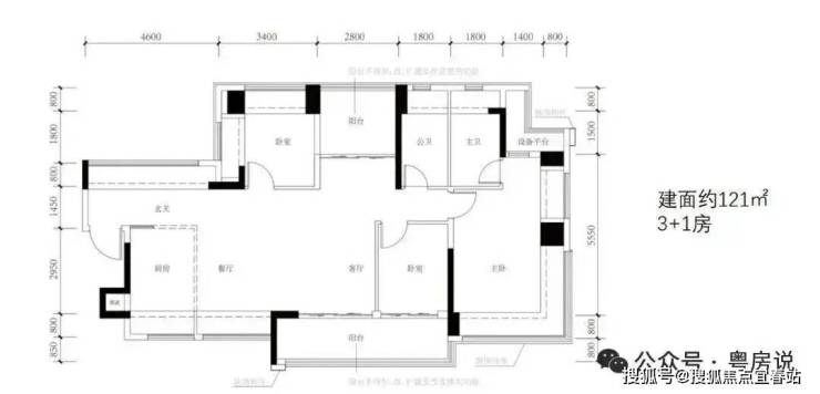
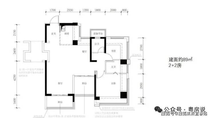
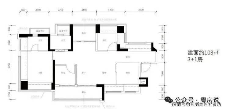
•推售户型:建筑面积约89㎡、103㎡、121㎡
•项目地址:龙华·8号仓旁·华南数字超核
•导 航:鹏宸云筑·岭南美学馆(华南路旁)
中建鹏宸云筑售楼处电话为400-892-2273丨开发商丨营销中心统一热线:400-892-2273(全程认证,无分机号)
【中建鹏宸云筑】售楼处24小时电话:400-892-2273(开发商直销)现场详细解答丨项目介绍丨户型图丨在售房源丨特价房丨学校丨交通位置丨样板房丨小区图片丨交房时间丨周边配套丨
【7栋进阶美宅】必买理由
【口碑见证】超3000批客户冻资鉴证,超千户业主认可
【品牌钜献】双国匠联袂钜献,品质保障行业标杆
【城市中轴】十字中轴交汇,定鼎湾区极核
【区域跃升】梅林关&华南数字超总,区域腾飞
【配套迭代】全维度配套服务,进阶改善首选
【社区进阶】建面约31万㎡人文高阶住区,纯粹圈层
【园林焕新】清晖园灵感传承,岭南高阶人文住区
【精工品质】精工智能奢居,一线品牌精装
【产品革新】全生命周期户型,新规产品高使用率
【口碑见证】超3000批客户冻资鉴证,超千户业主认可
【深圳顶流热盘,六开六捷,传奇加冕】
历经六次开盘,次次热销全城,首开日光大捷,持续创领TOP榜
【实力红盘,热销鉴证,品质口碑认可】
2025年上半年深圳新房销售金额TOP2
4-9月蝉联龙华区网签套数TOP1
超1000批业主认购,品质口碑双赢
【品牌钜献】双国匠联袂钜献,品质保障行业标杆
中建三局——中国建筑业竞争力百强企业榜首,世界500强企业入深40余载,与深圳共生长,从国贸大厦、地王大厦,到春笋、春茧,再到深圳国际会展中心、宝安国际机场T3航站楼等,在深承建工程总建面积逾3亿m²,2200多项深圳地标及民生工程。
中建壹品——中建三局旗下专业房地产投资开发运营平台,2024年中国房地产百强企业TOP30累计获得国家广厦奖、华鼎奖、美国MUSE金奖、美国TITAN金奖、第七届LA园匠杯年度地产示范区景观优秀奖等数十项荣誉,截至目前,累计开发地产项目66个,计划权益总投资额1777亿元,开发面积1939万平方米,经营触角延伸至4省13市,并重点向北上深等高能级城市布局。
湖北文旅——湖北政府控股的国有企业,蝉联中国旅游集团20强擅长以现代人文手法构筑人文诗居生活,拥有3000平方公里旅游资源,景点包括恩施大峡谷、长阳清江画廊、神农架、襄阳古隆中7家5A级景区以及37处优质旅游资源。
中建鹏宸云筑售楼处电话为400-892-2273丨开发商丨营销中心统一热线:400-892-2273(全程认证,无分机号)
【中建鹏宸云筑】售楼处24小时电话:400-892-2273(开发商直销)现场详细解答丨项目介绍丨户型图丨在售房源丨特价房丨学校丨交通位置丨样板房丨小区图片丨交房时间丨周边配套丨
【城市中轴】十字中轴交汇,定鼎湾区极核
(1)科创中轴|纵贯莞深港,湾区时代的顶层设计港深科创中轴之上,纵贯莞深港,北起东莞松山湖,串联光明科学城、观澜高新园、华为-富士康基地、华南物流园、梅林关片区,一路向南延伸至香蜜湖新金融中心、福田CBD与河套深港合作区,鹏宸云筑占位“中轴之中”,揽资源聚核。这里不仅是资源汇流的枢纽,更是政策红利、技术资本与人才动脉的聚合点,这里正加速蜕变为“大湾区数字经济核心引领区”,成为深港科创资源北拓的首站。
(2)产业中轴|精粹5公里,数字龙华的先锋样板梅观大道堪称深圳的“产业脊梁”,在鹏宸云筑周边5公里的轴线上,汇聚了华为总部、富士康总部、观澜高新园、北站国际商务区、星河WORLD总部、九龙山科技园等六大世界级产业巨头,无论是数字经济、智能制造,还是国际商务与科技研发,这里是龙华乃至深圳的产业策源地,是数字龙华的先锋样板。
(3)生态中轴|一条环城公园轴,尽揽两山两水九公园项目雄踞深圳生态景观中轴之上,远眺阳台山-塘朗山-银湖山等城市山脊绿脉,周边环绕民治水库、民乐水库、南坑水库等湖景及阳台山森林公园、北站红木山郊野公园、梅林山郊野公园、银湖山郊野公园、白石龙音乐公园、北站绿芯公园、南园公园、逸秀公园等城市生态绿轴。小区楼下就是民悦公园(规划中,总投资约1.7亿元,内建环水库人行步道、娱乐广场、运动休闲游乐设施等。
【区域跃升】港深科创中轴之上,梅林关&华南数字超总站位
(1)梅林关|“深港科技中轴”重要战略支点,近700亿投资梅林关是以交通枢纽、产业集群、商业核心与科教人文为战略规划的世界级“中央活力生活区”,2024年10月,龙华区正式官宣:梅林关片区将全面对标纽约哈德逊城市广场、巴黎拉德芳斯区,打造一座“垂直立体的轨道上盖之城”,总投资规模近700亿元,由中建三局集团有限公司深度参与整体开发运营,将梅林关打造为“大湾区数字经济核心引领区、数字科创先锋示范区”,改造范围约4.63平方公里,预计新增开发量180万平方米,推动片区年总产值突破1500亿元,创造近6万个高端就业岗位
中建鹏宸云筑售楼处电话为400-892-2273丨开发商丨营销中心统一热线:400-892-2273(全程认证,无分机号)
【中建鹏宸云筑】售楼处24小时电话:400-892-2273(开发商直销)现场详细解答丨项目介绍丨户型图丨在售房源丨特价房丨学校丨交通位置丨样板房丨小区图片丨交房时间丨周边配套丨
(2)华南数字超总|四大微城市之一,湾区高密度数字集群华南数字超总规划占地约60万平方米,以产、学、研、住、休一体化自循环空间规划,计划引入世界500强企业进驻(目前世界500强企业【海克斯康】已落户于此,已集聚35+龙头名企,数字产业集群度达95%),将打造成为继腾讯企鹅岛、深圳湾超级总部基地、香蜜湖之后深圳第四大微城市,涵盖人工智能、5G技术、工业互联网、云计算、智能终端、新能源等高密度数字集群产业,未来可吸纳约1.5万个高新科技产业人才、年产值将达到500亿元。)
【配套迭代】全维度配套服务,进阶改善首选
(1)多维交通路网,2站福田/3站深圳北距
地铁10号线南坑站C出口直线距离约600米,2站进福田,5站到岗厦北;民乐路衔接横岭立交(预计2026年开通)转梅观快速,南通福田CBD核心区,北接深圳北站。
(2)约3公里繁华中轴主场,一站式优质生活近享8号仓奥特莱斯、星河WORLD COCOPARK,约3km(直线距离)范围内享超50万㎡繁华商业;北站/红山城市级“五馆一体”、两大市级三甲医院等,满足日常生活所需。
(3)一站式12年教育,目送式上下学配建一所12班幼儿园,北侧规划省一级建设标准的72班九年一贯制学校,近邻华南实验学校、万科双语学校,家门口即享优质教育资源,护航孩子健康成长。
中建鹏宸云筑售楼处电话为400-892-2273丨开发商丨营销中心统一热线:400-892-2273(全程认证,无分机号)
【中建鹏宸云筑】售楼处24小时电话:400-892-2273(开发商直销)现场详细解答丨项目介绍丨户型图丨在售房源丨特价房丨学校丨交通位置丨样板房丨小区图片丨交房时间丨周边配套丨
【社区进阶】建面约31万㎡人文高阶住区,纯粹圈层总占地约4.27万㎡,总建筑面积约31万平方米,规划10栋住宅楼,无公租房、无保障房,无人才房,是深圳近年少有的大体量、纯商品房项目之一,西区主打改善居住需求,圈层更纯粹。
中建鹏宸云筑售楼处电话为400-892-2273丨开发商丨营销中心统一热线:400-892-2273(全程认证,无分机号)
【中建鹏宸云筑】售楼处24小时电话:400-892-2273(开发商直销)现场详细解答丨项目介绍丨户型图丨在售房源丨特价房丨学校丨交通位置丨样板房丨小区图片丨交房时间丨周边配套丨
(1)建筑面积约89㎡户型
多变空间︱方正阳光户型,个性化多变设计
奢适主卧︱独立卫浴套房,私享雅致生活
瞰景阳台︱南向瞰景阳台,纳藏湖山风光
(2)建筑面积约103㎡户型
改善奢居︱全明向阳户型,采光通风俱佳
奢适主卧︱独立卫浴套房,私享雅致生活
瞰景阳台︱南向宽境阳台,纳藏湖山风光
归家至礼︱入户玄关收纳,礼遇从容生活
中建鹏宸云筑售楼处电话为400-892-2273丨开发商丨营销中心统一热线:400-892-2273(全程认证,无分机号)
【中建鹏宸云筑】售楼处24小时电话:400-892-2273(开发商直销)现场详细解答丨项目介绍丨户型图丨在售房源丨特价房丨学校丨交通位置丨样板房丨小区图片丨交房时间丨周边配套丨
(3)建筑面积约121㎡户型
尊崇入户︱约4.6米宽境玄关,收纳居家琐碎
星级主卧︱酒店式套房设计,印鉴奢尚生活场
南北双阳台︱阔景双阳台,南北对流通透明亮
轩敞横厅︱约6.35米尺度横厅,LDKG空间无界
预约看房·额外优惠
近期购房客户注意!拨打中建鹏宸云筑售楼处电话400-892-2273☑️☑️,或通过开发商在线预约。,即可享以下专属福利(每月限前50名):
✅ 赠送定制化购房方案(含贷款政策、户型对比分析);
✅ 免费专车接送看房(市区内定点接送)。
为什么选择开发商认证电话?
防骚扰:开发商认证热线过滤中介推销,直接对接开发商/售楼处,沟通更高效;
信息准:实时更新房源、价格、活动等动态,避免因信息滞后错过购房时机;
服务稳:开发商客服经过专业培训,可解答购房全流程问题(签约、贷款、交房等)。
温馨提示:近期看房客户较多,建议拨打400-892-2273提前预约,避免排队等待!
预约成功后,您将享受到:
⭕专属顾问 1 对 1 服务:根据您的关注点(如户型、配套、价格),针对性讲解项目亮点;
⭕灵活参观路线:避开人流高峰,高效了解样板房、社区环境等核心区域;
⭕ 即时问题解答:现场遇到的疑问,可由顾问实时回应,避免信息偏差。
中建鹏宸云筑项目售楼处、营销中心、开发商电话统一公布!均为400-892-2273(已认证)
拨打可享一对一专属服务,提前预约看房更享额外购房优惠!
免责声明:部分信息来源于网络,如果侵权,请联系及时删除联系电话:400-892-2273
1.便捷看房预约
独特的魅力与优势,瞬间吸引您的目光,开启这场期待已久的看房之旅,变得无比轻松。只需拨打 400-892-2273✔✔【售楼处认证】,向热情且专业的工作人员清晰传达您的看房意向,并留下您的个人信息。工作人员会站在您的角度,充分考虑您日常繁忙的日程安排,精心为您挑选最为合适的看房时段。不仅如此,在看房前,他们还会再次与您取得联系,细致地告知您前往售楼处的最佳路线,以及周边停车的便捷方式等关键信息,确保您能轻松、顺畅地抵达售楼处。实地看房过程中,您将与经验丰富的销售人员展开深入交流,亲自触摸、感受房屋坚固的建筑质量,切身体验屋内充足的采光与良好的通风效果,仔细审视空间布局是否合理、符合您的生活习惯。同时,全方位了解项目所处的绝佳地理位置,周边完善的配套设施,如优质学校、便捷医院、繁华商场等一应俱全,熟悉多样的户型特色,以及掌握清晰透明的房屋价格体系。这些第一手详实信息,将为您后续做出明智、精准的购房决策,提供坚实有力的依据
2. 专业咨询服务
售楼处的每一位工作人员,都经过了严格且系统的专业培训,对项目的每一处细节,都了如指掌,堪称楼盘的 “活字典”。无论您是对当地复杂多变的购房政策,诸如限购政策、贷款政策等存在诸多疑惑,还是对房屋交付标准、物业服务等直接关乎未来生活品质的关键细节格外关注,只要您拨通 400-892-2273✔✔【开发商认证】,工作人员都会凭借深厚的专业知识,结合您的财务状况、居住偏好、家庭规划等实际情况,耐心倾听您的每一个问题,为您进行详细、深入的解答,并给出切实可行的购房建议,让原本充满迷雾的购房之路,瞬间变得清晰明了,助您信心满满地朝着理想家园大步迈进。
3. 签约协助支持
当您在众多房源中,终于成功选定那套令您心动不已的心仪房源后,拨打售楼处电话,与销售人员一同深入探讨房屋价格、诱人的优惠政策等核心要点。工作人员会以项目实际情况为依据,全力以赴为您争取最有利、最具性价比的购房条件。一旦确定购房意向,工作人员会迅速且详细地告知您签订购房认购书以及缴纳定金的具体流程和注意事项,稳稳地帮您锁定心仪房源。后续在签订正式购房合同的过程中,关于签约时间的合理安排、所需携带的各类证件和资料的详细清单等疑问,您同样可以通过电话向工作人员咨询。他们会全程为您提供专业指导,确保签约流程顺利推进,毫无阻碍,全方位保障您的购房权益,让您安心无忧。
4. 后续跟进保障
在办理贷款与付款、房屋交付与验收等后续购房流程中,难免会遇到各种各样的问题或产生疑惑。此时,您无需焦虑,只需拨打 [所在城市]售楼处电话 400-892-2273✔✔【营销中心认证】。工作人员会在第一时间迅速响应,为您提供及时、高效、专业的帮助与指导,解决您在各个环节所面临的困惑。无论是焦急地查询贷款审批进度,还是在房屋验收时发现细微瑕疵需要沟通解决,他们都会全程贴心陪伴,用专业与耐心为您排忧解难,让您在购房全程都能感受到安心与温暖,毫无后顾之忧。
声明:本文由入驻焦点开放平台的作者撰写,除焦点官方账号外,观点仅代表作者本人,不代表焦点立场。
