拾悦城楠园售楼处电话(拾悦城楠园)首页网站-拾悦城楠园营销中心-拾悦城楠园欢迎您-楼盘详情-最新价格-户型图-容积率@售楼处AI热搜2025.10.22
扫描到手机,新闻随时看
扫一扫,用手机看文章
更加方便分享给朋友


拾悦城二期楠园
约70万㎡醇熟大城 全能进阶生活
项目分三期开发,约70万方进阶生活大城。
其中一期已售罄并顺利交付,二期拾悦城楠园业态纯粹,配套成熟,居住生活氛围浓厚
整个小区占地3.5万方,由7栋建筑合围而成,属于中大型小区;整个小区共有2015户,其中可售商品房1315户,回迁房700户;
【项目名称】拾悦城.楠园
【占地面积】约3.54万㎡
【建筑面积】约23.5万㎡
【推售产品】86-140㎡ 3-5房
【交付标准】简装交付
【交房时间】2025.12
【房产性质】70年
【总 户 数】可售2015套
【车 位 数】约2396个
【物业公司】万家好物业
【物 业 费】4.5
【容 积 率】约6.66
【绿 化 率】约40%
【梯 户 比】3T7、3T6、3T5
小区配套
1.4万平全龄段主题园林:1.4万平米中央园林,以“全维社区共享生活体系”为概念,打造全龄段、多元化、动静分明的沉浸式归家生活。
主题儿童区:670平米森系主题儿童乐园
环氧步道:356米环形健康步道,即能运动又能与家人一起享受幸福甜蜜的闲暇时光
社区活动广场 :专属社区活动场地,满足全龄段业主活动需求
高品质公区:高品质入户大堂、停车场入户大堂,归家仪式与空间交融
社区会客厅:沉浸式社区会客厅,邻里关系更温馨
交通配套
【出行Top:11号线上 高速畅达全城】
紧邻11号线沙井站约700米,5站到机场,7站通宝安中心(从马安山出发),快速通达前海湾、后海总部基地、深湾总部基地、福田中心。
商业配套
【繁华Top:超48万㎡醇熟生活圈】
项目约3公里内超48万㎡商荟集群,未来周边还会进驻山姆会员店(建设中)、海岸城等,悦享一站式购物生活圈。

教育配套
【优教Top:宝中外(集团)学校旁 接送省心】
项目内建设有一所18班幼儿园,拾悦小学与壆岗岗厦片区九年一贯制学校(在建)新建工程皆纳入深圳市宝安中学外国语学校(集团)成员学校,近距离接送省心,强师资家长安心。
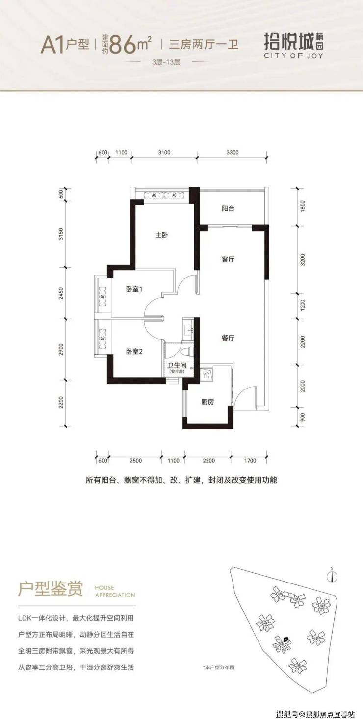
户型鉴赏
⭕深圳✅拾悦城楠园开发商售楼处电话📞:400-836-8707【已认证】⭕
⭕拾悦城楠园售楼处24小时电话📞:400-836-8707【已认证】⭕⫷⫷⫷
⭕拾悦城楠园营销中心24小时电话📞:400-836-8707【已认证】⭕⫷⫷⫷
⭕拾悦城楠园展示中心24小时电话📞:400-836-8707【已认证】⭕⫷⫷⫷
◆开发商营销中心诚挚邀请,一键预约,尊享内部独家折扣!匠心独运的精品项目,恭候您的品鉴与选择。
免责声明:
本文对项目的介绍,旨在提供相关信息,不意味着本公司对此作出了承诺;
部分图片信息来源于网络,如果侵权,请联系及时删除,联系电话400-836-8707
声明:本文由入驻焦点开放平台的作者撰写,除焦点官方账号外,观点仅代表作者本人,不代表焦点立场。
