天勤国际售楼处- 2025最新房价丨在售户型详解丨项目详情丨营销中心
扫描到手机,新闻随时看
扫一扫,用手机看文章
更加方便分享给朋友
✅购房困惑?专业帮您!🎯
专属房产顾问一对一精准服务(直连开发商)
【天勤国际】营销中心电话:400-873-0112【售楼处电话已认证】
丨楼盘位置丨户型介绍丨房源情况丨优惠活动丨教育资源丨交通便利丨样板间展示丨社区环境丨交房标准丨周边配套

开发商:深圳市天勤房地产开发有限公司
总用地面积:2,378.55㎡
建筑占地面积:746.07㎡
总建筑面积:16,886.26㎡
绿化率:30.05%
楼层数:地面20层,地下2层
物业用途:住宅,有学位
单套房产建筑面积:约39㎡
原始装修需要重新翻新,可个人、公司购买。
70年住宅产权,带桂园小学,红桂中学学位,楼下双地铁,按照住宅贷款,不限购,不限售,可以持有多套,港澳人士可持有一套,租金3500左右/套 可支持按揭或经营贷款。
项目区位
地址:罗湖区桂园路北6号
地铁:近9号线红岭站

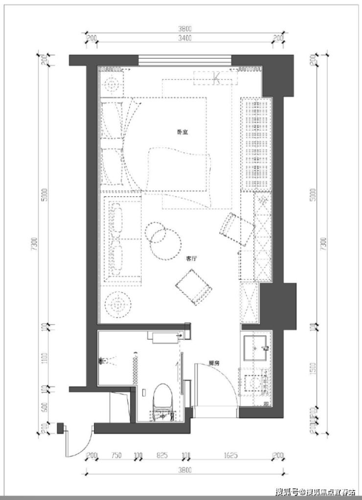
平面图

▲室内平面图(样板房非交付标准)
样板房效果图


🏅关于本最新动态信息,如:房价,主力户型面积,最低折扣,等等,剩余户型楼层,去化率,几号地铁哪个地铁口,周边规划,项目的优劣势以及学校的配套等等都可以致电售楼处进行了解,我们将会安排内场专业置业顾问为您答疑解惑!
✅ 所有疑问,一通电话全解决!
🎯 内部置业顾问VIP解答,独家优惠仅限来电客户!
📞 24小时热线,黄金时段优先安排!
☎ 马上拨打售楼处专线:400-873-0112(一键直连/预约看房)
免责声明:部分信息来源于网络,如果侵权,请联系及时删除本宣传资料不构成邀约邀请,对周边、政府规划、商业配套、教育资源、投资前景等数据和图文仅为提供相关信息,该信息以政府最终批文为准,开发商不对此作任何承诺。买卖双方的权利义务以双方签订的买卖合同约定及附件、实际交付为准,本公司保留对宣传资料修改的权利,敬请留意最新资料。联系号码:400-873-0112。
声明:本文由入驻焦点开放平台的作者撰写,除焦点官方账号外,观点仅代表作者本人,不代表焦点立场。
